Retour
Locaux d'Activités - 4 974m² à Acheter
. Parc sécurisé : 4 bâtiments en VEFA divisibles en 16 cellules
. Espaces verts paysagés, bordures, trottoirs
. Voirie lourde pour accès livraisons
. Voirie légère pour emplacement VL
. Structure métallique assurant une hauteur
. Tarif bleu 36 kVA par lot (évolutif)
. Fourreaux pour pose ultérieure de bornes de recharge électrique
. 16 places visiteurs
-ACTIVITES-
. Portes sectionnelles automatiques (3.5 x3.5m)
. Porte de secours équipée d’une poignée anti-panique
. Hauteur RDC : 6 m
. Hauteur mezzanine : 4 m
. Dalle béton quartz 3T/m²
. Bardage double peau
. Chauffage par aérotherme électrique
-BUREAUX-
. 350 kg/m² au R+1
. Faux plafond en dalles minérales
. Moquette en dalle ou PVC au R+1
. Points lumineux LED
. Doublage et isolation conformes à la RE 2020
. Peinture murale
. Câblage courant fort et courant faible
. Cloisons amovibles (30% à 100% vitrés)
. Aménagement du RDC
. Vestiaire, cafeteria, locaux sociaux
Locaux d'Activités - 4 974m² à Acheter
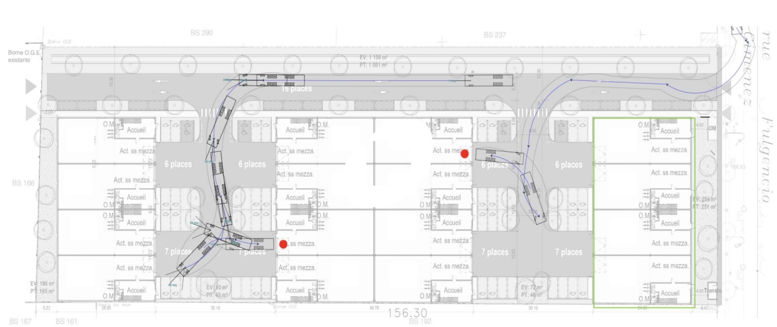
PARC SPIRIT - 14 RUE FULGENCIO GIMENEZ VAULX EN VELIN (69120)
DESCRIPTION
Immprove vous propose au sein du nouveau Parc Spirit du Carré de Soie, situé au sud de Vaulx-en-Velin, des bâtiments d'activités sur un terrain de 10 000 m² représentant une surface de plancher totale de 5 590 m². Il comprend 4 bâtiments divisibles en 16 cellules, à partir de 344 m², avec 28% de bureaux et 72% d'activités.
En savoir plus
-BATIMENT-. Parc sécurisé : 4 bâtiments en VEFA divisibles en 16 cellules
. Espaces verts paysagés, bordures, trottoirs
. Voirie lourde pour accès livraisons
. Voirie légère pour emplacement VL
. Structure métallique assurant une hauteur
. Tarif bleu 36 kVA par lot (évolutif)
. Fourreaux pour pose ultérieure de bornes de recharge électrique
. 16 places visiteurs
-ACTIVITES-
. Portes sectionnelles automatiques (3.5 x3.5m)
. Porte de secours équipée d’une poignée anti-panique
. Hauteur RDC : 6 m
. Hauteur mezzanine : 4 m
. Dalle béton quartz 3T/m²
. Bardage double peau
. Chauffage par aérotherme électrique
-BUREAUX-
. 350 kg/m² au R+1
. Faux plafond en dalles minérales
. Moquette en dalle ou PVC au R+1
. Points lumineux LED
. Doublage et isolation conformes à la RE 2020
. Peinture murale
. Câblage courant fort et courant faible
. Cloisons amovibles (30% à 100% vitrés)
. Aménagement du RDC
. Vestiaire, cafeteria, locaux sociaux
Consommations énergétiques


Informations non contractuelles
Tableau des divisibilités
| Type | Étage | Surface | Prix achat (€/m² HT HC) |
Charges (achat) (€/m² HT HC) |
|---|---|---|---|---|
| Activités | 371 m² | 1 735.00 | 5.00 | |
| Activités | 354 m² | 1 735.00 | 5.00 | |
| Activités | 351 m² | 1 735.00 | 5.00 | |
| Activités | 356 m² | 1 735.00 | 5.00 | |
| Activités | 361 m² | 1 735.00 | 5.00 | |
| Activités | 353 m² | 1 735.00 | 5.00 | |
| Activités | 353 m² | 1 735.00 | 5.00 | |
| Activités | 355 m² | 1 735.00 | 5.00 | |
| Activités | 355 m² | 1 735.00 | 5.00 | |
| Activités | 353 m² | 1 735.00 | 5.00 | |
| Activités | 353 m² | 1 735.00 | 5.00 | |
| Activités | 357 m² | 1 735.00 | 5.00 | |
| Activités | 349 m² | 1 735.00 | 5.00 | |
| Activités | 353 m² | 1 735.00 | 5.00 |
Caractéristiques
. Prix dégressif si achat de plusieurs cellules
. Prix aménagé hors parking : 1 825 € HT/m² (R+1 aménagé en bureaux open-space avec pompe à chaleur, RDC activité chauffé)
. Prix brut hors parking : 1 735 € HT/m² (locaux bruts fluides en attente)
. Parking : 3 000 € HT / place
- Surface 4 974 m²
- Etat des locaux Neuf
Adresses
approximatives
Adresses
précises
Les entrepreneurs ayant consulté cette offre ont aussi consulté celles ci
Les services Immprove
Une gamme complète de services qui facilitent vos démarches et destinée à satisfaire vos attentes