Retour
Disponibilité Immédiate
À Acheter Locaux d'Activités 3 288 m² divisibles à partir de 236 m² OPEN PARK 2 ROUTE D’HEYRIEUX TOUSSIEU (69780)
Ajouter au comparateur
Vous souhaitez faciliter votre recherche ?
Créez un compte
Présentation du bien
Immprove vous propose de venir découvrir à Toussieu (69780) au sein du OPEN PARK, des locaux d'activités neufs, au sein d'un programme immobilier mixte aux prestations haut de gamme. Offrez à votre entreprise un espace sur mesure, avec 3 288 m² divisibles dès 236 m². Regroupez plusieurs lots pour optimiser votre espace.
Surface totale
Nature
Divisibilité
Etat des locaux
3 288 m²
Locaux d'Activités
Oui à partir de 236 m²
Neuf
Prix & Conditions
Vente :
1 640.59 € (HD)
1 640.59 € /m² (HD)
Divisibles à partir de 236 m²
Conditions vente :
. Parking inclus au prix de vente de chaque lots
Prestations & équipements du bien
Les accès
Porte sectionnelle 4.5 mX3.5m
Prestations spécifiques
Compteur Tarif bleu
Autres
Accès PL
Balisage des cheminements piétons par bornes lumineuses ou éclairages encastrés
Dalle béton (quartz) : charge 1,5T/m²
Hauteur sous ferme : entre 6 et 8 m
Mezzanine plancher collaborant sur ossature
Escalier métallique
Châssis vitrés et portes piétonnes en
Aluminium
Murs séparatifs entre les lots : coupe-feu (type parpaing)
Eclairage zenithal : environ 5% de la surface au sol
Eclairage communs : projecteurs
Luminaire encastrée ou en applique
Nombreux Stationnements (foisonnement)
. Parking inclus au prix de vente de chaque lots
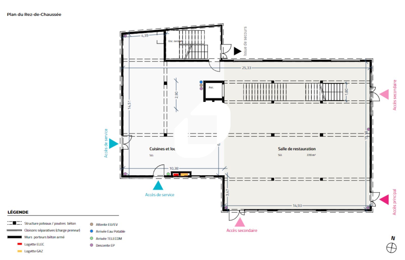
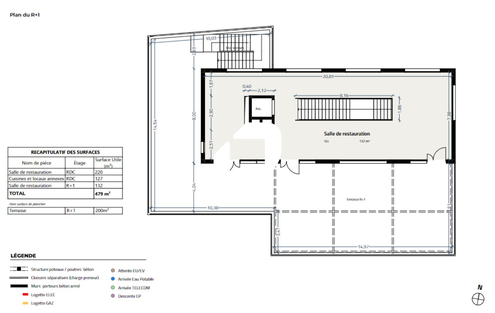
Répartition & surfaces des espaces
Tableau des divisibilités
| Type | Étage | Surface | Prix achat (€/m² HT HC) |
Charges (achat) (€/m² HT HC) |
|---|---|---|---|---|
| Activités | 242 m² | 1 833.37 | Prix sur demande | |
| Activités | 240 m² | 1 833.71 | Prix sur demande | |
| Activités | 242 m² | 1 833.37 | Prix sur demande | |
| Activités | 258 m² | 1 683.18 | Prix sur demande | |
| Activités | 258 m² | 1 640.76 | Prix sur demande | |
| Activités | 259 m² | 1 640.59 | Prix sur demande | |
| Activités | 259 m² | 1 740.62 | Prix sur demande | |
| Activités | 258 m² | 1 753.65 | Prix sur demande | |
| Activités | 328 m² | 1 742.04 | Prix sur demande | |
| Activités | 236 m² | 1 706.49 | Prix sur demande | |
| Activités | 237 m² | 1 644.40 | Prix sur demande | |
| Activités | 237 m² | 1 741.12 | Prix sur demande | |
| Activités | 236 m² | 1 761.49 | Prix sur demande |
Performance énergétique du bien (DPE)


Informations non contractuelles
Localisation & accès
Accès routier
Aéroport Lyon Saint Exupéry à 12 km
A43 à 10 km
A46 à 6 km
D318 (Route d’Heyrieux) en façade
Adresses
approximatives
Adresses
précises
Nos nouveaux biens qui pourraient vous intéresser
Locaux d'Activités - 201.60m²
REIMS (51100)
REIMS (51100)
50 904 000.00€ HT HC
Disponibilité : Immédiate
Surface : 201.60 m²
Locaux d'Activités - 743m²
CESTAS (33610)
CESTAS (33610)
870 000.99€ HT HC
Disponibilité : Immédiate
Surface : 743 m²
Locaux d'Activités - 3 659m²
AIZENAY (85190)
AIZENAY (85190)
3 191 928.65€ HT HC
Disponibilité : Immédiate
Surface : 3 659 m²
Locaux d'Activités - 4 000m²
SAINT PATHUS (77178)
SAINT PATHUS (77178)
3 375 000.00€ HT HC
Disponibilité : Immédiate
Surface : 4 000 m²
Les entrepreneurs ayant consulté cette offre ont aussi consulté celles ci
Locaux d'Activités - 201.60m²
REIMS (51100)
REIMS (51100)
50 904 000.00€ HT HC
Disponibilité : Immédiate
Surface : 201.60 m²
Locaux d'Activités - 1 794m²
SAINT PRIEST (69800)
SAINT PRIEST (69800)
Prix sur demande
Disponibilité : Octobre 2027
Surface : 1 794 m²
Locaux d'Activités - 1 980m²
FLEURIEUX SUR L'ARBRESLE (69210)
FLEURIEUX SUR L'ARBRESLE (69210)
Prix sur demande
Disponibilité : Immédiate
Surface : 1 980 m²
Locaux d'Activités - 743m²
CESTAS (33610)
CESTAS (33610)
870 000.99€ HT HC
Disponibilité : Immédiate
Surface : 743 m²