Retour
Disponibilité Immédiate
À Acheter Locaux d'Activités 752.17 m² TRAPPES (78190)
Ajouter au comparateur
Vous souhaitez faciliter votre recherche ?
Créez un compte
Présentation du bien
Dans une zone d'activité accessible par les axes N10 et N12, IMMPROVE vous propose un local d'activités avec bureaux à vendre, situé sur la commune de Trappes. Bureaux cloisonnés et climatisés, porte sectionnelle de plain-pied, accès gros porteurs. 7 emplacements extérieurs de parking.
Surface totale
Nature
Divisibilité
Etat des locaux
752.17 m²
Locaux d'Activités
Non
Bon état
Prix & Conditions
Vente :
900 000.00 € (HD)
1 196.80 € /m² (HD)
Impôt foncier :
7387.00
Conditions vente :
Loi Carrez et affectation juridique en cours de détermination
Prestations & équipements du bien
Les espaces de travail
Accueil, bureaux cloisonnés avec faux plafonds et pavés LED
Skydomes neufs
Sanitaires privatifs
Le confort au quotidien
Climatisation réversible dans les bureaux
Les accès
Porte sectionnelle de plain-pied
Prestations spécifiques
Chauffage électrique
Mezzanine de stockage avec charge au sol de 500 kg / m²
Extérieur
7 emplacements extérieurs de parking
Autres
Mur bardage double peau isolé
Accès gros porteurs
Câblage RJ45
Hauteur sous plafond : 6,5 mètres
Résistance sol : 3 tonnes / m²
Loi Carrez et affectation juridique en cours de détermination
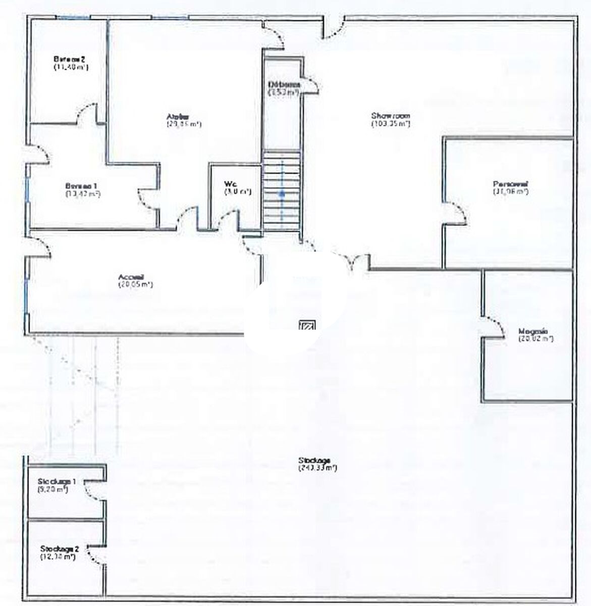
Répartition & surfaces des espaces
Tableau des divisibilités
| Type | Étage | Surface | Prix achat (€/m² HT HC) |
Charges (achat) (€/m² HT HC) |
|---|---|---|---|---|
| Activités | 752 m² | 1 196.80 | 11.70 |
Performance énergétique du bien (DPE)


Informations non contractuelles
Localisation & accès
Transports en commun à proximité
Gare de Trappes
10
417
463
Accès routier
Autoroutes A12, A13 et A86
Nationales N10 et N12
Adresses
approximatives
Adresses
précises
Nos nouveaux biens qui pourraient vous intéresser
Locaux d'Activités - 743m²
CESTAS (33610)
CESTAS (33610)
870 000.99€ HT HC
Disponibilité : Immédiate
Surface : 743 m²
Locaux d'Activités - 3 439m²
AIZENAY (85190)
AIZENAY (85190)
3 000 011.65€ HT HC
Disponibilité : Immédiate
Surface : 3 439 m²
Locaux d'Activités - 4 000m²
SAINT PATHUS (77178)
SAINT PATHUS (77178)
3 375 000.00€ HT HC
Disponibilité : Immédiate
Surface : 4 000 m²
Locaux d'Activités - 470m²
HEROUVILLE EN VEXIN (95300)
HEROUVILLE EN VEXIN (95300)
600 002.00€ HT HC
Disponibilité : Immédiate
Surface : 470 m²
Les entrepreneurs ayant consulté cette offre ont aussi consulté celles ci
Locaux d'Activités - 1 980m²
FLEURIEUX SUR L'ARBRESLE (69210)
FLEURIEUX SUR L'ARBRESLE (69210)
Prix sur demande
Disponibilité : Immédiate
Surface : 1 980 m²
Locaux d'Activités - 743m²
CESTAS (33610)
CESTAS (33610)
870 000.99€ HT HC
Disponibilité : Immédiate
Surface : 743 m²
Locaux d'Activités - 507.70m²
SCHWEIGHOUSE SUR MODER (67590)
SCHWEIGHOUSE SUR MODER (67590)
Prix sur demande
Disponibilité : Immédiate
Surface : 507.70 m²
Locaux d'Activités - 253.85m²
SCHWEIGHOUSE SUR MODER (67590)
SCHWEIGHOUSE SUR MODER (67590)
Prix sur demande
Disponibilité : Immédiate
Surface : 253.85 m²