Retour
Disponibilité 1er octobre 2027
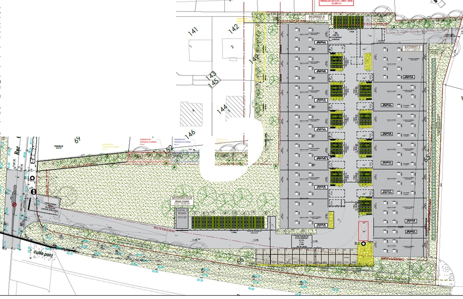
À Acheter Locaux d'Activités 4 472 m² divisibles à partir de 299 m² MOISSELLES (95570)
Ajouter au comparateur
Vous souhaitez faciliter votre recherche ?
Créez un compte
Présentation du bien
Situé à Moisselles (95), dans un programme neuf, IMMPROVE vous propose à la vente 14 cellules modulables dans un environnement arborée et disposant de prestations de qualités.
Surface totale
Nature
Divisibilité
Etat des locaux
4 472 m²
Locaux d'Activités
Oui à partir de 299 m²
Neuf
Prix & Conditions
Vente :
1 850.00 € (HD)
1 850.00 € /m² (HD)
Divisibles à partir de 299 m²
Conditions vente :
Loi Carrez et affectation juridique en cours de détermination
Prestations & équipements du bien
Les espaces de travail
PROGRAMME NEUF
Les accès
Porte sectionnelle : 3 x 3,2 m
Autres
Livré brut
Hauteur sous plafond : 6 m
Accompagnement sur l'aménagement
possible
Loi Carrez et affectation juridique en cours de détermination
Répartition & surfaces des espaces
Tableau des divisibilités
| Type | Étage | Surface | Prix achat (€/m² HT HC) |
Charges (achat) (€/m² HT HC) |
|---|---|---|---|---|
| Activités | 423 m² | 1 850.00 | 10.00 | |
| Activités | 326 m² | 1 850.00 | 10.00 | |
| Activités | 326 m² | 1 850.00 | 10.00 | |
| Activités | 326 m² | 1 850.00 | 10.00 | |
| Activités | 326 m² | 1 850.00 | 10.00 | |
| Activités | 326 m² | 1 850.00 | 10.00 | |
| Activités | 326 m² | 1 850.00 | 10.00 | |
| Activités | 299 m² | 1 850.00 | 10.00 | |
| Activités | 299 m² | 1 850.00 | 10.00 | |
| Activités | 299 m² | 1 850.00 | 10.00 | |
| Activités | 299 m² | 1 850.00 | 10.00 | |
| Activités | 299 m² | 1 850.00 | 10.00 | |
| Activités | 299 m² | 1 850.00 | 10.00 | |
| Activités | 299 m² | 1 850.00 | 10.00 |
Performance énergétique du bien (DPE)


Informations non contractuelles
Localisation & accès
Transports en commun à proximité
Ligne H - Gare de Bouffémont - Moisselles
Lignes à proximité
Accès routier
A 16 à 5 minutes
Adresses
approximatives
Adresses
précises
Nos nouveaux biens qui pourraient vous intéresser
Locaux d'Activités - 4 531m² Divisibles à partir de 2 128 m²
MOISSELLES (95570)
MOISSELLES (95570)
3 964 950.00€ HT HC
Disponibilité : 4T 2027
Surface : divisibles à partir de 2 128 m²
Les entrepreneurs ayant consulté cette offre ont aussi consulté celles ci
Locaux d'Activités - 201.60m²
REIMS (51100)
REIMS (51100)
50 904 000.00€ HT HC
Disponibilité : Immédiate
Surface : 201.60 m²
Locaux d'Activités - 1 794m²
SAINT PRIEST (69800)
SAINT PRIEST (69800)
Prix sur demande
Disponibilité : Octobre 2027
Surface : 1 794 m²
Locaux d'Activités - 1 980m²
FLEURIEUX SUR L'ARBRESLE (69210)
FLEURIEUX SUR L'ARBRESLE (69210)
Prix sur demande
Disponibilité : Immédiate
Surface : 1 980 m²
Locaux d'Activités - 743m²
CESTAS (33610)
CESTAS (33610)
870 000.99€ HT HC
Disponibilité : Immédiate
Surface : 743 m²