À Acheter ou à Louer Locaux d'Activités 170.05 m² VILLEURBANNE (69100)
Présentation du bien
Prix & Conditions
L'acquéreur doit être inscrit à la chambre d'artisanat.
Prestations & équipements du bien
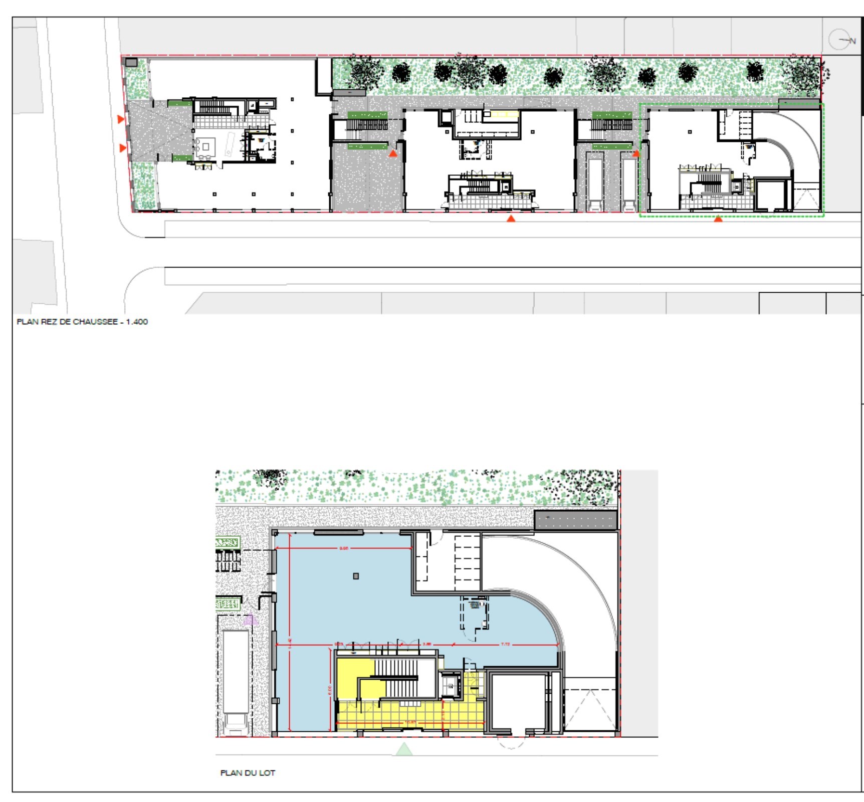
Halls/accueil carrelés.
Site clos
Contrôle d'accès extérieur
1 ascenseur/bâtiment
Monte-charge • Extérieur :
1 monte-charge [R-1/RDC] partagé sur bâtiment B.
Certification BREEAM VERY GOOD
Façades traitées en béton, métal et PROFILIT, à confirmer par le projet architectural, percées de châssis alu
La structure est traitée en béton armé, surcharge de plancher minimum de 350 kg/m²
Toitures d'ilots végétalisés
L’ensemble du site est clos.
Les toitures d’ilots seront végétalisées.
Les stationnements en sous-sol
Voie arrière de circulation des engins de déchargement reliant l’ensemble des bâtiments.
Accès et aires de livraison
• Accès / Halls / Paliers :
Les façades sont traitées en béton, métal et profilit, à confirmer par le projet architectural, percées de châssis aluminium.
Habillage pare-vue en toiture pour zone technique / installations techniques / support de structure pour équipements.
• Activités :
La hauteur sous dalle sera de 4 m
La structure est traitée en béton armé, surcharge de plancher de 500 kg/m².
Réserve de sol possible dans les locaux d’activité.
Sol, plafonds et parois bruts de béton.
Fluides en attente.
1 accès grande largeur par lot à minima.
Voie arrière de circulation des engins de déchargement reliant l’ensemble des bâtiments.
Répartition & surfaces des espaces
Tableau des divisibilités
| Type | Étage | Surface | Loyer (€/m²/an HT HC) |
Charges (€/m²/an HT HC) |
Prix achat (€/m² HT HC) |
Charges (achat) (€/m² HT HC) |
|---|---|---|---|---|---|---|
| Parkings | 1 500.00 | Prix sur demande | 30 000.00 | Prix sur demande | ||
| Activités | RDC | 170 m² | 130.00 | 37.00 | 2 200.00 | Prix sur demande |
Performance énergétique du bien (DPE)


Informations non contractuelles
Localisation & accès
Transports en commun à proximité
SNCF gare de Part Dieu à 20 min à pied
Accès routier
Cours Emile Zola, Tolstoï, République
Lignes T1 et T4, arrêt Collège Bellecombe
Adresses
approximatives
Adresses
précises
Nos nouveaux biens qui pourraient vous intéresser
SAINT PRIEST (69800)
FLEURIEUX SUR L'ARBRESLE (69210)
SCHWEIGHOUSE SUR MODER (67590)
SCHWEIGHOUSE SUR MODER (67590)
Les entrepreneurs ayant consulté cette offre ont aussi consulté celles ci
SAINT PRIEST (69800)
FLEURIEUX SUR L'ARBRESLE (69210)
SCHWEIGHOUSE SUR MODER (67590)
SCHWEIGHOUSE SUR MODER (67590)