Retour
Disponibilité Immédiate
À Acheter ou à Louer Locaux d'Activités 356 m² divisibles à partir de 108 m² 25 ROUTE DE BELMONT CHAVANOZ (38230)
Ajouter au comparateur
Vous souhaitez faciliter votre recherche ?
Créez un compte
Présentation du bien
Immprove vous propose en EXCLUSIVITE, sur la commune de CHAVANOZ, deux cellules à la vente et deux à la location situé dans une zone d’activité, proche de la Route de Loyettes dans un petit parc. Ces locaux seront livrés début 2025.
Surface totale
Nature
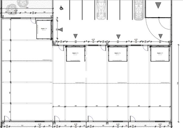
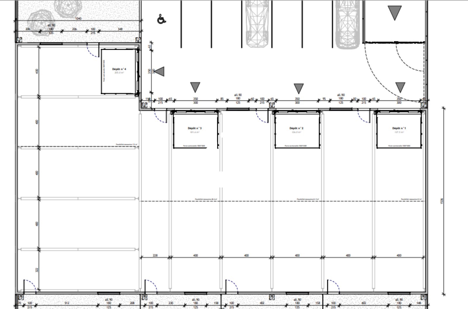
Divisibilité
Etat des locaux
356 m²
Locaux d'Activités
Oui à partir de 108 m²
Neuf
Prix & Conditions
Loyer :
100 € /m²/an (HT/HC)
900 € /mois (HT/HC)
10 800 € /an (HT/HC)
Divisibles à partir de 108 m²
Vente :
193 750 € (HD)
544.24 € /m² (HD)
Divisibles à partir de 108 m²
Dépôt de garantie :
3 mois de loyer HT HC
Conditions vente :
Loi Carrez et affectation juridique en cours de détermination
Prestations & équipements du bien
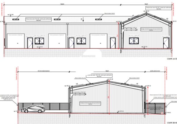
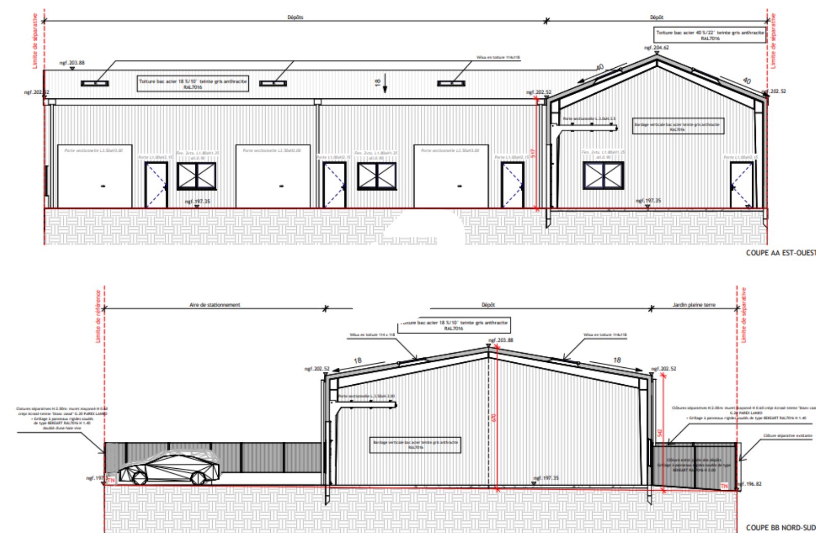
Le bâtiment
Façade en bardage double peau
Les espaces de travail
Bâtiment neuf
Fibre optique
Les accès
Accès véhicules légers
Accès poids lourds
Portail d'accès
Porte sectionnelle de plain-pied :
Dimensions porte : 3(H) x3.5 (L) m
Prestations spécifiques
Charge au sol : 2 tonnes / m²
Hauteur libre : 5 à 6,5 m
Tarif bleu
Autres
Toiture bac acier isolé
Charpente métallique
Velux toiture
Loi Carrez et affectation juridique en cours de détermination
Répartition & surfaces des espaces
Tableau des divisibilités
| Type | Étage | Surface | Loyer (€/m²/an HT HC) |
Charges (€/m²/an HT HC) |
Prix achat (€/m² HT HC) |
Charges (achat) (€/m² HT HC) |
|---|---|---|---|---|---|---|
| Activités | Rez-de-Chaussée | 125 m² | 100.00 | Prix sur demande | 1 550.00 | Prix sur demande |
| Activités | Rez-de-Chaussée | 123 m² | 100.00 | Prix sur demande | 1 550.00 | Prix sur demande |
| Activités | Rez-de-Chaussée | 108 m² | 100.00 | Prix sur demande | 1 550.00 | Prix sur demande |
Performance énergétique du bien (DPE)


Informations non contractuelles
Localisation & accès
Accès routier
Boulevard périphérique Laurent Bonnevay à 25 mins
A432 à 10 mins et A43 à 15 mins
Aéroport Lyon Saint Exupéry à 15 mins
Adresses
approximatives
Adresses
précises
Nos nouveaux biens qui pourraient vous intéresser
Locaux d'Activités - 507.70m²
SCHWEIGHOUSE SUR MODER (67590)
SCHWEIGHOUSE SUR MODER (67590)
Prix sur demande
Disponibilité : Immédiate
Surface : 507.70 m²
Locaux d'Activités - 253.85m²
SCHWEIGHOUSE SUR MODER (67590)
SCHWEIGHOUSE SUR MODER (67590)
Prix sur demande
Disponibilité : Immédiate
Surface : 253.85 m²
Locaux d'Activités - 1 650m²
PONT A MARCQ (59710)
PONT A MARCQ (59710)
Prix sur demande
Disponibilité : Immédiate
Surface : 1 650 m²
Locaux d'Activités - 644.61m²
JOUY EN JOSAS (78350)
JOUY EN JOSAS (78350)
Prix sur demande
Disponibilité : Immédiate
Surface : 644.61 m²
Les entrepreneurs ayant consulté cette offre ont aussi consulté celles ci
Locaux d'Activités - 507.70m²
SCHWEIGHOUSE SUR MODER (67590)
SCHWEIGHOUSE SUR MODER (67590)
Prix sur demande
Disponibilité : Immédiate
Surface : 507.70 m²
Locaux d'Activités - 253.85m²
SCHWEIGHOUSE SUR MODER (67590)
SCHWEIGHOUSE SUR MODER (67590)
Prix sur demande
Disponibilité : Immédiate
Surface : 253.85 m²
Locaux d'Activités - 1 650m²
PONT A MARCQ (59710)
PONT A MARCQ (59710)
Prix sur demande
Disponibilité : Immédiate
Surface : 1 650 m²
Locaux d'Activités - 644.61m²
JOUY EN JOSAS (78350)
JOUY EN JOSAS (78350)
Prix sur demande
Disponibilité : Immédiate
Surface : 644.61 m²