Retour
Disponibilité Immédiate
À Acheter ou à Louer Bureaux 1 680 m² divisibles à partir de 300 m² ANZIN (59410)
Ajouter au comparateur
Vous souhaitez faciliter votre recherche ?
Créez un compte
Présentation du bien
Immprove vous propose un immeuble neuf disponible à Anzin : PROTOCOL. Immeuble de bureaux situé au sein du Parc des Rives Créatives de l'Escaut à Anzin, commune directement liée à Valenciennes, desservie par la ligne 1 du tramway de Valenciennes. A proximité du centre-ville de Valenciennes. Gare de Valenciennes en moins de 10 minutes. Protocol est un ensemble de 3 immeubles, de 1 à 2 étages. L'immeuble A est dédié aux usages bureaux et services tandis que les immeubles B et C avec des espaces de show-room bureaux, ateliers et stockage, équipés de portes de garage vous permettent d'y développer toutes vos activités. Disponibilité immédiate.
Surface totale
Nature
Divisibilité
Etat des locaux
1 680 m²
Bureaux
Oui à partir de 300 m²
Neuf
Prix & Conditions
Loyer :
165 € /m²/an (HT/HC)
4 125 € /mois (HT/HC)
49 500 € /an (HT/HC)
Divisibles à partir de 300 m²
Vente :
1 692 000 € (HD)
1 007.14 € /m² (HD)
Divisibles à partir de 300 m²
Dépôt de garantie :
3 mois de loyer HT HC
Conditions vente :
Loi Carrez et affectation juridique en cours de détermination
Prestations & équipements du bien
Le bâtiment
Immeuble moderne
Parties communes de qualité
Les espaces de travail
Fibre optique . Locaux neufs
Espace ouvert
Locaux rationnels et modulables
Plinthes périphériques
Le confort au quotidien
Climatisation réversible
Locaux lumineux
Terrasse privative
Moquette
Les accès
Accès PMR
Sécurité du site
Contrôle d'accès
Digicode - Interphone
Accessibilité
Ascenseur PMR
Autres
Faux-plafonds
Loi Carrez et affectation juridique en cours de détermination
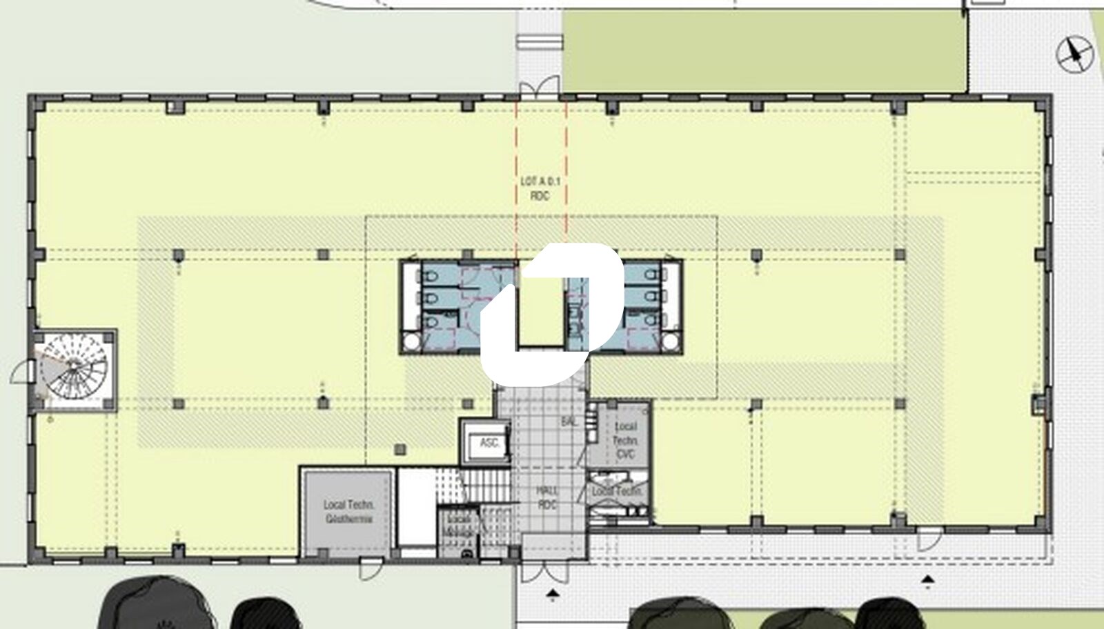
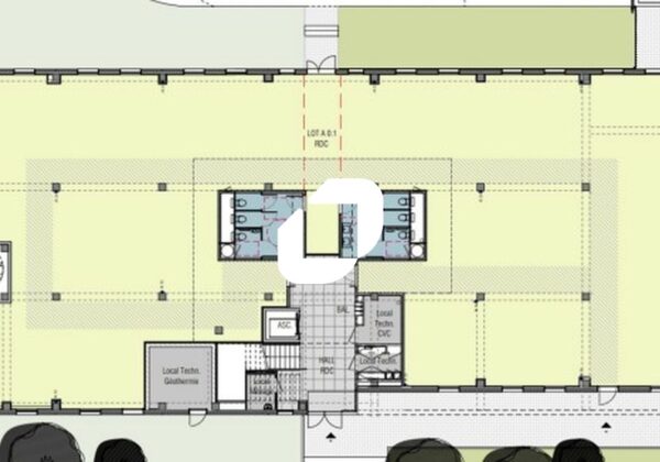
Répartition & surfaces des espaces
Tableau des divisibilités
| Type | Étage | Surface | Loyer (€/m²/an HT HC) |
Charges (€/m²/an HT HC) |
Prix achat (€/m² HT HC) |
Charges (achat) (€/m² HT HC) |
|---|---|---|---|---|---|---|
| Bureaux | Rez-de-Chaussée | 705 m² | 165.00 | Prix sur demande | 2 400.00 | Prix sur demande |
| Bureaux | 1er étage | 300 m² | 165.00 | Prix sur demande | 2 400.00 | Prix sur demande |
| Bureaux | 2ème étage | 675 m² | 165.00 | Prix sur demande | 2 400.00 | Prix sur demande |
Performance énergétique du bien (DPE)


Informations non contractuelles
Localisation & accès
Transports en commun à proximité
Gare à 5 minutes
Accès routier
Proximité A2 et A12
Arrêt à 350 mètres
[@logo439]
Adresses
approximatives
Adresses
précises
Nos nouveaux biens qui pourraient vous intéresser
Bureaux - 168m²
SAINTE FOY LES LYON (69110)
SAINTE FOY LES LYON (69110)
Prix sur demande
Disponibilité : Immédiate
Surface : 168 m²
Bureaux - 380m²
VIGNEUX DE BRETAGNE (44360)
VIGNEUX DE BRETAGNE (44360)
Prix sur demande
Disponibilité : A convenir
Surface : 380 m²
Les entrepreneurs ayant consulté cette offre ont aussi consulté celles ci
Bureaux - 168m²
SAINTE FOY LES LYON (69110)
SAINTE FOY LES LYON (69110)
Prix sur demande
Disponibilité : Immédiate
Surface : 168 m²
Bureaux - 380m²
VIGNEUX DE BRETAGNE (44360)
VIGNEUX DE BRETAGNE (44360)
Prix sur demande
Disponibilité : A convenir
Surface : 380 m²
Bureaux - 295m²
BOULOGNE BILLANCOURT (92100)
BOULOGNE BILLANCOURT (92100)
Prix sur demande
Disponibilité : Immédiate
Surface : 295 m²