Retour
Disponibilité 30 juin 2026
À Acheter ou à Louer Locaux d'Activités 5 220 m² 7 RUE AMPERE GEISPOLSHEIM (67118)
Ajouter au comparateur
Vous souhaitez faciliter votre recherche ?
Créez un compte
Présentation du bien
IMMPROVE vous propose un ensemble immobilier indépendant de plus de 5000 m² au cœur de la dynamique zone d'activité du Forlen à Geispolsheim.
Ce site, intégralement clôturé et sécurisé par un portail électrique, comprend un entrepôt accessible par quai ou de plain-pied, des bureaux fonctionnels avec locaux sociaux, et de nombreux emplacements de stationnement. Les racks de stockage peuvent faire l'objet d'une négociation. Disponibilité à la vente ou à la location.
Surface totale
Nature
Divisibilité
Etat des locaux
5 220 m²
Locaux d'Activités
Non
Bon état
Prix & Conditions
Loyer :
73 € /m²/an (HT/HC)
31 320 € /mois (HT/HC)
375 840 € /an (HT/HC)
Vente :
4 900 014 € (HD)
938.70 € /m² (HD)
Impôt foncier :
42127.00
Dépôt de garantie :
3 mois de loyer HT HC
Conditions vente :
Loi Carrez et affectation juridique en cours de détermination
Prestations & équipements du bien
Les espaces de travail
Eclairage néons et leds
Faux plafonds avec luminaires encastrés
Eclairage leds et néons
1 grand réfectoire avec cuisine
Le confort au quotidien
Sol lino / carrelage
Climatisation réversible + chauffage par convecteurs
Les accès
3 portes à quai
Prestations spécifiques
Hauteur libre : 5 à 7 m environ
Chauffage par radiants au gaz
Autres
Ossature métallique
Toiture bac acier isolée
Murs bardage double peau
Sol béton
1 porte de plain-pied
RIA
Eclairement par cintronef + trappes de désenfumage
Racks à étudier
Nombreux cloisonnés en R+1
Loi Carrez et affectation juridique en cours de détermination
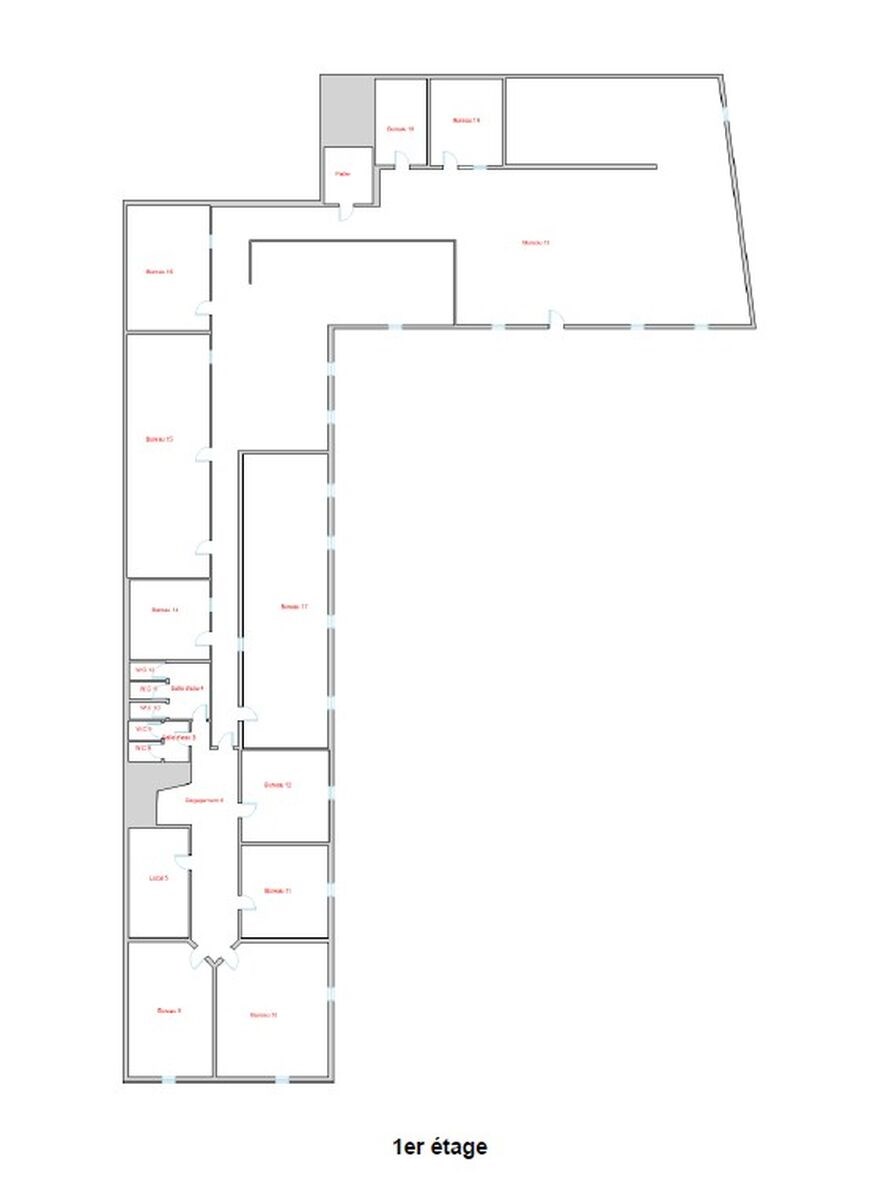
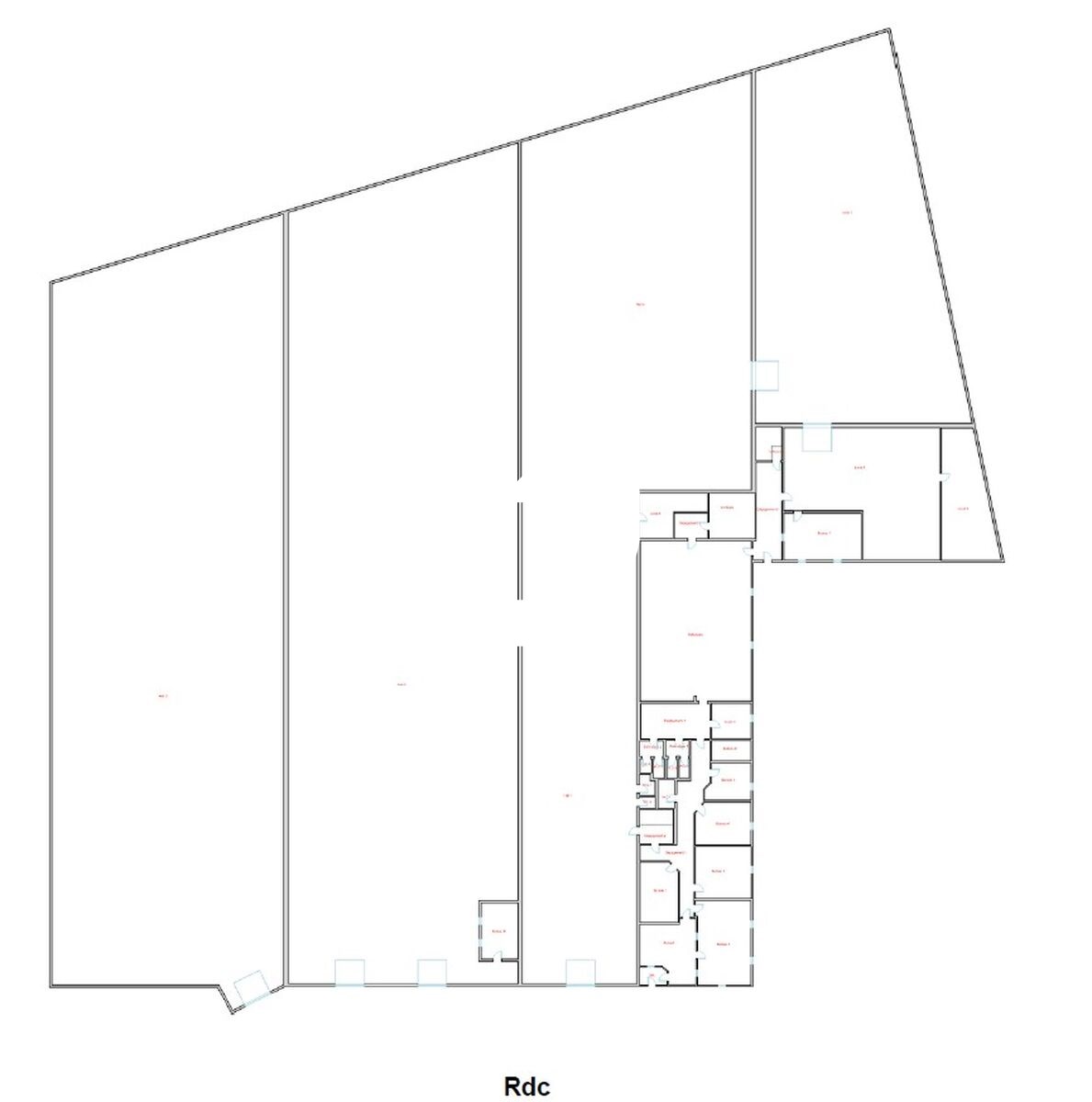
Répartition & surfaces des espaces
Tableau des divisibilités
| Type | Étage | Surface | Loyer (€/m²/an HT HC) |
Charges (€/m²/an HT HC) |
Prix achat (€/m² HT HC) |
Charges (achat) (€/m² HT HC) |
|---|---|---|---|---|---|---|
| Activités | 5 220 m² | 72.80 | 7 200.00 | 938.70 | Prix sur demande |
Performance énergétique du bien (DPE)


Informations non contractuelles
Localisation & accès
Transports en commun à proximité
64
Accès routier
A35 - Sortie Geispolsheim
Adresses
approximatives
Adresses
précises
Nos nouveaux biens qui pourraient vous intéresser
Locaux d'Activités - 374m²
GEISPOLSHEIM (67118)
GEISPOLSHEIM (67118)
Prix sur demande
Disponibilité : Immédiate
Surface : 374 m²
Les entrepreneurs ayant consulté cette offre ont aussi consulté celles ci
Locaux d'Activités - 1 794m²
SAINT PRIEST (69800)
SAINT PRIEST (69800)
Prix sur demande
Disponibilité : Octobre 2027
Surface : 1 794 m²
Locaux d'Activités - 1 980m²
FLEURIEUX SUR L'ARBRESLE (69210)
FLEURIEUX SUR L'ARBRESLE (69210)
Prix sur demande
Disponibilité : Immédiate
Surface : 1 980 m²
Locaux d'Activités - 507.70m²
SCHWEIGHOUSE SUR MODER (67590)
SCHWEIGHOUSE SUR MODER (67590)
Prix sur demande
Disponibilité : Immédiate
Surface : 507.70 m²
Locaux d'Activités - 253.85m²
SCHWEIGHOUSE SUR MODER (67590)
SCHWEIGHOUSE SUR MODER (67590)
Prix sur demande
Disponibilité : Immédiate
Surface : 253.85 m²