À Acheter ou à Louer Locaux d'Activités 3 543 m² divisibles à partir de 230 m² INNOVESPACE PERICA RUE DES TERRES BOURDIN RILLIEUX LA PAPE (69140)
Présentation du bien
Prix & Conditions
Prestations & équipements du bien
Façade en bardage double peau
Fibre optique
2 cours de desserte
Climatisation réversible
Balcons accessibles sur les bâtiments A, B et C
Cour de desserte privative pour le bâtiment D
Accès véhicules légers
Accès poids lourds
Accès PMR
Portail d'accès
Porte Sectionnelle 3 x 3,5m
Charge au sol : 2,5 tonnes / m²
Hauteur libre : 6,5 m
Puissance électrique : 36 kVA
54 places de stationnements
Bloc sanitaire PMR en RDC
Arrivée Gaz et fibre
Menuiserie aluminium double vitrage
Charpente métallique
Etanchéité multicouche sur bac acier
Accès mezzanine par escalier en béton
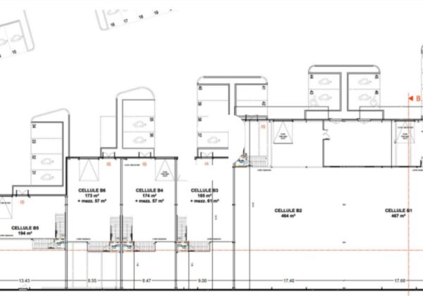
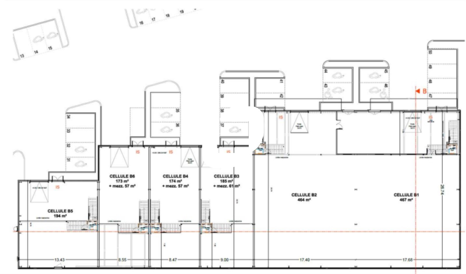
Répartition & surfaces des espaces
Tableau des divisibilités
| Type | Étage | Surface | Loyer (€/m²/an HT HC) |
Charges (€/m²/an HT HC) |
Prix achat (€/m² HT HC) |
Charges (achat) (€/m² HT HC) |
|---|---|---|---|---|---|---|
| Activités | 399 m² | 115.00 | Prix sur demande | 1 725.00 | Prix sur demande | |
| Activités | 400 m² | 115.00 | Prix sur demande | 1 725.00 | Prix sur demande | |
| Activités | 400 m² | 115.00 | Prix sur demande | 1 725.00 | Prix sur demande | |
| Activités | 400 m² | 115.00 | Prix sur demande | 1 725.00 | Prix sur demande | |
| Activités | 400 m² | 115.00 | Prix sur demande | 1 725.00 | Prix sur demande | |
| Activités | 440 m² | 115.00 | Prix sur demande | 1 725.00 | Prix sur demande | |
| Activités | 395 m² | 115.00 | Prix sur demande | 1 736.71 | Prix sur demande | |
| Activités | 246 m² | 115.00 | Prix sur demande | 1 850.00 | Prix sur demande | |
| Activités | 233 m² | 115.00 | Prix sur demande | 1 845.49 | Prix sur demande | |
| Activités | 230 m² | 115.00 | Prix sur demande | 1 847.83 | Prix sur demande |
Performance énergétique du bien (DPE)


Informations non contractuelles
Localisation & accès
Transports en commun à proximité
gare de Sathonay-Rillieux à quelques minutes à pieds
gare de Lyon Part-Dieu à 20 mn
gare de Vaise à 19 mn
Accès routier
A46 à 7 minutes
A43 à 12 minutes
Lyon Saint-Exupéry à 25 mn
Adresses
approximatives
Adresses
précises
Nos nouveaux biens qui pourraient vous intéresser
RILLIEUX LA PAPE (69140)
Les entrepreneurs ayant consulté cette offre ont aussi consulté celles ci
SAINT PRIEST (69800)
FLEURIEUX SUR L'ARBRESLE (69210)
SCHWEIGHOUSE SUR MODER (67590)
SCHWEIGHOUSE SUR MODER (67590)