Retour
Locaux d'Activités - 335m² à Acheter
. Toiture bac acier isolée
. Façade double peau
. Hauteur libre : 6 mètres
. Dalle béton et treillis soudé
. Charge au sol RDC : 2 T/m²
. Une sectionnelle par lot
. Eclairage LED et Eclairage naturel Zénithal
. Sécurité désenfumage selon la règlementation
. Electricité : triphasés tarif bleu (36KVA)
. Double WC
. Mezzanine
. Brut de béton
Locaux d'Activités - 335m² à Acheter
CHEMIN DES SOURCES SAINT GENIS LAVAL (69230)
DESCRIPTION
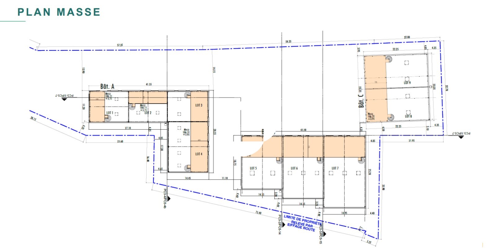
Immprove vous propose, sur la commune de St Genis Laval, avec un accès direct à l’ A450, le dernier lot d'activité de 355 m² sur un parc d'activité neuf.
En savoir plus
. Charpente métallique,. Toiture bac acier isolée
. Façade double peau
. Hauteur libre : 6 mètres
. Dalle béton et treillis soudé
. Charge au sol RDC : 2 T/m²
. Une sectionnelle par lot
. Eclairage LED et Eclairage naturel Zénithal
. Sécurité désenfumage selon la règlementation
. Electricité : triphasés tarif bleu (36KVA)
. Double WC
. Mezzanine
. Brut de béton
Consommations énergétiques


Informations non contractuelles
Tableau des divisibilités
| Type | Étage | Surface | Prix achat (€/m² HT HC) |
Charges (achat) (€/m² HT HC) |
|---|---|---|---|---|
| Activités | 335 m² | 1 750.00 | Prix sur demande |
Caractéristiques
. Prix parking en sus : 570€ HT HC/ unité
- Surface 335 m²
- Etat des locaux Neuf
Adresses
approximatives
Adresses
précises
Les entrepreneurs ayant consulté cette offre ont aussi consulté celles ci
Les services Immprove
Une gamme complète de services qui facilitent vos démarches et destinée à satisfaire vos attentes