Retour
Disponibilité 4ème Trimestre 2026
À Acheter Locaux d'Activités 2 324 m² divisibles à partir de 227 m² GRIGNY (91350)
Ajouter au comparateur
Vous souhaitez faciliter votre recherche ?
Créez un compte
Présentation du bien
Immprove vous propose une opportunité exceptionnelle dans le secteur de GRIGNY : un espace de 2 251 m² dédié aux activités et bureaux, divisibles à partir de 212 m². Ces locaux d'activités de dernière génération, dont certains sont situés en étage, offrent un cadre idéal pour développer votre entreprise.
Surface totale
Nature
Divisibilité
Etat des locaux
2 324 m²
Locaux d'Activités
Oui à partir de 227 m²
Neuf
Prix & Conditions
Vente :
1 344.42 € (HD)
1 344.42 € /m² (HD)
Divisibles à partir de 227 m²
Prestations & équipements du bien
Les espaces de travail
Espace ouvert
Faux plafonds
Plinthes périphériques
Sanitaires privatifs
Le confort au quotidien
Moquette ou Sol PVC
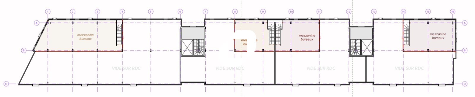
Répartition & surfaces des espaces
Tableau des divisibilités
| Type | Étage | Surface | Prix achat (€/m² HT HC) |
Charges (achat) (€/m² HT HC) |
|---|---|---|---|---|
| Activités | 452 m² | 2 207.96 | Prix sur demande | |
| Activités | 240 m² | 2 175.00 | Prix sur demande | |
| Activités | 248 m² | 2 185.48 | Prix sur demande | |
| Activités | 263 m² | 2 212.93 | Prix sur demande | |
| Activités | 2ème étage | 421 m² | 1 344.42 | Prix sur demande |
| Activités | 2ème étage | 227 m² | 1 352.43 | Prix sur demande |
| Activités | 2ème étage | 231 m² | 1 350.65 | Prix sur demande |
| Activités | 2ème étage | 242 m² | 1 347.11 | Prix sur demande |
| Parkings | 6 100.00 | Prix sur demande |
Performance énergétique du bien (DPE)


Informations non contractuelles
Localisation & accès
Transports en commun à proximité
SNCF gare de Grigny-Centre
420
510
Accès routier
Ferme Neuve (Ligne T12)
A6
Adresses
approximatives
Adresses
précises
Nos nouveaux biens qui pourraient vous intéresser
Locaux d'Activités - 743m²
CESTAS (33610)
CESTAS (33610)
870 000.99€ HT HC
Disponibilité : Immédiate
Surface : 743 m²
Locaux d'Activités - 3 659m²
AIZENAY (85190)
AIZENAY (85190)
3 191 928.65€ HT HC
Disponibilité : Immédiate
Surface : 3 659 m²
Locaux d'Activités - 4 000m²
SAINT PATHUS (77178)
SAINT PATHUS (77178)
3 375 000.00€ HT HC
Disponibilité : Immédiate
Surface : 4 000 m²
Locaux d'Activités - 470m²
HEROUVILLE EN VEXIN (95300)
HEROUVILLE EN VEXIN (95300)
600 002.00€ HT HC
Disponibilité : Immédiate
Surface : 470 m²
Les entrepreneurs ayant consulté cette offre ont aussi consulté celles ci
Locaux d'Activités - 1 980m²
FLEURIEUX SUR L'ARBRESLE (69210)
FLEURIEUX SUR L'ARBRESLE (69210)
Prix sur demande
Disponibilité : Immédiate
Surface : 1 980 m²
Locaux d'Activités - 743m²
CESTAS (33610)
CESTAS (33610)
870 000.99€ HT HC
Disponibilité : Immédiate
Surface : 743 m²
Locaux d'Activités - 507.70m²
SCHWEIGHOUSE SUR MODER (67590)
SCHWEIGHOUSE SUR MODER (67590)
Prix sur demande
Disponibilité : Immédiate
Surface : 507.70 m²
Locaux d'Activités - 253.85m²
SCHWEIGHOUSE SUR MODER (67590)
SCHWEIGHOUSE SUR MODER (67590)
Prix sur demande
Disponibilité : Immédiate
Surface : 253.85 m²