Retour
Disponibilité Immédiate
À Acheter ou à Louer Locaux d'Activités 442 m² VILLEJUIF (94800)
Ajouter au comparateur
Vous souhaitez faciliter votre recherche ?
Créez un compte
Présentation du bien
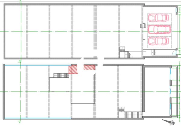
IMMPROVE vous propose à la location ou à la vente un bâtiment indépendant d'activités de 440m² non divisibles, situé à VILLEJUIF, en zone pavillonnaire à proximité des lignes de métro 14 et ligne 7. Ce bien bénéficie d'un accès privatif sur la rue et d'un quai de déchargement intérieur pouvant accueillir jusqu'à 3 véhicules légers. Une opportunité idéale pour votre entreprise, contactez-nous dès maintenant pour en savoir plus ! Travaux à prévoir.
Surface totale
Nature
Divisibilité
Etat des locaux
442 m²
Locaux d'Activités
Non
Travaux à prévoir
Prix & Conditions
Loyer :
Prix sur demande
Prix sur demande
Prix sur demande
Vente :
Prix sur demande
Impôt foncier :
5.50
Dépôt de garantie :
2 mois de loyer HT/HC
Prestations & équipements du bien
Le bâtiment
Bâtiment indépendant
Immeuble mixte
Les espaces de travail
Travaux à prévoir
Bureaux cloisonnés
Espace détente
Local technique
Cuisine
Sanitaires privatifs
Décloisonnement possible
Locaux rationnels et modulables
Le confort au quotidien
Locaux lumineux
Terrasse privative
Les accès
Accès véhicules légers
Accès privatif sur rue
Aire de chargement
Quai :
Autres
Vestiaire
Sanitaires
Répartition & surfaces des espaces
Tableau des divisibilités
| Type | Étage | Surface | Loyer (€/m²/an HT HC) |
Charges (€/m²/an HT HC) |
Prix achat (€/m² HT HC) |
Charges (achat) (€/m² HT HC) |
|---|---|---|---|---|---|---|
| Parkings | Prix sur demande | Prix sur demande | Prix sur demande | Prix sur demande | ||
| Activités | Rez-de-Chaussée | 392 m² | Prix sur demande | Prix sur demande | Prix sur demande | Prix sur demande |
| Bureaux | 1er étage | 50 m² | Prix sur demande | Prix sur demande | Prix sur demande | Prix sur demande |
Performance énergétique du bien (DPE)


Informations non contractuelles
Localisation & accès
Transports en commun à proximité
Villejuif Paul Vaillant Couturier
162
Accès routier
VILLEJUIF - LOUIS ARAGON (T7)
A6B
Boulevard Périphérique: Porte D’Italie
Adresses
approximatives
Adresses
précises
Nos nouveaux biens qui pourraient vous intéresser
Locaux d'Activités - 1 794m²
SAINT PRIEST (69800)
SAINT PRIEST (69800)
Prix sur demande
Disponibilité : Octobre 2027
Surface : 1 794 m²
Locaux d'Activités - 1 980m²
FLEURIEUX SUR L'ARBRESLE (69210)
FLEURIEUX SUR L'ARBRESLE (69210)
Prix sur demande
Disponibilité : Immédiate
Surface : 1 980 m²
Locaux d'Activités - 507.70m²
SCHWEIGHOUSE SUR MODER (67590)
SCHWEIGHOUSE SUR MODER (67590)
Prix sur demande
Disponibilité : Immédiate
Surface : 507.70 m²
Locaux d'Activités - 253.85m²
SCHWEIGHOUSE SUR MODER (67590)
SCHWEIGHOUSE SUR MODER (67590)
Prix sur demande
Disponibilité : Immédiate
Surface : 253.85 m²
Les entrepreneurs ayant consulté cette offre ont aussi consulté celles ci
Locaux d'Activités - 1 794m²
SAINT PRIEST (69800)
SAINT PRIEST (69800)
Prix sur demande
Disponibilité : Octobre 2027
Surface : 1 794 m²
Locaux d'Activités - 1 980m²
FLEURIEUX SUR L'ARBRESLE (69210)
FLEURIEUX SUR L'ARBRESLE (69210)
Prix sur demande
Disponibilité : Immédiate
Surface : 1 980 m²
Locaux d'Activités - 507.70m²
SCHWEIGHOUSE SUR MODER (67590)
SCHWEIGHOUSE SUR MODER (67590)
Prix sur demande
Disponibilité : Immédiate
Surface : 507.70 m²
Locaux d'Activités - 253.85m²
SCHWEIGHOUSE SUR MODER (67590)
SCHWEIGHOUSE SUR MODER (67590)
Prix sur demande
Disponibilité : Immédiate
Surface : 253.85 m²