Retour
Terrain - 25 396m² à Acheter
. Accès poids lourds
. Terrain viabilisé et raccordé
. Electricité
. Raccordement d'eau
. Sol bitumé . Zone UI
. Destination acceptée : Restauration, Commerce de gros, Equipement d'intérêt collectif et services publics, industrie, activité, entrepôt et bureaux
. Recul voie publique : min 5 mètres
. Recul limites séparatives : min 5 mètres
. Hauteur construction : maxi 15 mètres
Terrain - 25 396m² à Acheter
VILLIEU LOYES MOLLON (01800)
DESCRIPTION
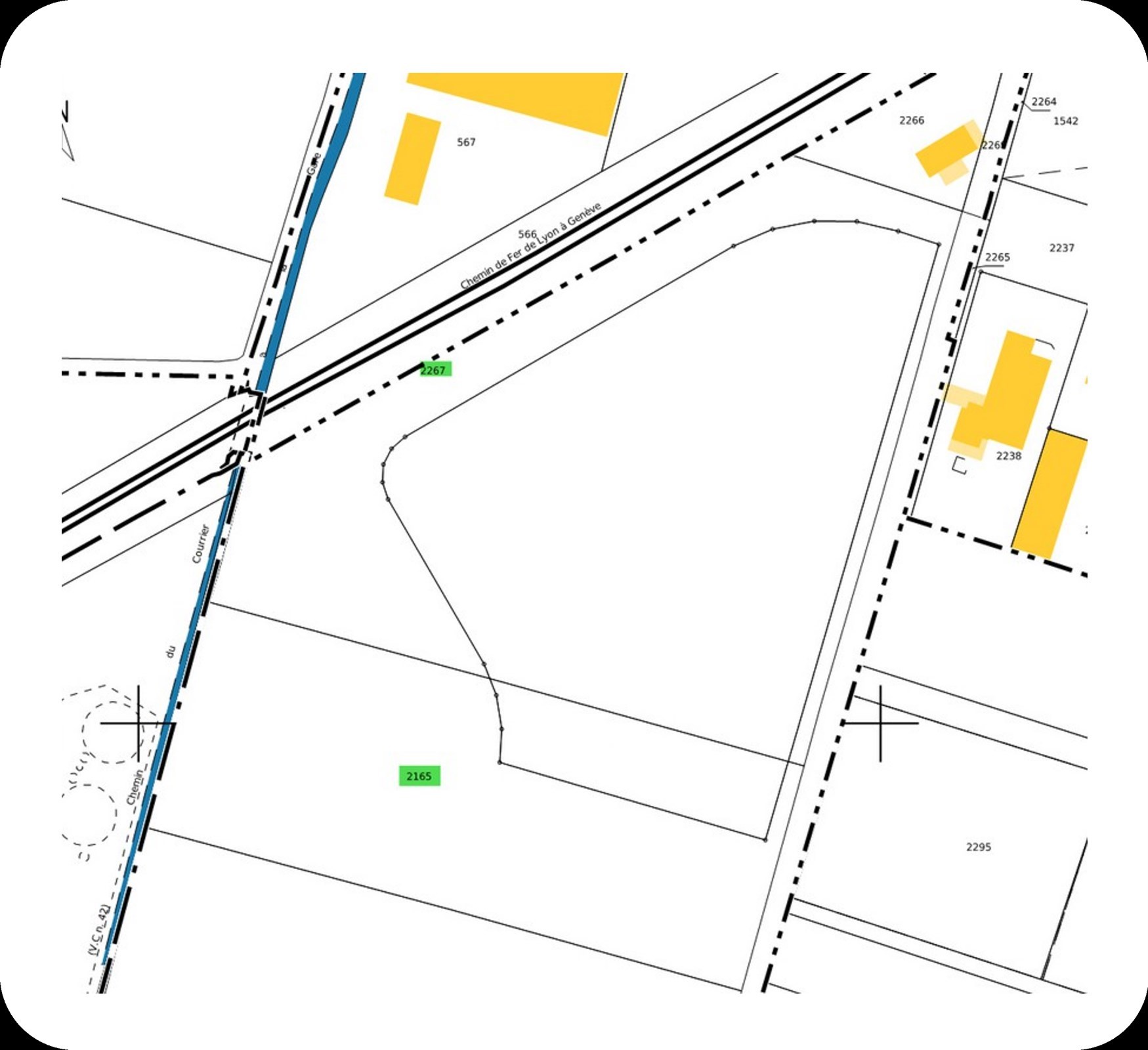
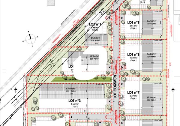
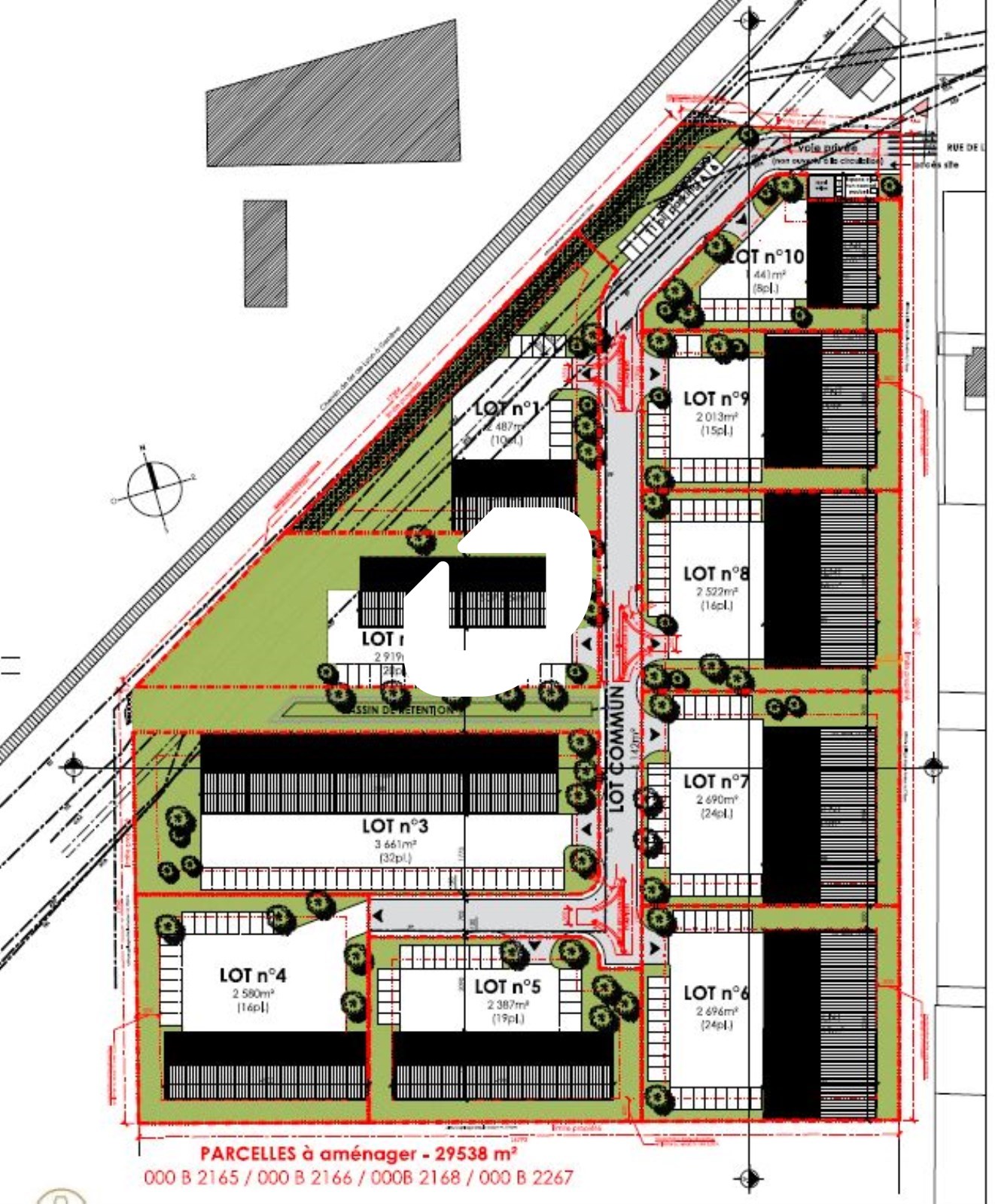
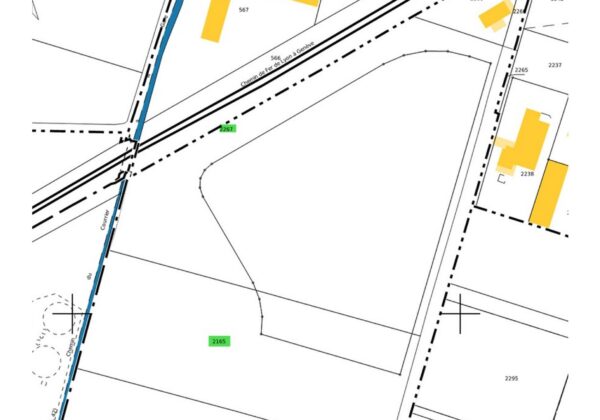
Sur la commune de Villieu-Loyes-Mollon, Immprove vous propose 10 lots à bâtir avec voirie commune sur un terrain de 29 500 m². L’ensemble des lots seront préparés et équipés, proposant des prestations afin de garantir leur viabilité et leur intégration dans le projet.
En savoir plus
. Accès véhicules légers. Accès poids lourds
. Terrain viabilisé et raccordé
. Electricité
. Raccordement d'eau
. Sol bitumé . Zone UI
. Destination acceptée : Restauration, Commerce de gros, Equipement d'intérêt collectif et services publics, industrie, activité, entrepôt et bureaux
. Recul voie publique : min 5 mètres
. Recul limites séparatives : min 5 mètres
. Hauteur construction : maxi 15 mètres
Consommations énergétiques


Informations non contractuelles
Tableau des divisibilités
| Type | Étage | Surface | Prix achat (€/m² HT HC) |
Charges (achat) (€/m² HT HC) |
|---|---|---|---|---|
| Terrain | 2 487 m² | 90.00 | Prix sur demande | |
| Terrain | 1 441 m² | 95.00 | Prix sur demande | |
| Terrain | 2 919 m² | 95.00 | Prix sur demande | |
| Terrain | 3 661 m² | 100.00 | Prix sur demande | |
| Terrain | 2 580 m² | 95.00 | Prix sur demande | |
| Terrain | 2 387 m² | 95.00 | Prix sur demande | |
| Terrain | 2 696 m² | 110.00 | Prix sur demande | |
| Terrain | 2 690 m² | 110.00 | Prix sur demande | |
| Terrain | 2 522 m² | 110.00 | Prix sur demande | |
| Terrain | 2 013 m² | 110.00 | Prix sur demande |
Caractéristiques
Loi Carrez et affectation juridique en cours de détermination
- Surface 25 396 m²
Adresses
approximatives
Adresses
précises
Les entrepreneurs ayant consulté cette offre ont aussi consulté celles ci
Les services Immprove
Une gamme complète de services qui facilitent vos démarches et destinée à satisfaire vos attentes