Retour
Locaux d'Activités - 3 100m² à Acheter ou à Louer
. Toiture préconçue centrale photovoltaïque
. Façade bardage
. Porte sectionnelle
. Places de parking (accès PL et VL)
. Stationnement pré-équipé IRVE
. Option mezzanine
Locaux d'Activités - 3 100m² à Acheter ou à Louer
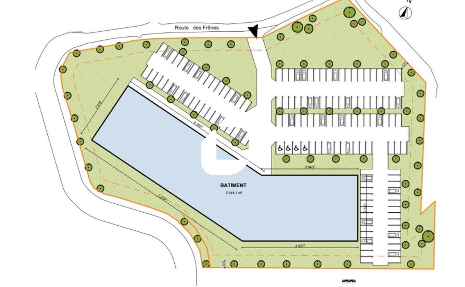
ACTIPARC DES FRENES - 671 ROUTES DES FRENES ARNAS (69400)
DESCRIPTION
Immprove vous propose à la vente ou à louer, au nord de la ZA d’Arnas, sur un terrain indépendant de 11 800 m² avec visibilité depuis l’A6, un clé en main pour un bâtiment d’activité ou stockage. Possibilité de créer plusieurs clé en main sur le terrain.
En savoir plus
. Structure métallique. Toiture préconçue centrale photovoltaïque
. Façade bardage
. Porte sectionnelle
. Places de parking (accès PL et VL)
. Stationnement pré-équipé IRVE
. Option mezzanine
Consommations énergétiques


Informations non contractuelles
Tableau des divisibilités
| Type | Étage | Surface | Loyer (€/m²/an HT HC) |
Charges (€/m²/an HT HC) |
Prix achat (€/m² HT HC) |
Charges (achat) (€/m² HT HC) |
|---|---|---|---|---|---|---|
| Activités | 3 100 m² | Prix sur demande | Prix sur demande | Prix sur demande | Prix sur demande |
Caractéristiques
Nombreux parkings extérieurs VL selon projet
- Surface 3 100 m²
- Etat des locaux Brut de béton
Adresses
approximatives
Adresses
précises
Les entrepreneurs ayant consulté cette offre ont aussi consulté celles ci
Les services Immprove
Une gamme complète de services qui facilitent vos démarches et destinée à satisfaire vos attentes