Bureaux Coworking partagés 850 m² | 158 postes LE PLAYGROUND PARIS SACLAY 3 BOULEVARD THOMAS GOBERT PALAISEAU (91120)
Présentation du bien
Prix & Conditions
Prestations & équipements du bien
Prix tout inclus : domiciliation d'entreprise, gestion courrier, réception et personnel d'accueil, charges, nettoyage et maintenance
Espaces de travail additionnels : salle de réunion, bureaux et coworking à la carte
Cuisine et sanitaires
Un Restaurant terrasse avec livraison d'étage
2 terrasses
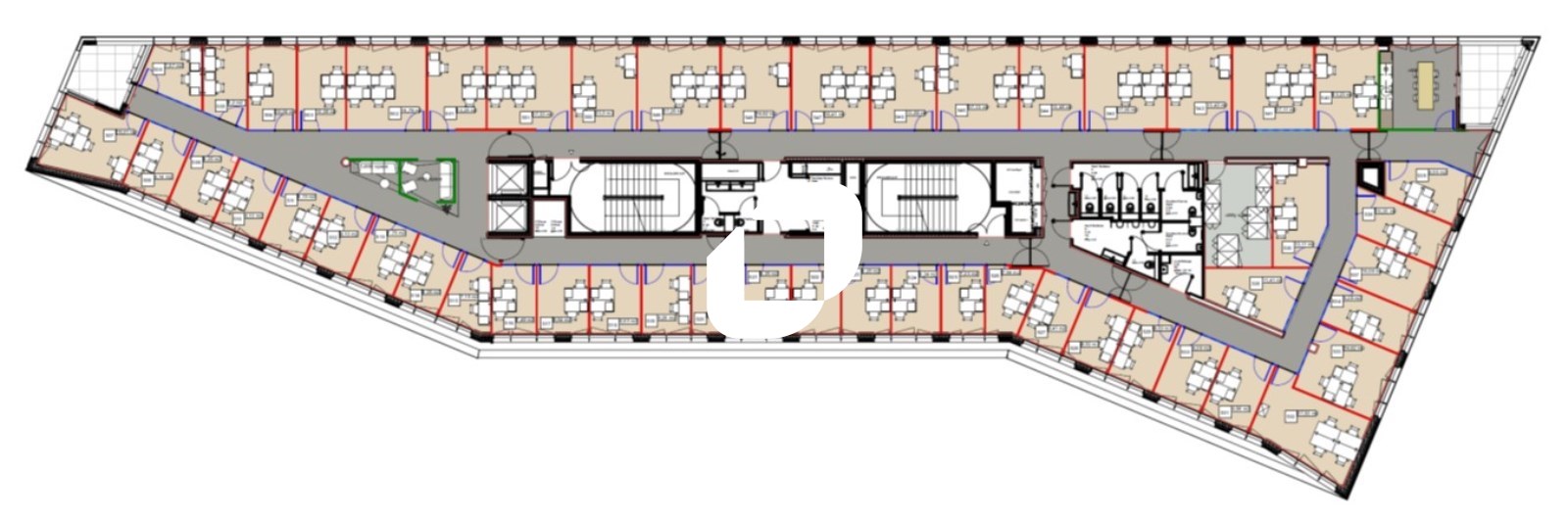
Plateau de 850 m² privatisable :
Jusqu'à 158 postes de travail et 51 bureaux privés
Décloisonnement et aménagements sur mesure
Divisible par lot de 50 postes / 200 m²
Salles de réunion tout équipée (4 à 20 personnes)
Accès à tous les salons d'affaire IWG
Espace Evènementiel avec Café connecté
Salle de conférence de 150 personnes
Espace Medialab : logiciels dernier cri et espace réalité virtuelle
Show-room technologique et scientifique made in Paris-Saclay
Contrat flexibles : choix dans la durée du contrat
Accès internet haut débit inclus
Rooftop accessible à tous les clients
Mobilier moderne inclus
Business lounge
Espace de pauses
Répartition & surfaces des espaces
Tableau des divisibilités
| Type | Étage | Surface | Loyer (€/m²/an HT HC) |
Charges (€/m²/an HT HC) |
Prix achat (€/m² HT HC) |
Charges (achat) (€/m² HT HC) |
|---|---|---|---|---|---|---|
| Coworking | 5ème étage | 850 m² | 5 400.00 | Prix sur demande | Prix sur demande | Prix sur demande |
Performance énergétique du bien (DPE)


Informations non contractuelles
Localisation & accès
Transports en commun à proximité
SNCF gare de TGV Massy Palaiseau
Accès routier
N118
A10
Adresses
approximatives
Adresses
précises