Retour
Disponibilité Immédiate
À Louer Locaux d'Activités 145 m² COUERON (44220)
Ajouter au comparateur
Vous souhaitez faciliter votre recherche ?
Créez un compte
Présentation du bien
IMMPROVE vous propose un local d’activtés neuf au sein d’un parc sécurisé à proximité immédiate d’Atlantis. Une porte sectionnelle (3.6mx4.2m) manuelle, accès PMR, respect des normes RT 2012, bardage double peau isolé, éclairage LED. Local polyvalent, combinant espace de stockage, bureaux fonctionnels et mezzanine supplémentaire.
Surface totale
Nature
Divisibilité
Etat des locaux
145 m²
Locaux d'Activités
Non
Neuf
Prix & Conditions
Loyer :
99 € /m²/an (HT/HC)
1 196 € /mois (HT/HC)
14 355 € /an (HT/HC)
Dépôt de garantie :
3 mois de loyer HT HC
Prestations & équipements du bien
Le bâtiment
Façade en bardage
Les espaces de travail
Faux plafonds
Cloisons sèches
Plinthes périphériques
Le confort au quotidien
Climatisation réversible . Locaux lumineux
Carrelage
Climatisation réversible
Les accès
Accès véhicules légers
Accès PMR
Portail d'accès
Porte sectionnelle de plain-pied :
Dimensions porte : 4,2 (H) x3,6 ( L) m
Sécurité du site
Contrôle d'accès
Télésurveillance
Site sécurisé 24/24h
Site clos
Prestations spécifiques
Chauffage électrique
Charge au sol : 1 tonne / m²
Hauteur libre : 6,7 m
Autres
Sanitaires
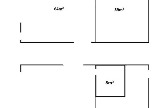
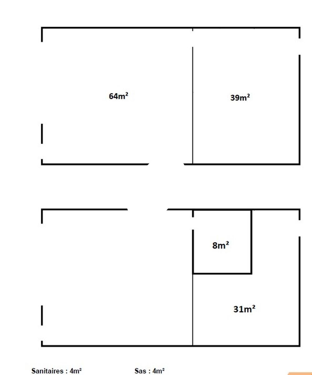
Répartition & surfaces des espaces
Tableau des divisibilités
| Type | Étage | Surface | Loyer (€/m²/an HT HC) |
Charges (€/m²/an HT HC) |
|---|---|---|---|---|
| Activités | 145 m² | 99.23 | 15.72 |
Performance énergétique du bien (DPE)


Informations non contractuelles
Localisation & accès
Transports en commun à proximité
30 minutes de la gare de Nantes
Coueron / La montagne 850m
Accès routier
Porte 33 Ar Mor à 5 min
N444 AXE NANTES / ST NAZAIRE
Adresses
approximatives
Adresses
précises
Nos nouveaux biens qui pourraient vous intéresser
Locaux d'Activités - 930m²
COUERON (44220)
COUERON (44220)
6 200.00€/mois HT HC
Disponibilité : Immédiate
Surface : 930 m²
Locaux d'Activités - 320m²
COUERON (44220)
COUERON (44220)
4 000.00€/mois HT HC
Disponibilité : Immédiate
Surface : 320 m²
Les entrepreneurs ayant consulté cette offre ont aussi consulté celles ci
Locaux d'Activités - 507.70m²
SCHWEIGHOUSE SUR MODER (67590)
SCHWEIGHOUSE SUR MODER (67590)
Prix sur demande
Disponibilité : Immédiate
Surface : 507.70 m²
Locaux d'Activités - 215m²
SCHILTIGHEIM (67300)
SCHILTIGHEIM (67300)
1 433.33€/mois HT HC
Disponibilité : Immédiate
Surface : 215 m²
Locaux d'Activités - 253.85m²
SCHWEIGHOUSE SUR MODER (67590)
SCHWEIGHOUSE SUR MODER (67590)
Prix sur demande
Disponibilité : Immédiate
Surface : 253.85 m²
Locaux d'Activités - 290m²
SAINT HERBLAIN (44800)
SAINT HERBLAIN (44800)
2 333.29€/mois HT HC
Disponibilité : Immédiate
Surface : 290 m²