Retour
À Acheter ou à Louer Locaux d'Activités 4 596 m² divisibles à partir de 2 298 m² LE PLESSIS BELLEVILLE (60330)
Ajouter au comparateur
Vous souhaitez faciliter votre recherche ?
Créez un compte
Présentation du bien
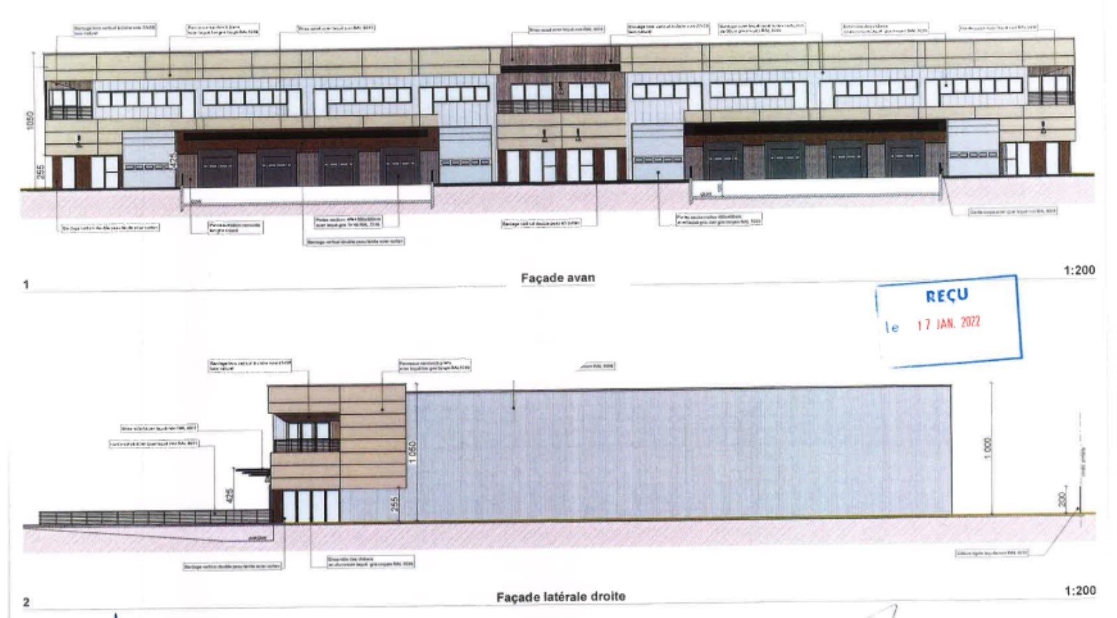
Immprove vous propose à la location un bâtiment indépendant neuf d’activités et de bureaux de 4596 m² équipés de huit quais de déchargement et de quatre accès plain pied et divisible à partir de 2 298 m², le tout sur un terrain de 10 000 m².
Surface totale
Nature
Divisibilité
Etat des locaux
4 596 m²
Locaux d'Activités
Oui à partir de 2 298 m²
Bon état
Prix & Conditions
Loyer :
78 € /m²/an (HT/HC)
14 937 € /mois (HT/HC)
179 244 € /an (HT/HC)
Divisibles à partir de 2 298 m²
Vente :
3 791 700 € (HD)
825.00 € /m² (HD)
Divisibles à partir de 2 298 m²
Dépôt de garantie :
3 mois de loyer HT HC
Conditions location :
Taxe bureaux : Nous consulter
Prestations & équipements du bien
Le bâtiment
Façade mur rideau
Les espaces de travail
Espace ouvert
Bureaux cloisonnés
Salle de réunion
Espace détente
Local technique
Cuisine
Locaux rationnels et modulables
Faux plafonds
Pré-câblage informatique et
Sanitaires privatifs
Le confort au quotidien
Terrasse privative
Balcon
Locaux lumineux
Moquette
Parquet
Les accès
Accès véhicules légers
Accès poids lourds
Accès privatif sur rue
Aire de manœuvre
Aire de chargement
Portail d'accès
Quai :4 Quais et 2 accès plain pied par
Sécurité du site
Digicode
Interphone
Site clos
Services & espaces partagés
Réfectoire / Cafétéria
Prestations spécifiques
Chauffage électrique
Puissance électrique : 60 kVA
Chauffage par aérotherme gaz
Charge au sol : 3 tonnes / m²
Hauteur libre : 9 m
Autres
Accès P.M.R.
téléphonique*
Lot
Douche
Vestiaire
Sanitaires
Taxe bureaux : Nous consulter
Répartition & surfaces des espaces
Tableau des divisibilités
| Type | Étage | Surface | Loyer (€/m²/an HT HC) |
Charges (€/m²/an HT HC) |
Prix achat (€/m² HT HC) |
Charges (achat) (€/m² HT HC) |
|---|---|---|---|---|---|---|
| Activités | 2 298 m² | 78.00 | Prix sur demande | 1 650.00 | Prix sur demande | |
| Activités | 2 298 m² | 78.00 | Prix sur demande | 1 650.00 | Prix sur demande |
Performance énergétique du bien (DPE)


Informations non contractuelles
Localisation & accès
Transports en commun à proximité
SNCF gare de Le Plessis-Belleville (TRAIN)
SNCF gare de Le Plessis-Belleville
Nos nouveaux biens qui pourraient vous intéresser
Locaux d'Activités - 1 794m²
SAINT PRIEST (69800)
SAINT PRIEST (69800)
Prix sur demande
Disponibilité : Octobre 2027
Surface : 1 794 m²
Locaux d'Activités - 1 980m²
FLEURIEUX SUR L'ARBRESLE (69210)
FLEURIEUX SUR L'ARBRESLE (69210)
Prix sur demande
Disponibilité : Immédiate
Surface : 1 980 m²
Locaux d'Activités - 507.70m²
SCHWEIGHOUSE SUR MODER (67590)
SCHWEIGHOUSE SUR MODER (67590)
Prix sur demande
Disponibilité : Immédiate
Surface : 507.70 m²
Locaux d'Activités - 253.85m²
SCHWEIGHOUSE SUR MODER (67590)
SCHWEIGHOUSE SUR MODER (67590)
Prix sur demande
Disponibilité : Immédiate
Surface : 253.85 m²
Les entrepreneurs ayant consulté cette offre ont aussi consulté celles ci
Locaux d'Activités - 1 794m²
SAINT PRIEST (69800)
SAINT PRIEST (69800)
Prix sur demande
Disponibilité : Octobre 2027
Surface : 1 794 m²
Locaux d'Activités - 1 980m²
FLEURIEUX SUR L'ARBRESLE (69210)
FLEURIEUX SUR L'ARBRESLE (69210)
Prix sur demande
Disponibilité : Immédiate
Surface : 1 980 m²
Locaux d'Activités - 507.70m²
SCHWEIGHOUSE SUR MODER (67590)
SCHWEIGHOUSE SUR MODER (67590)
Prix sur demande
Disponibilité : Immédiate
Surface : 507.70 m²
Locaux d'Activités - 253.85m²
SCHWEIGHOUSE SUR MODER (67590)
SCHWEIGHOUSE SUR MODER (67590)
Prix sur demande
Disponibilité : Immédiate
Surface : 253.85 m²