Retour
Disponibilité Immédiate
À Louer Activités et Bureaux 1 012.04 m² divisibles à partir de 15 m² RUE MICHAEL FARADAY MONTIGNY LE BRETONNEUX (78180)
Ajouter au comparateur
Vous souhaitez faciliter votre recherche ?
Créez un compte
Présentation du bien
IMMPROVE vous propose à la location des locaux mixte à Montigny le Bretonneux à proximité immédiate des accès N12.
Une surface de 46 m² d’activité est disponible en RDC avec un accès livraison annexe et différentes surfaces de bureaux sont disponibles au rez-de-chaussée également.
Surface totale
Nature
Divisibilité
Etat des locaux
1 012.04 m²
Activités et Bureaux
Oui à partir de 15 m²
Neuf
Prix & Conditions
Loyer :
130 € /m²/an (HT/HC)
162 € /mois (HT/HC)
1 950 € /an (HT/HC)
Divisibles à partir de 15 m²
Impôt foncier :
15.00
Taxe bureaux :
10
Dépôt de garantie :
3 mois de loyer HT HC
Conditions location :
. Chauffage électrique dont la consommation est payée de manière individuelle
. Possibilité d’accès à la fibre pour 50€/mois
. Possibilité d’accès à la fibre pour 50€/mois
Prestations & équipements du bien
Le bâtiment
Immeuble moderne
Parties communes rénovées récemment
Les espaces de travail
Cafétéria . Locaux en bon état et lumineux
Décloisonnement possible
Locaux rationnels et modulables
Faux plafonds
Le confort au quotidien
Parquet
Les accès
Porte sectionnelle de plain-pied
Sécurité du site
Digicode
Interphone
Prestations spécifiques
Chauffage électrique
. Chauffage électrique dont la consommation est payée de manière individuelle
. Possibilité d’accès à la fibre pour 50€/mois
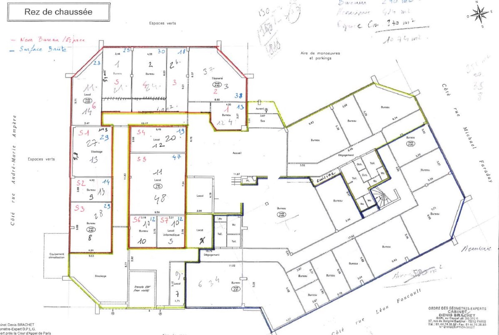
Répartition & surfaces des espaces
Tableau des divisibilités
| Type | Étage | Surface | Loyer (€/m²/an HT HC) |
Charges (€/m²/an HT HC) |
|---|---|---|---|---|
| Activités | Rez-de-Chaussée | 46 m² | 130.00 | 55.00 |
| Bureaux | Rez-de-Chaussée | 66 m² | 180.00 | 65.00 |
| Bureaux | 1er étage | 900 m² | 180.00 | 65.00 |
Performance énergétique du bien (DPE)


Informations non contractuelles
Localisation & accès
Transports en commun à proximité
Lignes 5104 – 5134 - 6288
Accès routier
Autoroutes A12 et A86
Nationale N12
Adresses
approximatives
Adresses
précises
Nos nouveaux biens qui pourraient vous intéresser
Activités et Bureaux - 1 000m²
GENNEVILLIERS (92230)
GENNEVILLIERS (92230)
12 083.33€/mois HT HC
Disponibilité : Immédiate
Surface : 1 000 m²
Activités et Bureaux - 840m²
VILLEJUST (91140)
VILLEJUST (91140)
9 100.00€/mois HT HC
Disponibilité : Immédiate
Surface : 840 m²
Activités et Bureaux - 430m²
MEUDON (92190)
MEUDON (92190)
8 420.83€/mois HT HC
Disponibilité : Immédiate
Surface : 430 m²
Activités et Bureaux - 446m²
BIEVRES (91570)
BIEVRES (91570)
4 460.00€/mois HT HC
Disponibilité : 1er septembre 2026
Surface : 446 m²
Les entrepreneurs ayant consulté cette offre ont aussi consulté celles ci
Activités et Bureaux - 430m²
MEUDON (92190)
MEUDON (92190)
8 420.83€/mois HT HC
Disponibilité : Immédiate
Surface : 430 m²
Activités et Bureaux - 446m²
BIEVRES (91570)
BIEVRES (91570)
4 460.00€/mois HT HC
Disponibilité : 1er septembre 2026
Surface : 446 m²
Activités et Bureaux - 1 374m² Divisibles à partir de 128 m²
MARCOUSSIS (91460)
MARCOUSSIS (91460)
2 735.72€/mois HT HC
Disponibilité : Immédiate
Surface : divisibles à partir de 128 m²
Activités et Bureaux - 527m²
GENNEVILLIERS (92230)
GENNEVILLIERS (92230)
7 026.67€/mois HT HC
Disponibilité : Immédiate
Surface : 527 m²