Retour
Disponibilité Immédiate
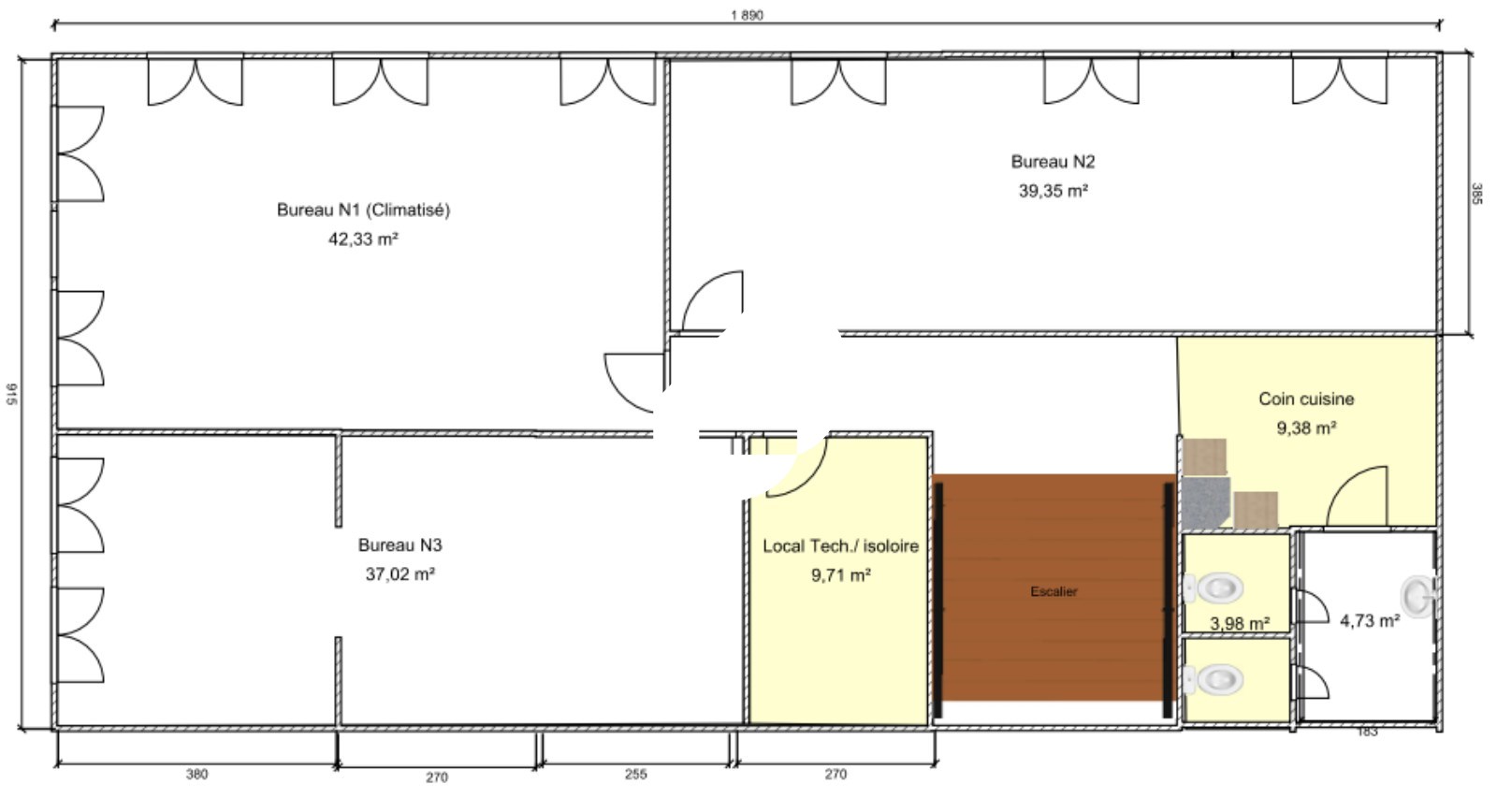
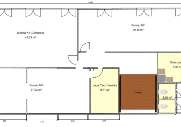
À Louer Bureaux 94.26 m² divisibles à partir de 45.70 m² BAGNEUX (92220)
Ajouter au comparateur
Vous souhaitez faciliter votre recherche ?
Créez un compte
Présentation du bien
IMMPROVE vous propose une opportunité exceptionnelle de location de bureaux à Bagneux, d'une superficie totale de 146 m², divisibles à partir de 45 m². Ces espaces modernes et fonctionnels offrent un cadre de travail idéal pour votre entreprise. Ne manquez pas cette occasion unique de vous installer dans un environnement professionnel de qualité.
Surface totale
Nature
Divisibilité
Etat des locaux
94.26 m²
Bureaux
Oui à partir de 45.70 m²
Bon état
Prix & Conditions
Loyer :
168 € /m²/an (HT/HC)
639 € /mois (HT/HC)
7 677 € /an (HT/HC)
Divisibles à partir de 45.70 m²
Impôt foncier :
8.38
Taxe bureaux :
16.77
Dépôt de garantie :
3 mois de loyer HT HC
Prestations & équipements du bien
Les espaces de travail
Fibre optique . Locaux lumineux
Bureaux cloisonnés
Décloisonnement possible
Faux plafonds
Salle de réunion
Sanitaires privatifs
Le confort au quotidien
Climatisation réversible
Belle hauteur sous plafond
Moquette
Les accès
Accès véhicules légers
Aire de manœuvre
Sécurité du site
Télésurveillance
Interphone
Prestations spécifiques
Chauffage par aérotherme électrique
Répartition & surfaces des espaces
Tableau des divisibilités
| Type | Étage | Surface | Loyer (€/m²/an HT HC) |
Charges (€/m²/an HT HC) |
|---|---|---|---|---|
| Bureaux | 1er étage | 46 m² | 168.00 | 25.16 |
| Bureaux | 1er étage | 49 m² | 168.00 | 25.16 |
Performance énergétique du bien (DPE)


Informations non contractuelles
Localisation & accès
Transports en commun à proximité
188
128
Adresses
approximatives
Adresses
précises
Nos nouveaux biens qui pourraient vous intéresser
Bureaux - 13 655m² Divisibles à partir de 826 m²
BAGNEUX (92220)
BAGNEUX (92220)
22 715.00€/mois HT HC
Disponibilité : Immédiate
Surface : divisibles à partir de 826 m²
Bureaux - 6 093m² Divisibles à partir de 349 m²
BAGNEUX (92220)
BAGNEUX (92220)
73 287.50€/mois HT HC
Disponibilité : Immédiate
Surface : divisibles à partir de 349 m²
Bureaux - 36 003m² Divisibles à partir de 1 665 m²
BAGNEUX (92220)
BAGNEUX (92220)
32 345.83€/mois HT HC
Disponibilité : Immédiate
Surface : divisibles à partir de 1 665 m²
Bureaux - 5 087m² Divisibles à partir de 1 000 m²
BAGNEUX (92220)
BAGNEUX (92220)
69 905.00€/mois HT HC
Disponibilité : Immédiate
Surface : divisibles à partir de 1 000 m²
Les entrepreneurs ayant consulté cette offre ont aussi consulté celles ci
Bureaux - 83.60m²
BUSSY SAINT GEORGES (77600)
BUSSY SAINT GEORGES (77600)
1 288.00€/mois HT HC
Disponibilité : Immédiate
Surface : 83.60 m²
Bureaux - 6 934m² Divisibles à partir de 173 m²
LYON (69009)
LYON (69009)
Prix sur demande
Disponibilité : Selon les lots – nous consulter
Surface : divisibles à partir de 173 m²