À Louer Activités et Bureaux 2 574 m² divisibles à partir de 140 m² 31 ALLEE DES PEPINIERES FRESNES (94260)
Présentation du bien
Prix & Conditions
Prestations & équipements du bien
Façade en pierres agrafées
Parties communes de qualité
Sol PVC, climatisation, LED, prises et RJ45, sanitaires neufs (4 sanitaires)
Dalle béton recouvert peinture Epoxy, mur repeints, sanitaires neufs (x4), LED, aérothermes électriques
2 blocs sanitaires privatifs
Prestation RDC (prévu pour avril 2023) : dalle béton recouvert peinture epoxy, mur repeints, sanitaires neufs, LED.
Prestation étage (prévu pour avril 2023) : sol PVC, LED, dépose divisions bureau.
Lot sera entièrement refait à neuf
Climatisation réversible
Accès véhicules légers et poids lourds
Double accès
Porte sectionnelle Lot D7.1.2 :
Contrôle d'accès et site sécurisé 24h/24h
PC sécurité
Accès sécurisé par badge
Sas d'entrée
R.I.E.
Cafétéria
Charge au sol de 500kg
Charge au sol de 1T au RDC
Charge au sol de 500kg au 1er étage
Charge au sol : RDC : 3T/m² et R+1 : 250kg/m²
Chauffage électrique : aérotherme au RDC et convecteurs au R+1.
Nombre de places de parking total : 7
Ensemble immobilier mixte
Accès piétons
R+1 : 2.90m de hauteur sous poutre
Place de stationnement : 7 en extérieur
Lot D7.3.4 :
RDC : 4m de hauteur sous poutre
R+1 : 2.90m de hauteur sous poutre
Lot E1.5 EX MGA :
Hauteur sous poutre : RDC : 5.8m et mezzanine : 2.5m
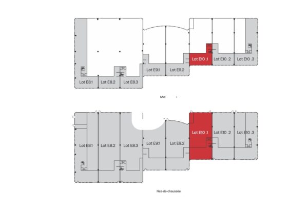
Répartition & surfaces des espaces
Tableau des divisibilités
| Type | Étage | Surface | Loyer (€/m²/an HT HC) |
Charges (€/m²/an HT HC) |
|---|---|---|---|---|
| Activités | 1 184 m² | 150.00 | 21.50 | |
| Activités | 639 m² | 156.00 | 21.50 | |
| Bureaux | 1er étage | 611 m² | 155.00 | 29.00 |
| Parkings | Sous-Sol | Prix sur demande | Prix sur demande | |
| Bureaux | 140 m² | 120.00 | 32.30 |
Performance énergétique du bien (DPE)


Informations non contractuelles
Localisation & accès
Transports en commun à proximité
Accès routier
Nationale 7
A86, A6
Adresses
approximatives
Adresses
précises
Nos nouveaux biens qui pourraient vous intéresser
GENNEVILLIERS (92230)
VILLEJUST (91140)
MEUDON (92190)
BIEVRES (91570)
Les entrepreneurs ayant consulté cette offre ont aussi consulté celles ci
MEUDON (92190)
BIEVRES (91570)
MARCOUSSIS (91460)
GENNEVILLIERS (92230)