Retour
Disponibilité Immédiate
À Acheter ou à Louer Bureaux 2 232 m² divisibles à partir de 228 m² 122 RUE DE TOURCOING ROUBAIX (59100)
Ajouter au comparateur
Vous souhaitez faciliter votre recherche ?
Créez un compte
Présentation du bien
Immprove vous propose à la location ou à la vente des surfaces de bureaux et show room dans cette ancienne usine réhabilitée. A proximité du métro station Mercure, de la Gare, des lignes de bus et de la Voie Rapide Urbaine, cet emplacement bénéficie d'un vaste parking extérieur, ainsi que la proximité de commerces et points de restauration. Les espaces sont rénovés dans un style LOFT, offrant de belles hauteurs sous plafond, un sol en béton ciré pour les parties du rez-de-chaussée, et un grand confort de travail pour vos équipes. Disponibilité immédiate.
Surface totale
Nature
Divisibilité
Etat des locaux
2 232 m²
Bureaux
Oui à partir de 228 m²
Restructuré
Prix & Conditions
Loyer :
115 € /m²/an (HT/HC)
2 185 € /mois (HT/HC)
26 220 € /an (HT/HC)
Divisibles à partir de 228 m²
Vente :
699 998 € (HD)
313.62 € /m² (HD)
Divisibles à partir de 228 m²
Impôt foncier :
12.00
Dépôt de garantie :
3 mois de loyer HT HC
Prestations & équipements du bien
Le bâtiment
Parties communes de qualité
Les espaces de travail
Fibre optique
Salle de réunion partagée . Locaux en bon état
Locaux rationnels et modulables
Plinthes périphériques techniques
Le confort au quotidien
Belle hauteur sous plafond
Sécurité du site
Site clos
Digicode
Interphone
Accessibilité
Ascenseur
Prestations spécifiques
Chauffage immeuble gaz
Autres
Possibilité de normes E.R.P.
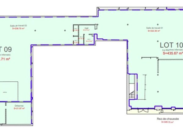
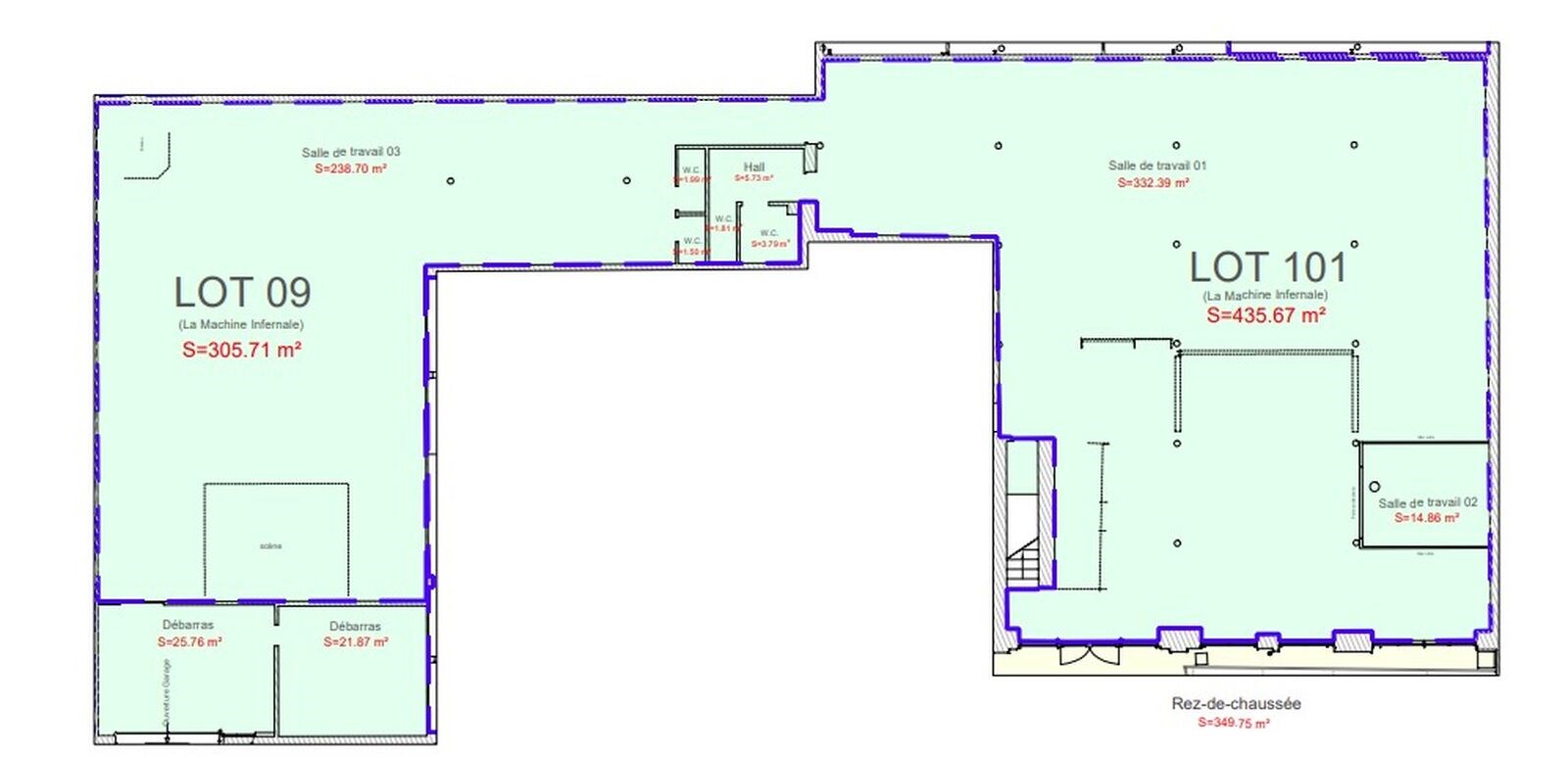
Répartition & surfaces des espaces
Tableau des divisibilités
| Type | Étage | Surface | Loyer (€/m²/an HT HC) |
Charges (€/m²/an HT HC) |
Prix achat (€/m² HT HC) |
Charges (achat) (€/m² HT HC) |
|---|---|---|---|---|---|---|
| Bureaux | Rez-de-Chaussée | 436 m² | 115.00 | 22.00 | 1 605.50 | Prix sur demande |
| Bureaux | Rez-de-Chaussée | 306 m² | 70.00 | 22.00 | 1 241.83 | Prix sur demande |
| Bureaux | 1er étage | 340 m² | 115.00 | 22.00 | 1 470.59 | Prix sur demande |
| Bureaux | 1er étage | 433 m² | 115.00 | 22.00 | 1 339.49 | Prix sur demande |
| Bureaux | 1er étage | 243 m² | 115.00 | 22.00 | 1 337.45 | Prix sur demande |
| Bureaux | 1er étage | 246 m² | 115.00 | 22.00 | 1 463.41 | Prix sur demande |
| Show Room | RDC + Mezzanine | 228 m² | 115.00 | 22.00 | 1 578.95 | Prix sur demande |
Performance énergétique du bien (DPE)


Informations non contractuelles
Localisation & accès
Transports en commun à proximité
Gare Jean Lebas à 9 minutes
En pied d'immeuble
Accès routier
Accès direct Voie Rapide
A22
Adresses
approximatives
Adresses
précises
Nos nouveaux biens qui pourraient vous intéresser
Les entrepreneurs ayant consulté cette offre ont aussi consulté celles ci
Bureaux - 6 934m² Divisibles à partir de 173 m²
LYON (69009)
LYON (69009)
Prix sur demande
Disponibilité : Selon les lots – nous consulter
Surface : divisibles à partir de 173 m²
Bureaux - 1 845m² Divisibles à partir de 285 m²
NANTES (44300)
NANTES (44300)
Prix sur demande
Disponibilité : Immédiate
Surface : divisibles à partir de 285 m²
Bureaux et Activités - 1 002m²
SAINT PATHUS (77178)
SAINT PATHUS (77178)
Prix sur demande
Disponibilité : Immédiate
Surface : 1 002 m²