Retour
Disponibilité Immédiate
À Acheter ou à Louer Bureaux 2 816.95 m² divisibles à partir de 117.63 m² ELLIPSE 377 RUE JULES GUESDE VILLENEUVE D'ASCQ (59650)
Ajouter au comparateur
Vous souhaitez faciliter votre recherche ?
Créez un compte
Présentation du bien
Immprove vous propose, dans un immeuble neuf, des bureaux à la location ou à la vente divisibles à partir de 118 m² sur les 3 premiers niveaux. Les 4ème et 5ème étages sont proposés d'un seul bloc soit 602 m² avec terrasses privatives. L'immeuble dispose de 81 emplacements de parking. Immeuble idéalement situé sur un axe très passant, disposant d'un effet vitrine, directement relié aux axes routiers importants de la métropole lilloise. Disponibilité : immédiate.
Surface totale
Nature
Divisibilité
Etat des locaux
2 816.95 m²
Bureaux
Oui à partir de 117.63 m²
Neuf
Prix & Conditions
Loyer :
175 € /m²/an (HT/HC)
1 715 € /mois (HT/HC)
20 585 € /an (HT/HC)
Divisibles à partir de 117.63 m²
Vente :
357 363 € (HD)
126.86 € /m² (HD)
Divisibles à partir de 117.63 m²
Dépôt de garantie :
3 mois de loyer HT HC
Prestations & équipements du bien
Le bâtiment
Parties communes de qualité
Les espaces de travail
Fibre optique . Espace ouvert
Locaux rationnels et modulables
Plinthes périphériques
Le confort au quotidien
Locaux traversants et lumineux
Double exposition
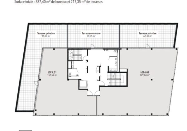
Terrasse privative 4ème et 5ème étages
Moquette
Les accès
Accès véhicules légers
Accès PMR
Accès privatif sur rue
Portail d'accès
Sécurité du site
Contrôle d'accès par badge
SAS d'entrée
Visiophone
Accessibilité
Ascenseur PMR
Autres
Faux-plafonds
Possibilité de normes E.R.P.
Répartition & surfaces des espaces
Tableau des divisibilités
| Type | Étage | Surface | Loyer (€/m²/an HT HC) |
Charges (€/m²/an HT HC) |
Prix achat (€/m² HT HC) |
Charges (achat) (€/m² HT HC) |
|---|---|---|---|---|---|---|
| Parkings | 450.00 | Prix sur demande | Prix sur demande | Prix sur demande | ||
| Bureaux | Rez-de-Chaussée | 118 m² | 175.00 | 25.00 | 3 028.50 | Prix sur demande |
| Bureaux | Rez-de-Chaussée | 119 m² | 175.00 | 25.00 | 3 026.76 | Prix sur demande |
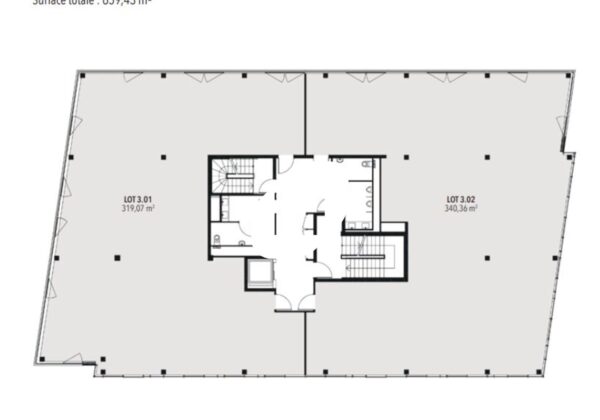
| Bureaux | 1er étage | 319 m² | 175.00 | 25.00 | 3 147.47 | Prix sur demande |
| Bureaux | 1er étage | 340 m² | 175.00 | 25.00 | 3 155.65 | Prix sur demande |
| Bureaux | 2ème étage | 319 m² | 175.00 | 25.00 | 3 247.47 | Prix sur demande |
| Bureaux | 2ème étage | 340 m² | 175.00 | 25.00 | 3 255.65 | Prix sur demande |
| Bureaux | 3ème étage | 319 m² | 175.00 | 25.00 | 3 347.47 | Prix sur demande |
| Bureaux | 3ème étage | 340 m² | 175.00 | 25.00 | 3 355.65 | Prix sur demande |
| Bureaux | 4ème étage | 158 m² | 175.00 | 25.00 | 4 385.92 | Prix sur demande |
| Bureaux | 4ème étage | 230 m² | 175.00 | 25.00 | 3 868.51 | Prix sur demande |
| Bureaux | 5ème étage | 215 m² | 175.00 | 25.00 | 4 491.22 | Prix sur demande |
Performance énergétique du bien (DPE)


Informations non contractuelles
Localisation & accès
Adresses
approximatives
Adresses
précises
Nos nouveaux biens qui pourraient vous intéresser
Bureaux - 344m² Divisibles à partir de 142 m²
VILLENEUVE D'ASCQ (59650)
VILLENEUVE D'ASCQ (59650)
Prix sur demande
Disponibilité : Immédiate
Surface : divisibles à partir de 142 m²
Les entrepreneurs ayant consulté cette offre ont aussi consulté celles ci
Bureaux - 6 934m² Divisibles à partir de 173 m²
LYON (69009)
LYON (69009)
Prix sur demande
Disponibilité : Selon les lots – nous consulter
Surface : divisibles à partir de 173 m²
Bureaux - 1 845m² Divisibles à partir de 285 m²
NANTES (44300)
NANTES (44300)
Prix sur demande
Disponibilité : Immédiate
Surface : divisibles à partir de 285 m²
Bureaux et Activités - 1 002m²
SAINT PATHUS (77178)
SAINT PATHUS (77178)
Prix sur demande
Disponibilité : Immédiate
Surface : 1 002 m²