Retour
Disponibilité En fonction des lots
À Louer Bureaux 769.10 m² divisibles à partir de 181 m² LE SWAM 101 AVENUE LE CORBUSIER LILLE (59800)
Ajouter au comparateur
Vous souhaitez faciliter votre recherche ?
Créez un compte
Présentation du bien
Immprove vous propose, à proximité immédiate des gares Lille Flandres et Lille Europe, des bureaux spacieux, idéal pour votre entreprise. Ces locaux, très lumineux, offrent une vue imprenable sur le quartier d'Euralille. Il comprend un open space fonctionnel, plusieurs bureaux cloisonnés et une cuisine. Vous bénéficierez également de places de parking. Profitez de cet emplacement stratégique pour développer votre activité. N’hésitez pas à nous contacter pour plus de détails et organiser une visite ! Disponibilité immédiate.
Surface totale
Nature
Divisibilité
Etat des locaux
769.10 m²
Bureaux
Oui à partir de 181 m²
Rénové
Prix & Conditions
Loyer :
230 € /m²/an (HT/HC)
3 469 € /mois (HT/HC)
41 630 € /an (HT/HC)
Divisibles à partir de 181 m²
Impôt foncier :
25.11
Dépôt de garantie :
3 mois de loyer TTC
Conditions location :
Loyer parking bornes électriques : 1.800 € HT/place/an
Prestations & équipements du bien
Le bâtiment
Immeuble moderne
Parties communes de qualité
Les espaces de travail
Fibre optique . Espace ouvert
Bureaux cloisonnés
Salle de réunion
Cuisine
Le confort au quotidien
Climatisation réversible
Locaux traversants et lumineux
Moquette
Les accès
Accès PMR
Sécurité du site
Site clos
Digicode - Interphone - Visiophone
Accès sécurisé par badge
Accessibilité
Ascenseur PMR
Autres
Faux-plafonds
Loyer parking bornes électriques : 1.800 € HT/place/an
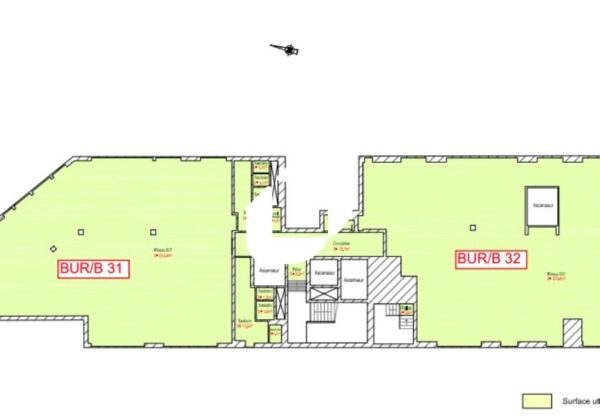
Répartition & surfaces des espaces
Tableau des divisibilités
| Type | Étage | Surface | Loyer (€/m²/an HT HC) |
Charges (€/m²/an HT HC) |
|---|---|---|---|---|
| Parkings | 1 500.00 | Prix sur demande | ||
| Bureaux | Rez-de-Chaussée | 181 m² | 230.00 | 88.06 |
| Bureaux | RdC Haut | 306 m² | 230.00 | 87.78 |
| Bureaux | 5ème étage | 282 m² | 250.00 | 88.06 |
Performance énergétique du bien (DPE)


Informations non contractuelles
Localisation & accès
Transports en commun à proximité
Gares de Lille en pied d'immeuble
Station Lille Flandres en pied d'immeuble
Arrêts en pied d'immeuble
Accès routier
Proximité accès autoroutiers
Proximité Grands Boulevards
Arrêt Lille Flandres à proximité
Adresses
approximatives
Adresses
précises
Nos nouveaux biens qui pourraient vous intéresser
Bureaux - 451m² Divisibles à partir de 224 m²
LILLE (59000)
LILLE (59000)
4 293.33€/mois HT HC
Disponibilité : 1er Mars 2026
Surface : divisibles à partir de 224 m²
Bureaux - 1 125m² Divisibles à partir de 209 m²
LILLE (59000)
LILLE (59000)
21 736.88€/mois HT HC
Disponibilité : 1er trimestre 2026
Surface : divisibles à partir de 209 m²
Bureaux - 460m² Divisibles à partir de 220 m²
LILLE (59000)
LILLE (59000)
2 999.88€/mois HT HC
Disponibilité : Immédiate
Surface : divisibles à partir de 220 m²
Les entrepreneurs ayant consulté cette offre ont aussi consulté celles ci
Bureaux - 6 934m² Divisibles à partir de 173 m²
LYON (69009)
LYON (69009)
Prix sur demande
Disponibilité : Selon les lots – nous consulter
Surface : divisibles à partir de 173 m²
Bureaux - 40m²
MAGNY LES HAMEAUX (78114)
MAGNY LES HAMEAUX (78114)
333.33€/mois HT HC
Disponibilité : Immédiate
Surface : 40 m²