Retour
Disponibilité Sous 12 mois
À Louer Bureaux 4 400.37 m² divisibles à partir de 1 429.36 m² BAT. .J-K RUE DES ORMES LESQUIN (59810)
Ajouter au comparateur
Vous souhaitez faciliter votre recherche ?
Créez un compte
Présentation du bien
Immprove vous propose à la location des bureaux avec emplacements de parking privatifs, sur l'un des plus beaux parc de la Métropole. Le site propose de nombreux services (restaurants, crèche...) et s'inscrit dans une démarche écologiquement vertueuse, avec notamment des panneaux photovoltaïques, des espaces paysagers, des cours de permaculture, recharges rapides pour véhicules électriques. L'immeuble J-K développe 4.500 m² divisibles à partir de 1.400 m². Disponibilité sous 12 mois.
Surface totale
Nature
Divisibilité
Etat des locaux
4 400.37 m²
Bureaux
Oui à partir de 1 429.36 m²
Neuf
Prix & Conditions
Loyer :
170 € /m²/an (HT/HC)
20 249 € /mois (HT/HC)
242 991 € /an (HT/HC)
Divisibles à partir de 1 429.36 m²
Dépôt de garantie :
3 mois de loyer HT HC
Prestations & équipements du bien
Le bâtiment
Immeuble moderne
Parties communes de qualité
Les espaces de travail
Fibre optique
Terrasses . Espace ouvert
Locaux rationnels et modulables
Plinthes périphériques
Le confort au quotidien
Jardin paysager
Locaux lumineux
Terrasse privative
Moquette
Les accès
Accès PMR
Sécurité du site
Digicode - Interphone
Accessibilité
Ascenseur PMR
Autres
Faux-plafonds
Possibilité de normes E.R.P.
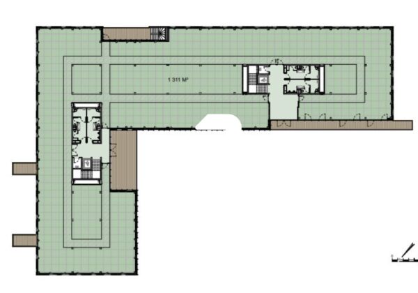
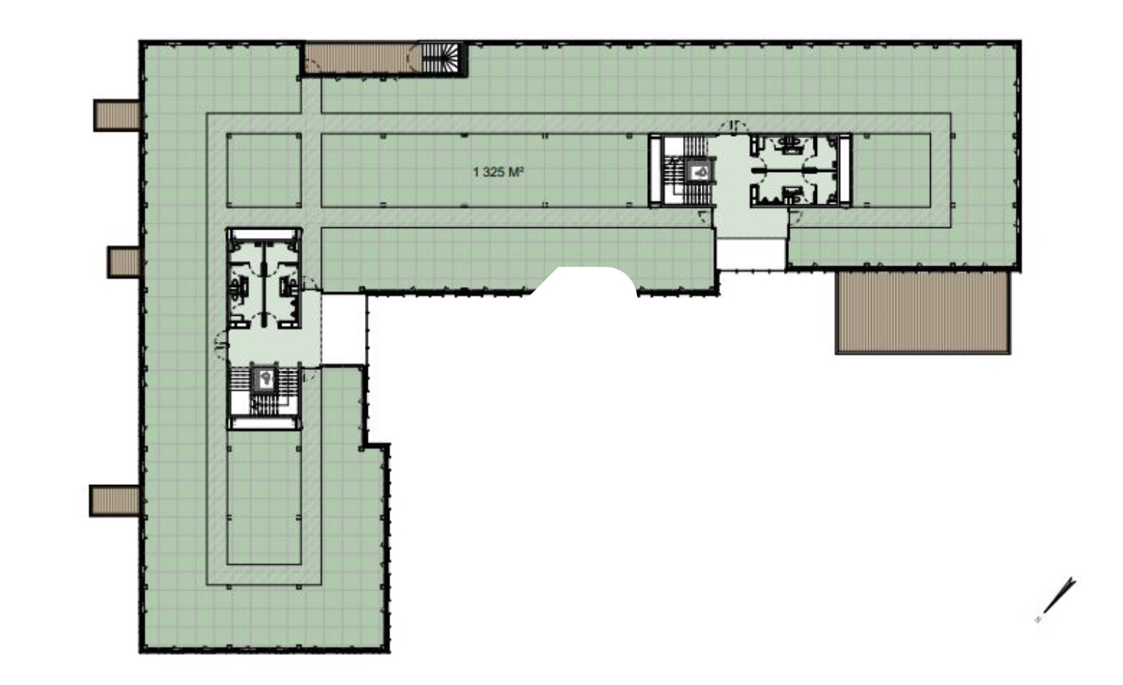
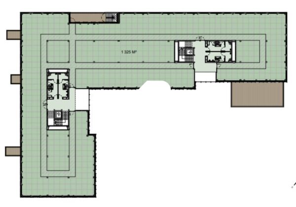
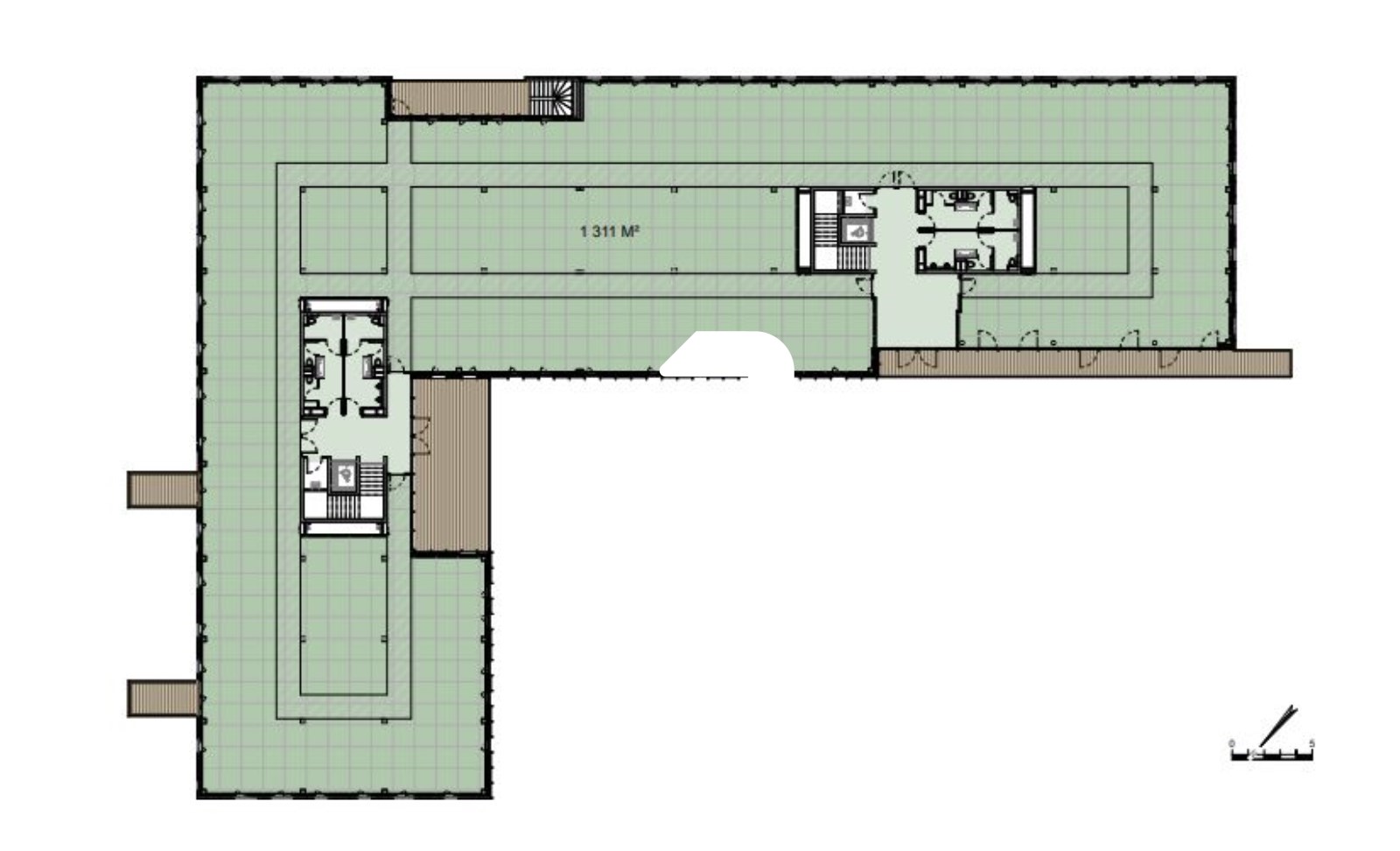
Répartition & surfaces des espaces
Tableau des divisibilités
| Type | Étage | Surface | Loyer (€/m²/an HT HC) |
Charges (€/m²/an HT HC) |
|---|---|---|---|---|
| Parkings | 350.00 | Prix sur demande | ||
| Bureaux | Rez-de-Chaussée | 1 526 m² | 170.00 | Prix sur demande |
| Bureaux | 1er étage | 1 445 m² | 170.00 | Prix sur demande |
| Bureaux | 2ème étage | 1 429 m² | 170.00 | Prix sur demande |
Performance énergétique du bien (DPE)


Informations non contractuelles
Localisation & accès
Adresses
approximatives
Adresses
précises
Nos nouveaux biens qui pourraient vous intéresser
Bureaux - 1 365m²
LESQUIN (59810)
LESQUIN (59810)
17 062.50€/mois HT HC
Disponibilité : 15 Février 2026
Surface : 1 365 m²
Les entrepreneurs ayant consulté cette offre ont aussi consulté celles ci
Bureaux - 348.02m²
BIEVRES (91570)
BIEVRES (91570)
3 480.00€/mois HT HC
Disponibilité : 1er juillet 2026
Surface : 348.02 m²
Bureaux - 288.28m²
BIEVRES (91570)
BIEVRES (91570)
2 880.00€/mois HT HC
Disponibilité : 1er juillet 2026
Surface : 288.28 m²
Bureaux et Activités - 4 645.22m² Divisibles à partir de 249.90 m²
VILLIERS SUR MARNE (94350)
VILLIERS SUR MARNE (94350)
9 870.00€/mois HT HC
Disponibilité : Immédiate
Surface : divisibles à partir de 249.90 m²
Bureaux - 447m²
MOUSSY LE NEUF (77230)
MOUSSY LE NEUF (77230)
4 097.50€/mois HT HC
Disponibilité : Immédiate
Surface : 447 m²