Retour
Disponibilité Immédiate
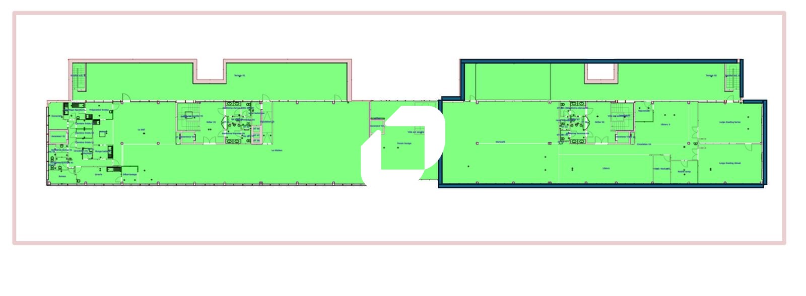
À Louer Bureaux 560.50 m² 1 ALLEE D OSLO SCHILTIGHEIM (67300)
Ajouter au comparateur
Vous souhaitez faciliter votre recherche ?
Créez un compte
Présentation du bien
IMMPROVE vous propose à la location, au cœur de l’Espace Européen de l’Entreprise à Schiltigheim, une surface de bureaux de 560 m² au sein d’un immeuble de bon standing. Ces locaux professionnels spacieux et très lumineux offrent un cadre de travail qualitatif, complété par une grande terrasse privative et des emplacements de parking. Bénéficiant d’une accessibilité optimale au pied de la ligne de bus, ils conviendront idéalement à une entreprise en quête de confort et de visibilité.
Surface totale
Nature
Divisibilité
Etat des locaux
560.50 m²
Bureaux
Non
Très bon état
Prix & Conditions
Loyer :
145 € /m²/an (HT/HC)
6 778 € /mois (HT/HC)
81 345 € /an (HT/HC)
Impôt foncier :
15.36
Dépôt de garantie :
3 mois de loyer HT HC
Prestations & équipements du bien
Les espaces de travail
Faux plafond avec luminaires encastrés
Le confort au quotidien
Climatisation réversible
Grande terrasse privative
Sol moquette
Les accès
Aire de manœuvre
Accessibilité
Ascenseur
Autres
Bureaux partiellement cloisonnés
Bureaux au 2ème étage
Espaces très lumineux
Accès plain-pied en Rez-de-chaussée
Alarme incendie
Répartition & surfaces des espaces
Tableau des divisibilités
| Type | Étage | Surface | Loyer (€/m²/an HT HC) |
Charges (€/m²/an HT HC) |
|---|---|---|---|---|
| Parkings | Prix sur demande | Prix sur demande | ||
| Bureaux | 2ème étage | 561 m² | 145.00 | 50.19 |
Performance énergétique du bien (DPE)


Informations non contractuelles
Localisation & accès
Transports en commun à proximité
70
Accès routier
A4 - Sortie 50 Espace européen de l'entreprise
Adresses
approximatives
Adresses
précises
Nos nouveaux biens qui pourraient vous intéresser
Bureaux - 865m² Divisibles à partir de 145 m²
SCHILTIGHEIM (67300)
SCHILTIGHEIM (67300)
1 691.67€/mois HT HC
Surface : divisibles à partir de 145 m²
Bureaux - 1 050m² Divisibles à partir de 71 m²
SCHILTIGHEIM (67300)
SCHILTIGHEIM (67300)
1 485.00€/mois HT HC
Disponibilité : Immédiate
Surface : divisibles à partir de 71 m²
Bureaux - 302.32m²
SCHILTIGHEIM (67300)
SCHILTIGHEIM (67300)
3 649.17€/mois HT HC
Disponibilité : Immédiate
Surface : 302.32 m²
Bureaux - 744.65m² Divisibles à partir de 141.30 m²
SCHILTIGHEIM (67300)
SCHILTIGHEIM (67300)
3 106.67€/mois HT HC
Disponibilité : Immédiate
Surface : divisibles à partir de 141.30 m²
Les entrepreneurs ayant consulté cette offre ont aussi consulté celles ci
Bureaux - 2 210m² Divisibles à partir de 403 m²
CHAMPAGNE AU MONT D'OR (69410)
CHAMPAGNE AU MONT D'OR (69410)
6 053.33€/mois HT HC
Disponibilité : Immédiate
Surface : divisibles à partir de 403 m²
Bureaux - 1 989m² Divisibles à partir de 201 m²
LYON (69009)
LYON (69009)
3 506.67€/mois HT HC
Disponibilité : Immédiate
Surface : divisibles à partir de 201 m²