Retour
Bureaux - 2 147.04m² à Acheter ou à Louer
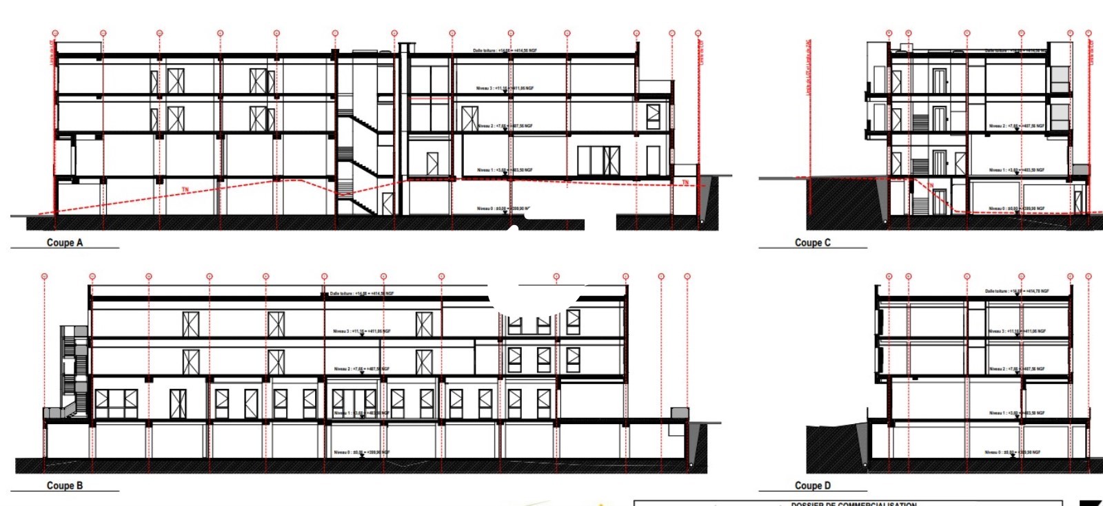
. Structure métallique par bac acier - étanchéité multicouche.
. Bardage panneaux sandwich.
. Menuiserie Alu avec rupture de pont thermique
. Dalle béton quartz pouvant recevoir un sol collé.
BUREAUX :
. Moquette en dalles au sol.
. Faux-plafond luminaires encastrés.
. Mur doublage de type placostyl, finition peinture.
. Plinthe périphérique double compartiment, avec courant fort installé et courant faible à la charge de l’acquéreur.
. Chauffage et rafraîchissement par ventilo-convecteurs réversibles, en cassettes encastrées dans les faux-plafonds, reliés à une pompe à chaleur.
. Sanitaires complets en parties communes.
. Accessibilité balcon suivant les lots
. Places de parking en commun.
Bureaux - 2 147.04m² à Acheter ou à Louer
PARC DU VIADUC - 15-19 RUE DE PARIS TARARE (69170)
DESCRIPTION
IMMPROVE vous propose à l'acquisition ou à la location de bureaux neufs au sein du prestigieux Parc du Viaduc à TARARE. Ces espaces, allant de 93 m² à 2 147 m², offrent balcons et terrasses selon les lots. Le parc, composé de six bâtiments, bénéficie d'une visibilité remarquable sur la rue de Paris et propose de nombreux stationnements communs.
En savoir plus
CONTRUCTION :. Structure métallique par bac acier - étanchéité multicouche.
. Bardage panneaux sandwich.
. Menuiserie Alu avec rupture de pont thermique
. Dalle béton quartz pouvant recevoir un sol collé.
BUREAUX :
. Moquette en dalles au sol.
. Faux-plafond luminaires encastrés.
. Mur doublage de type placostyl, finition peinture.
. Plinthe périphérique double compartiment, avec courant fort installé et courant faible à la charge de l’acquéreur.
. Chauffage et rafraîchissement par ventilo-convecteurs réversibles, en cassettes encastrées dans les faux-plafonds, reliés à une pompe à chaleur.
. Sanitaires complets en parties communes.
. Accessibilité balcon suivant les lots
. Places de parking en commun.
Consommations énergétiques


Informations non contractuelles
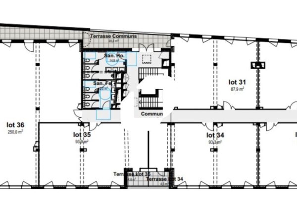
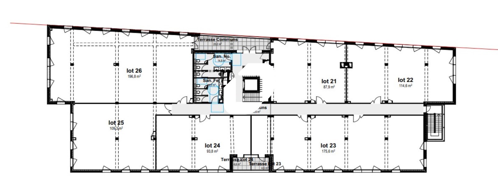
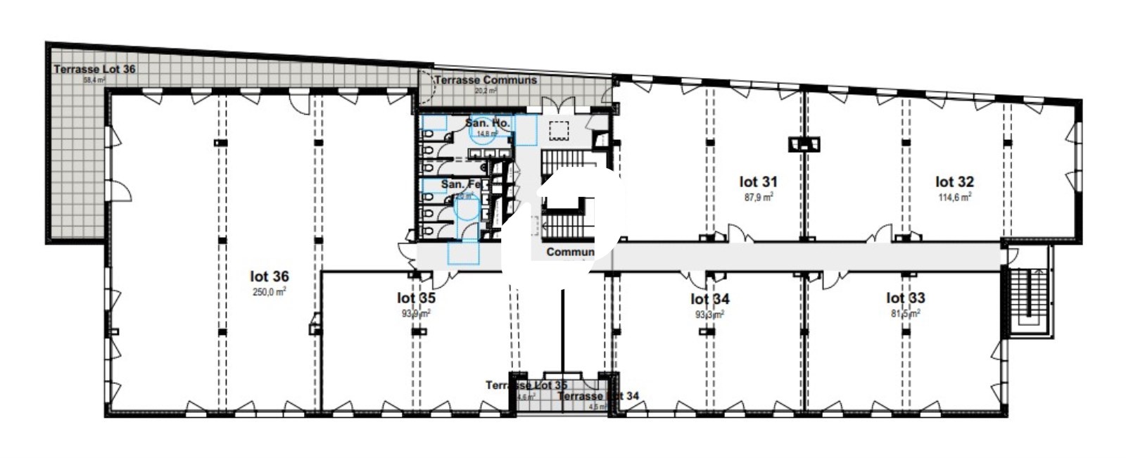
Tableau des divisibilités
| Type | Étage | Surface | Loyer (€/m²/an HT HC) |
Charges (€/m²/an HT HC) |
Prix achat (€/m² HT HC) |
Charges (achat) (€/m² HT HC) |
|---|---|---|---|---|---|---|
| Bureaux | Rez-de-Chaussée | 208 m² | 140.00 | Prix sur demande | 1 600.00 | Prix sur demande |
| Bureaux | Rez-de-Chaussée | 180 m² | 140.00 | Prix sur demande | 1 600.00 | Prix sur demande |
| Bureaux | Rez-de-Chaussée | 172 m² | 140.00 | Prix sur demande | 1 600.00 | Prix sur demande |
| Bureaux | 2ème étage | 100 m² | 140.00 | Prix sur demande | 1 900.00 | Prix sur demande |
| Bureaux | 2ème étage | 131 m² | 150.00 | Prix sur demande | 1 900.00 | Prix sur demande |
| Bureaux | 2ème étage | 201 m² | 155.00 | Prix sur demande | 1 900.00 | Prix sur demande |
| Bureaux | 2ème étage | 107 m² | 155.00 | Prix sur demande | 1 900.00 | Prix sur demande |
| Bureaux | 2ème étage | 225 m² | 150.00 | Prix sur demande | 1 950.00 | Prix sur demande |
| Bureaux | 3ème étage | 100 m² | 140.00 | Prix sur demande | 1 900.00 | Prix sur demande |
| Bureaux | 3ème étage | 131 m² | 150.00 | Prix sur demande | 2 000.00 | Prix sur demande |
| Bureaux | 3ème étage | 93 m² | 155.00 | Prix sur demande | 2 000.00 | Prix sur demande |
| Bureaux | 3ème étage | 107 m² | 155.00 | Prix sur demande | 2 000.00 | Prix sur demande |
| Bureaux | 3ème étage | 107 m² | 155.00 | Prix sur demande | 2 000.00 | Prix sur demande |
| Bureaux | 3ème étage | 286 m² | 155.00 | Prix sur demande | 1 950.00 | Prix sur demande |
Caractéristiques
- Surface 2 147.04 m²
- Etat des locaux Neuf
Adresses
approximatives
Adresses
précises
Les entrepreneurs ayant consulté cette offre ont aussi consulté celles ci
Les services Immprove
Une gamme complète de services qui facilitent vos démarches et destinée à satisfaire vos attentes