Retour
Bureaux - 3 089.13m² à Louer
Nombreux espaces arborés et paysagés
Nombreux emplacements de parking extérieurs
Local vélos - déchets triés
Label BREEAM Good / RT 2012
Site raccordé fibre optique
Bureaux : HSP 2,6 m sous plafond isolé
Eclairage LED
Climatisation double flux réversible
Centrale de traitement d'air
Brise-soleil électrique à lames orientables (BSO)
Bureaux - 3 089.13m² à Louer
VEELLAGE DE DARDILLY - 27 CHEMIN DES PEUPLIERS DARDILLY (69570)
DESCRIPTION
Dardilly, dans un parc clos et sécurisé, Immprove vous propose à la location, des bureaux idéalement aménagés pour répondre à vos besoins professionnels. Ces locaux sont accompagnés d'emplacements de stationnement, assurant ainsi praticité et accessibilité pour vous et vos collaborateurs.
En savoir plus
Restauration au cœur du parc Nombreux espaces arborés et paysagés
Nombreux emplacements de parking extérieurs
Local vélos - déchets triés
Label BREEAM Good / RT 2012
Site raccordé fibre optique
Bureaux : HSP 2,6 m sous plafond isolé
Eclairage LED
Climatisation double flux réversible
Centrale de traitement d'air
Brise-soleil électrique à lames orientables (BSO)
Consommations énergétiques


Informations non contractuelles
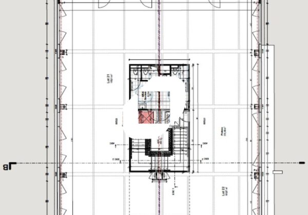
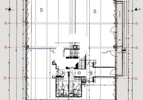
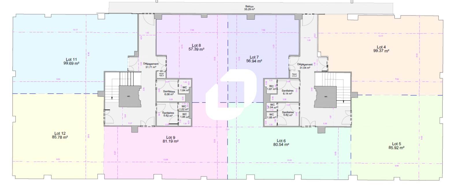
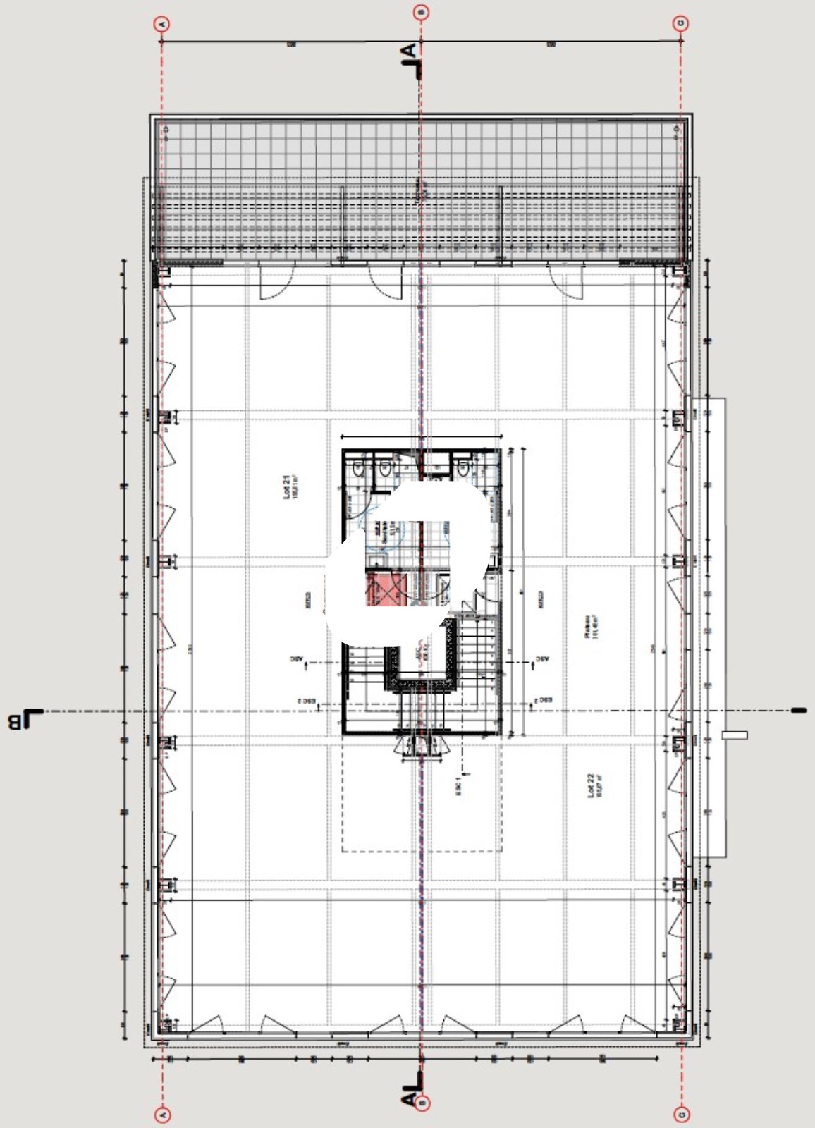
Tableau des divisibilités
| Type | Étage | Surface | Loyer (€/m²/an HT HC) |
Charges (€/m²/an HT HC) |
|---|---|---|---|---|
| Bureaux | 1er étage | 346 m² | 160.00 | 39.77 |
| Bureaux | 1er étage | 198 m² | 161.62 | 32.00 |
| Bureaux | 1er étage | 154 m² | 162.34 | 32.00 |
| Bureaux | 1er étage | 69 m² | 161.00 | 28.78 |
| Bureaux | 1er étage | 273 m² | 160.14 | Prix sur demande |
| Bureaux | 2ème étage | 273 m² | 160.23 | Prix sur demande |
| Bureaux | 1er étage | 129 m² | 159.00 | Prix sur demande |
| Bureaux | 1er étage | 130 m² | 159.00 | Prix sur demande |
| Bureaux | 1er étage | 124 m² | 159.00 | Prix sur demande |
| Bureaux | 1er étage | 118 m² | 159.00 | Prix sur demande |
| Bureaux | 2ème étage | 273 m² | 159.00 | Prix sur demande |
| Bureaux | 2ème étage | 273 m² | 160.00 | Prix sur demande |
| Bureaux | 1er étage | 149 m² | 159.59 | Prix sur demande |
| Bureaux | 1er étage | 169 m² | 159.56 | Prix sur demande |
| Bureaux | 1er étage | 206 m² | 159.98 | Prix sur demande |
| Bureaux | 1er étage | 205 m² | 160.63 | Prix sur demande |
Caractéristiques
Places de parking : 500 €/U/an HT HC
- Surface 3 089.13 m²
- Etat des locaux Neuf
Adresses
approximatives
Adresses
précises
Les entrepreneurs ayant consulté cette offre ont aussi consulté celles ci
Les services Immprove
Une gamme complète de services qui facilitent vos démarches et destinée à satisfaire vos attentes