Retour
8-9) Grands Boulevards
Disponibilité 2026 + travaux
À Louer Bureaux 4 761 m² PLACE DE LA BOURSE PARIS (75002)
Ajouter au comparateur
Vous souhaitez faciliter votre recherche ?
Créez un compte
Présentation du bien
Immprove vous propose à la location un immeuble emblématique du quartier, construit en 1930, en pierre de taille, dans un style Art Déco. Rénové en 1994 par Jean-Jacques Ory, il accueillait jusqu’à aujourd’hui le siège de l’Autorité des Marchés Financiers (AMF). Ne ratez pas cette Opportunité Exceptionnelle de Donner une Nouvelle Dimension à Votre Entreprise ! Contactez-nous dès Maintenant pour une Visite et Découvrez Votre Futur Espace de Travail !
Surface totale
Nature
Divisibilité
Etat des locaux
4 761 m²
Bureaux
Non
Neuf
Prix & Conditions
Loyer :
Prix sur demande
Prix sur demande
Prix sur demande
Dépôt de garantie :
3 mois de loyer HT HC
Prestations & équipements du bien
Les espaces de travail
Construit en 1930, rénové en 1994
Autres
Immeuble vertueux environnemental
L'ambition est d'en faire un modèle d’immeuble low-tech : sobre, réparable et robuste. Mais aussi local, économique, et socialement utile et accessible.
Pour cela, le bailleur est convaincu qu’il doit le concevoir dès le départ AVEC son futur utilisateur, en l’adaptant à ses futurs usages.
Informations techniques :
Environ 5000 m² SDP (projet)
Rooftop
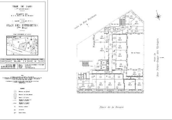
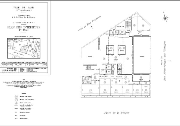
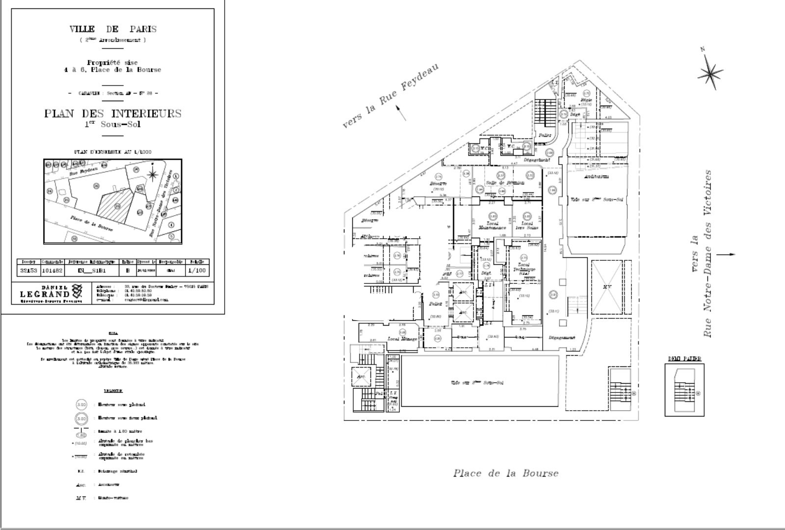
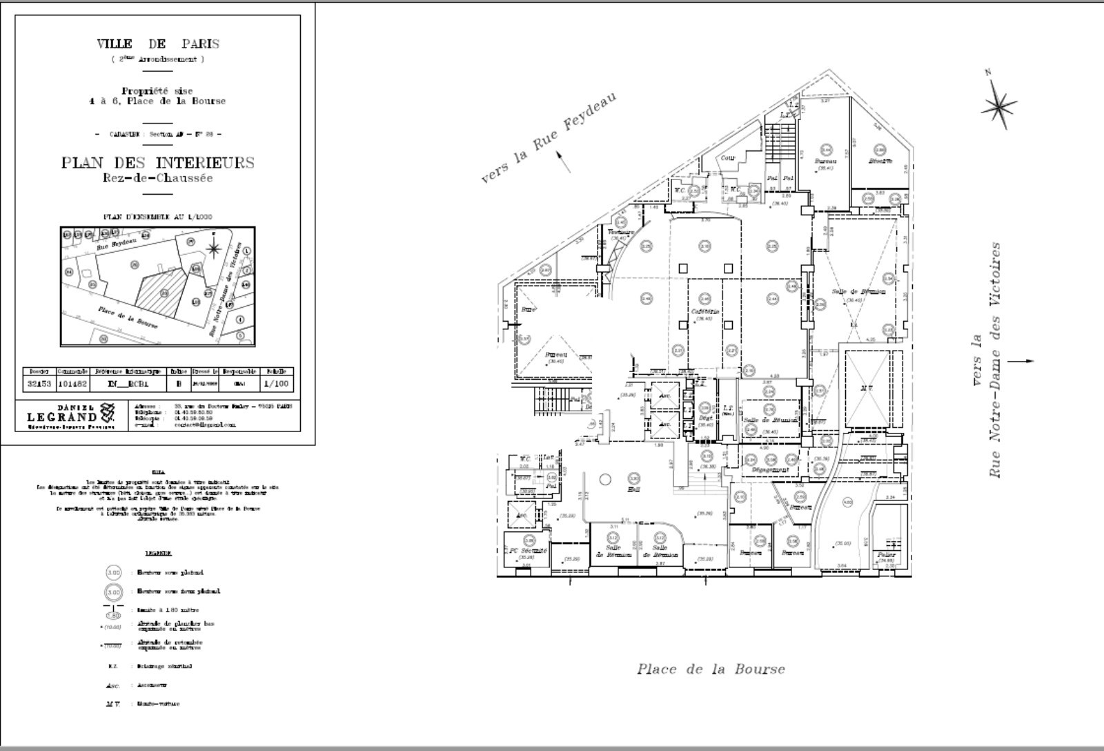
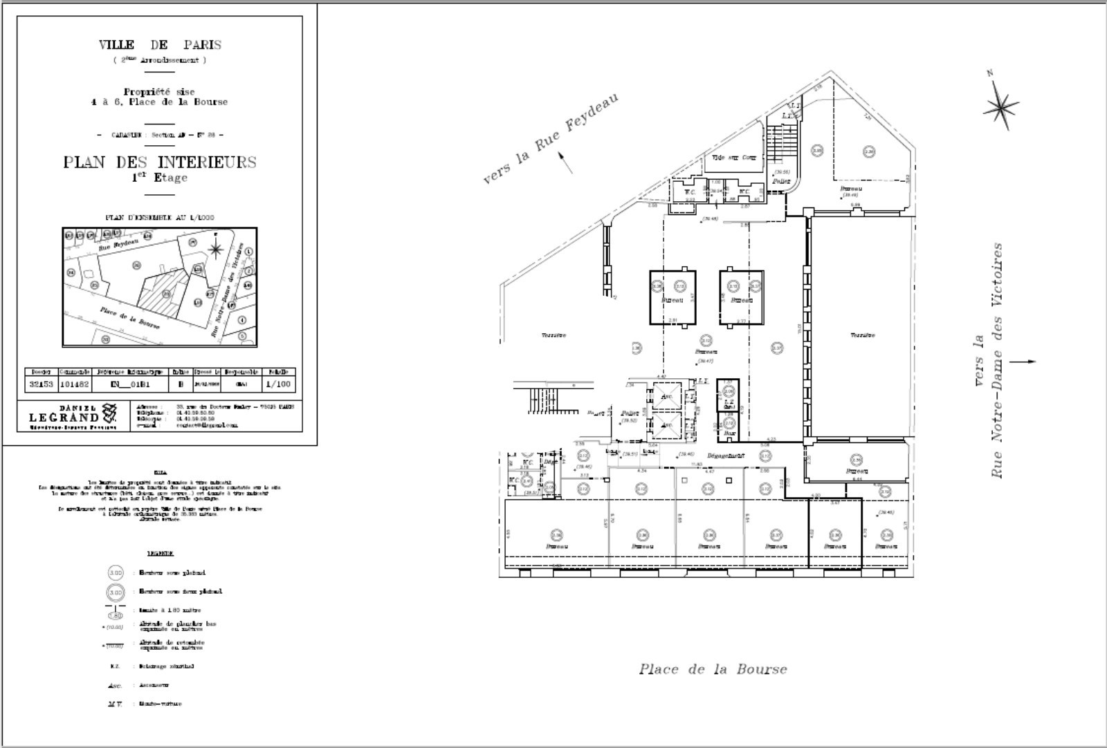
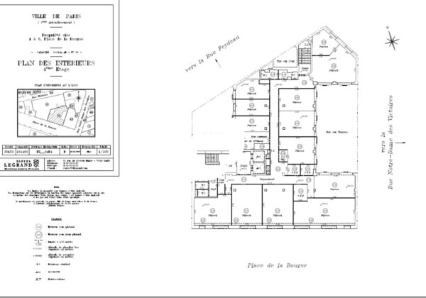
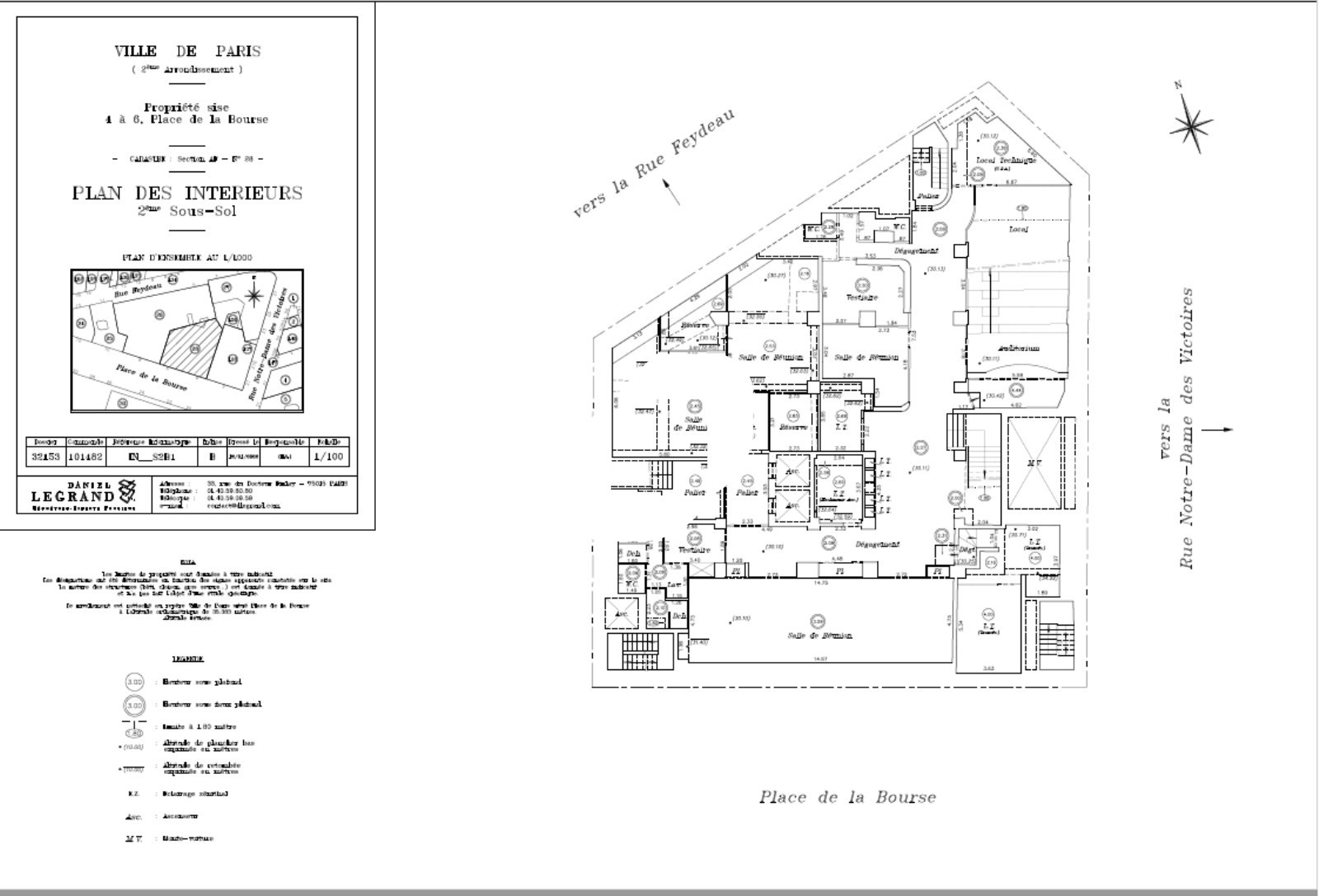
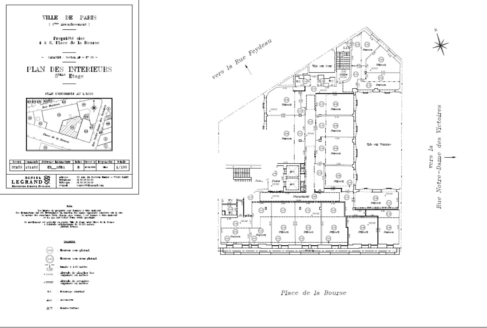
Répartition & surfaces des espaces
Tableau des divisibilités
| Type | Étage | Surface | Loyer (€/m²/an HT HC) |
Charges (€/m²/an HT HC) |
|---|---|---|---|---|
| Bureaux | R - 1 | 408 m² | Prix sur demande | Prix sur demande |
| Bureaux | R - 2 | 505 m² | Prix sur demande | Prix sur demande |
| Bureaux | RDC | 591 m² | Prix sur demande | Prix sur demande |
| Bureaux | 4ème et 5ème étages | 510 m² | Prix sur demande | Prix sur demande |
| Bureaux | 1er étage | 499 m² | Prix sur demande | Prix sur demande |
| Bureaux | 2ème étage | 509 m² | Prix sur demande | Prix sur demande |
| Bureaux | 3ème étage | 509 m² | Prix sur demande | Prix sur demande |
| Bureaux | 5ème étage | 499 m² | Prix sur demande | Prix sur demande |
| Bureaux | 6ème étage | 427 m² | Prix sur demande | Prix sur demande |
| Bureaux | 7ème étage | 304 m² | Prix sur demande | Prix sur demande |
Performance énergétique du bien (DPE)


Informations non contractuelles
Localisation & accès
Transports en commun à proximité
20
29
39
74
85
Adresses
approximatives
Adresses
précises
Nos nouveaux biens qui pourraient vous intéresser
Bureaux - 3 995m²
PARIS (75008)
PARIS (75008)
339 741.67€/mois HT HC
Disponibilité : 1er novembre 2026
Surface : 3 995 m²
Bureaux - 3 653m²
PARIS (75016)
PARIS (75016)
240 429.17€/mois HT HC
Disponibilité : 1er janvier 2028
Surface : 3 653 m²
Bureaux - 3 999m²
PARIS (75009)
PARIS (75009)
319 920.00€/mois HT HC
Disponibilité : 30 avril 2026
Surface : 3 999 m²
Bureaux - 4 756m²
PARIS (75008)
PARIS (75008)
435 966.67€/mois HT HC
Disponibilité : 1er avril 2027
Surface : 4 756 m²
Les entrepreneurs ayant consulté cette offre ont aussi consulté celles ci
Bureaux - 348.02m²
BIEVRES (91570)
BIEVRES (91570)
3 480.00€/mois HT HC
Disponibilité : 1er juillet 2026
Surface : 348.02 m²
Bureaux - 288.28m²
BIEVRES (91570)
BIEVRES (91570)
2 880.00€/mois HT HC
Disponibilité : 1er juillet 2026
Surface : 288.28 m²
Bureaux et Activités - 4 645.22m² Divisibles à partir de 249.90 m²
VILLIERS SUR MARNE (94350)
VILLIERS SUR MARNE (94350)
54 180.00€/mois HT HC
Disponibilité : Immédiate
Surface : divisibles à partir de 249.90 m²
Bureaux - 447m²
MOUSSY LE NEUF (77230)
MOUSSY LE NEUF (77230)
4 097.50€/mois HT HC
Disponibilité : Immédiate
Surface : 447 m²