Retour
Disponibilité Immédiate
À Louer Bureaux privatifs 753 m² | 126 postes divisibles à partir d'1 poste 25 RUE DU QUATRE SEPTEMBRE PARIS (75002)
Ajouter au comparateur
Vous souhaitez faciliter votre recherche ?
Créez un compte
Présentation du bien
Entre Opéra et Bourse, en plein cœur du 2e arrondissement de Paris, Immprove vous propose des surfaces de bureaux de standing (parquet/moulures/cheminées/miroirs) en prestation de services. Calmes et lumineux avec une vue, ces bureaux sont équipés et meublés. A voir absolument!
Surface totale
Nature
Divisibilité
Nombre de postes
Etat des locaux
753 m²
Bureaux
Oui à partir de 185 m²
126
Rénové
Prix & Conditions
Loyer :
1 112 € /m²/an (HT/HC)
17 143 € /mois (HT/HC)
205 720 € /an (HT/HC)
Divisibles à partir de 185 m²
Dépôt de garantie :
3 mois de loyer HT HC
Conditions location :
Le prix comprend un petit déjeuner continental tous les
vendredis matins, des fruits tous les jours, le ménage de la
tisanerie + poubelles bureaux vidées tous les jours, les
charges, la fiscalité, les fluides et les taxes.
vendredis matins, des fruits tous les jours, le ménage de la
tisanerie + poubelles bureaux vidées tous les jours, les
charges, la fiscalité, les fluides et les taxes.
Prestations & équipements du bien
Les espaces de travail
Hôtesse d’accueil 8h-19h
4 bureaux/salle de réunion
Sanitaires privatifs
Sanitaires privatifs
Sanitaires privatifs
En plus dans l'immeuble : 10€ H.T/heure une salle de réunion de 4/6 personnes. Gratuité espaces communs des bulles de travail.
Sécurité du site
Accès par badge
Accessibilité
Ascenseur
Services & espaces partagés
Restaurant et très belle terrasse pour déjeuner
Prestations spécifiques
Chauffage collectif 4ème étage :
Extérieur
Parking dans l'immeuble
Autres
2 accès : Rue du 4 Septembre et rue Monsigny
Salle de fitness avec des douches
1 phone box
Une tisanerie
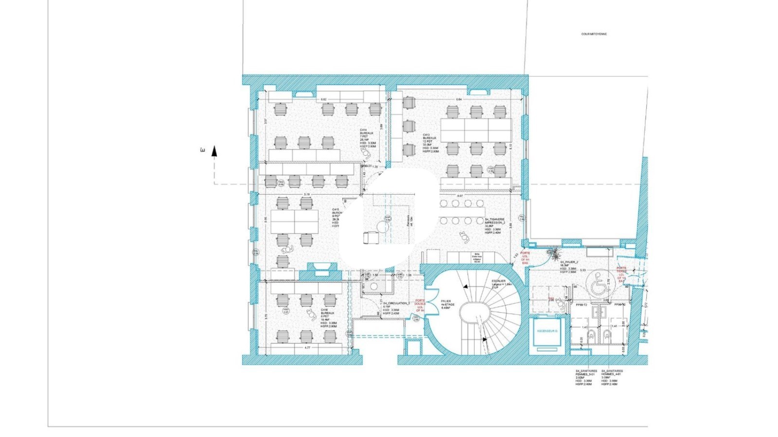
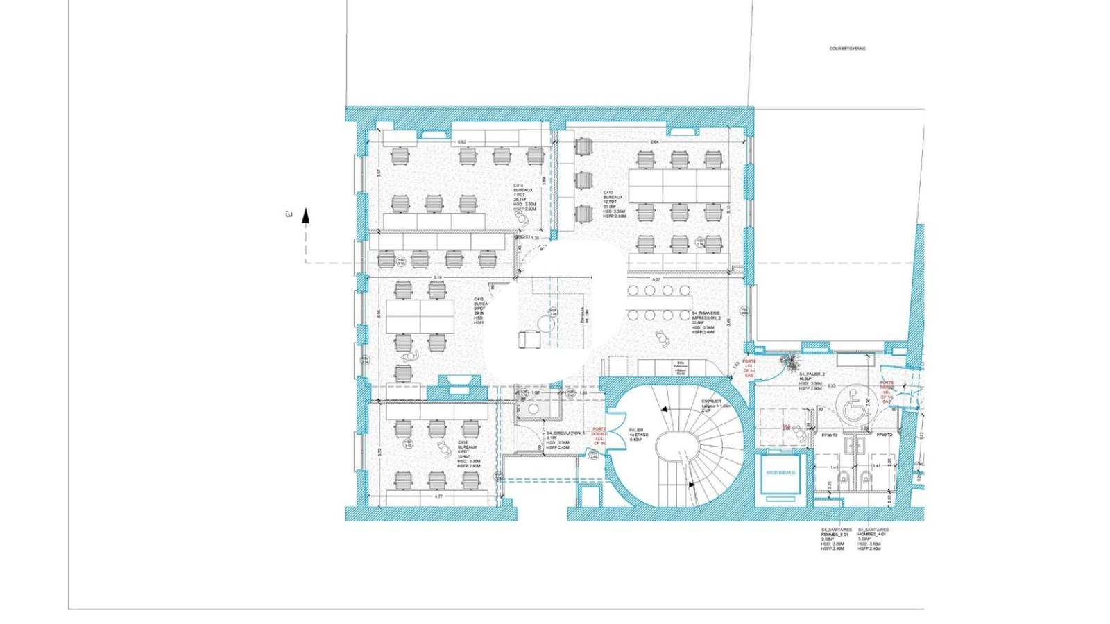
3ème étage:
6 bureaux/salles de réunion
Une tisanerie
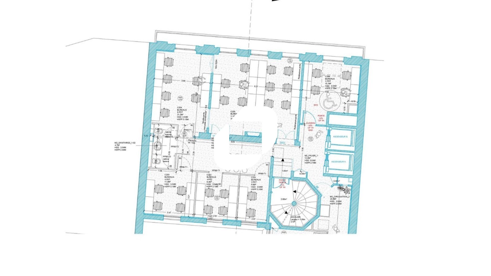
2ème étage:
6 bureaux/salles de réunion
Une phone box
Une tisanerie (réfrigérateur, machine à café, lave-vaisselle, Brita, évier, micro-ondes)
Le prix comprend un petit déjeuner continental tous les
vendredis matins, des fruits tous les jours, le ménage de la
tisanerie + poubelles bureaux vidées tous les jours, les
charges, la fiscalité, les fluides et les taxes.
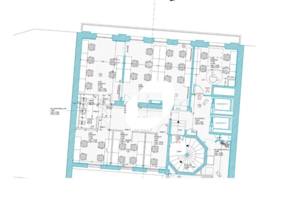
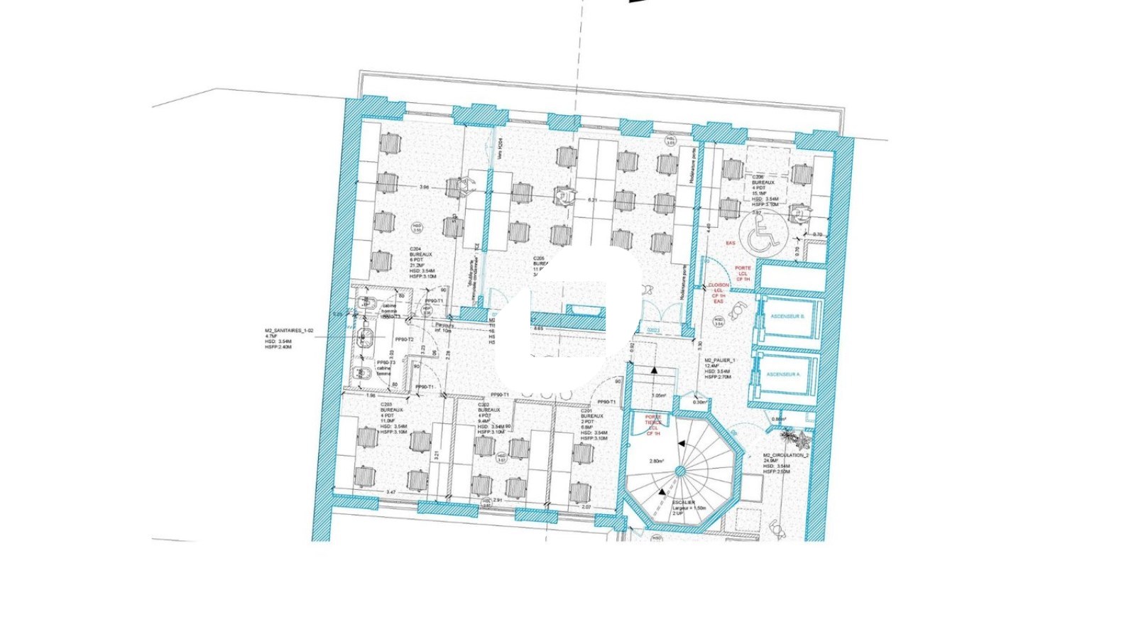
Répartition & surfaces des espaces
Tableau des divisibilités
| Type | Étage | Surface | Loyer (€/m²/an HT HC) |
Charges (€/m²/an HT HC) |
|---|---|---|---|---|
| Bureaux | 2ème étage | 185 m² | 1 112.00 | Prix sur demande |
| Bureaux | 3ème étage | 368 m² | 891.00 | Prix sur demande |
| Bureaux | 4ème étage | 200 m² | 917.00 | Prix sur demande |
Performance énergétique du bien (DPE)


Informations non contractuelles
Localisation & accès
Transports en commun à proximité
Gare Saint-Lazare
Adresses
approximatives
Adresses
précises
Nos nouveaux biens qui pourraient vous intéresser
Bureaux - 761m² Divisibles à partir de 165 m²
PARIS (75010)
PARIS (75010)
8 338.00€/mois HT HC
Disponibilité : Après accord
Surface : divisibles à partir de 165 m²
Les entrepreneurs ayant consulté cette offre ont aussi consulté celles ci
Bureaux - 348.02m²
BIEVRES (91570)
BIEVRES (91570)
3 480.00€/mois HT HC
Disponibilité : 1er juillet 2026
Surface : 348.02 m²
Bureaux - 288.28m²
BIEVRES (91570)
BIEVRES (91570)
2 880.00€/mois HT HC
Disponibilité : 1er juillet 2026
Surface : 288.28 m²
Bureaux et Activités - 4 645.22m² Divisibles à partir de 249.90 m²
VILLIERS SUR MARNE (94350)
VILLIERS SUR MARNE (94350)
54 180.00€/mois HT HC
Disponibilité : Immédiate
Surface : divisibles à partir de 249.90 m²
Bureaux - 447m²
MOUSSY LE NEUF (77230)
MOUSSY LE NEUF (77230)
4 097.50€/mois HT HC
Disponibilité : Immédiate
Surface : 447 m²