Retour
Disponibilité Immédiate
À Louer Bureaux 607 m² divisibles à partir de 292 m² 7 BIS BOULEVARD BOURDON PARIS (75004)
Ajouter au comparateur
Vous souhaitez faciliter votre recherche ?
Créez un compte
Présentation du bien
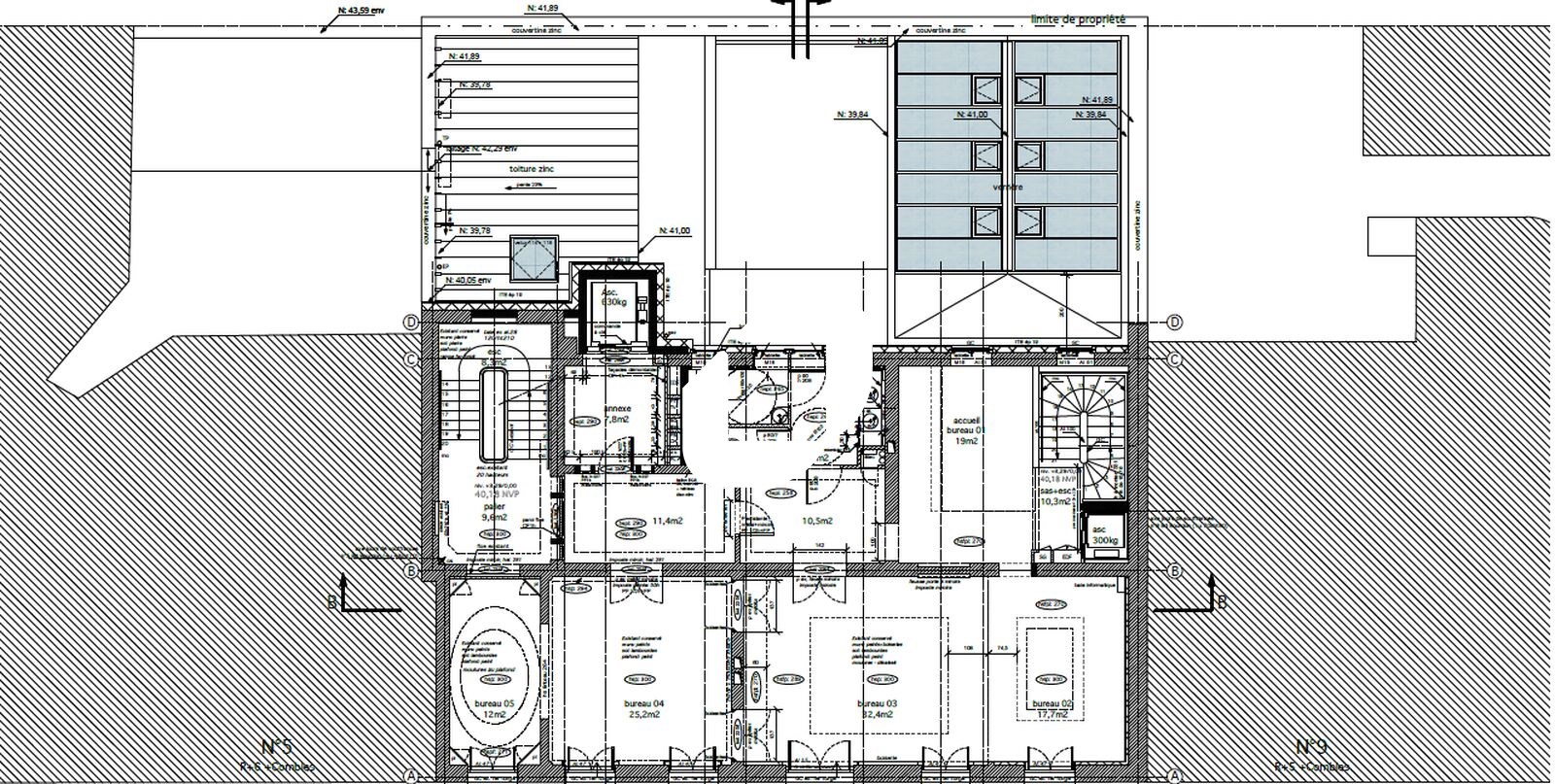
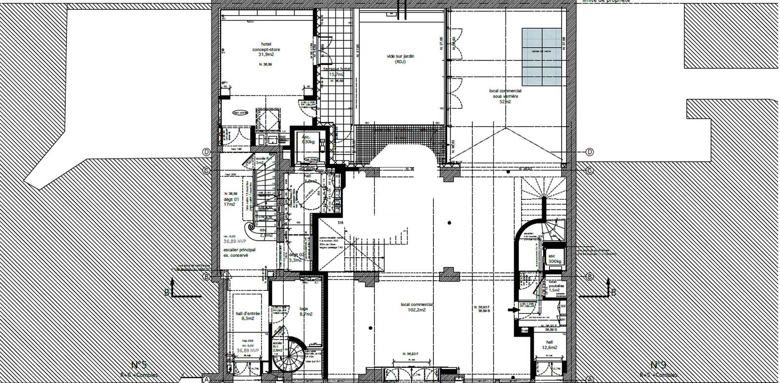
À deux pas de la Gare de Lyon et de la Bastille, Immprove propose jusqu’à 607 m² de bureaux, divisibles à partir de 292 m², au sein d’un immeuble entièrement restructuré et climatisé. Ce lieu unique conjugue le cachet industriel du rez-de-chaussée et le charme haussmannien des étages. Les surfaces, très lumineuses, bénéficient d’espaces extérieurs, d’un balcon avec vue sur la Seine et d’un accès indépendant, offrant un cadre de travail rare et qualitatif.
Surface totale
Nature
Divisibilité
Etat des locaux
607 m²
Bureaux
Oui à partir de 292 m²
Bon état
Prix & Conditions
Loyer :
500 € /m²/an (HT/HC)
12 166 € /mois (HT/HC)
146 000 € /an (HT/HC)
Divisibles à partir de 292 m²
Impôt foncier :
19.80
Taxe bureaux :
26.11
Dépôt de garantie :
3 mois de loyer HT HC
Conditions location :
Bail dérogatoire de 12 ou 18 mois
Prestations & équipements du bien
Le bâtiment
Parties communes de bon standing
Les espaces de travail
Contrôle d'accès Locaux rationnels et modulables aménagés en :
Accueil
Bureaux cloisonnés
Cuisine et sanitaires privatifs
Câblage informatique et téléphonique
Le confort au quotidien
Parquet, moulures et cheminées
Belle hauteur sous plafond
Locaux lumineux
Terrasse et balcon privatifs
Climatisation réversible
Accessibilité
Ascenseur privatif
Autres
Espaces ouverts
Salles de réunion
Les 1er et 2e étages constituent un ensemble indissociable.
Bail dérogatoire de 12 ou 18 mois
Répartition & surfaces des espaces
Tableau des divisibilités
| Type | Étage | Surface | Loyer (€/m²/an HT HC) |
Charges (€/m²/an HT HC) |
|---|---|---|---|---|
| Bureaux | 1er étage | 157 m² | 500.00 | 44.50 |
| Bureaux | 2ème étage | 158 m² | 500.00 | 44.50 |
| Bureaux | RDJ/C | 292 m² | 500.00 | 44.50 |
Performance énergétique du bien (DPE)


Informations non contractuelles
Localisation & accès
Transports en commun à proximité
Paris-Gare-De-Lyon (Gare SNCF)
Gare de Lyon (TER), Gare d'Austerlitz (TER), Paris-Bercy Bourgogne - Pays d'Auvergne (TER)
Gare de Lyon (R)
C
67
86
215
69
76
96
72
75
89
Adresses
approximatives
Adresses
précises
Nos nouveaux biens qui pourraient vous intéresser
Bureaux - 362.35m²
PARIS (75016)
PARIS (75016)
Prix sur demande
Disponibilité : 1 mois après accord
Surface : 362.35 m²
Bureaux - 253m²
PARIS (75008)
PARIS (75008)
15 812.50€/mois HT HC
Disponibilité : 1er juillet 2026
Surface : 253 m²
Les entrepreneurs ayant consulté cette offre ont aussi consulté celles ci
Bureaux - 348.02m²
BIEVRES (91570)
BIEVRES (91570)
3 480.00€/mois HT HC
Disponibilité : 1er juillet 2026
Surface : 348.02 m²
Bureaux - 288.28m²
BIEVRES (91570)
BIEVRES (91570)
2 880.00€/mois HT HC
Disponibilité : 1er juillet 2026
Surface : 288.28 m²
Bureaux et Activités - 4 645.22m² Divisibles à partir de 249.90 m²
VILLIERS SUR MARNE (94350)
VILLIERS SUR MARNE (94350)
9 870.00€/mois HT HC
Disponibilité : Immédiate
Surface : divisibles à partir de 249.90 m²
Bureaux - 447m²
MOUSSY LE NEUF (77230)
MOUSSY LE NEUF (77230)
4 097.50€/mois HT HC
Disponibilité : Immédiate
Surface : 447 m²