Retour
Disponibilité 2 T 2026
À Louer Bureaux 227 m² 7 RUE D'ARTOIS PARIS (75008)
Ajouter au comparateur
Vous souhaitez faciliter votre recherche ?
Créez un compte
Présentation du bien
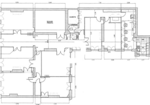
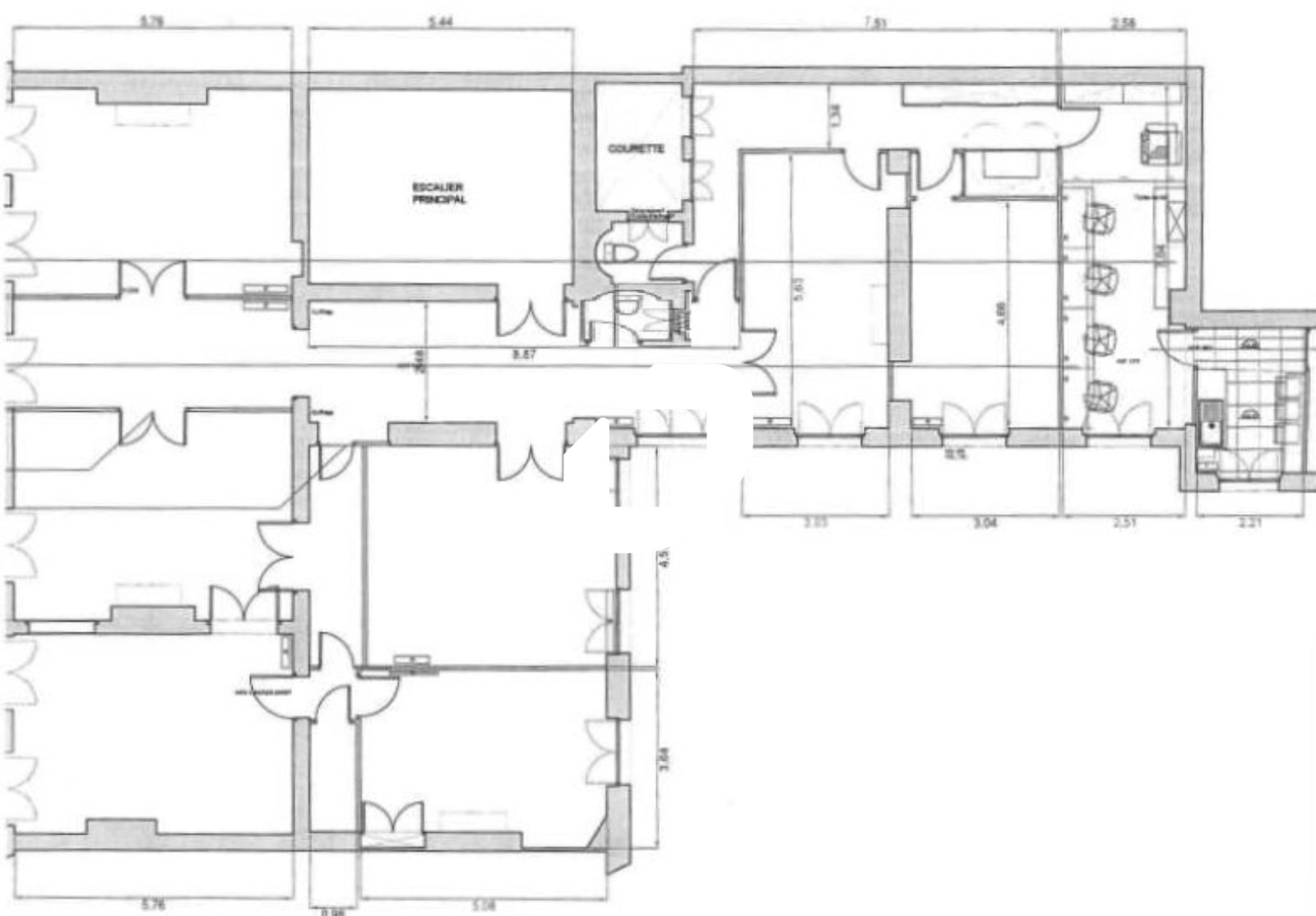
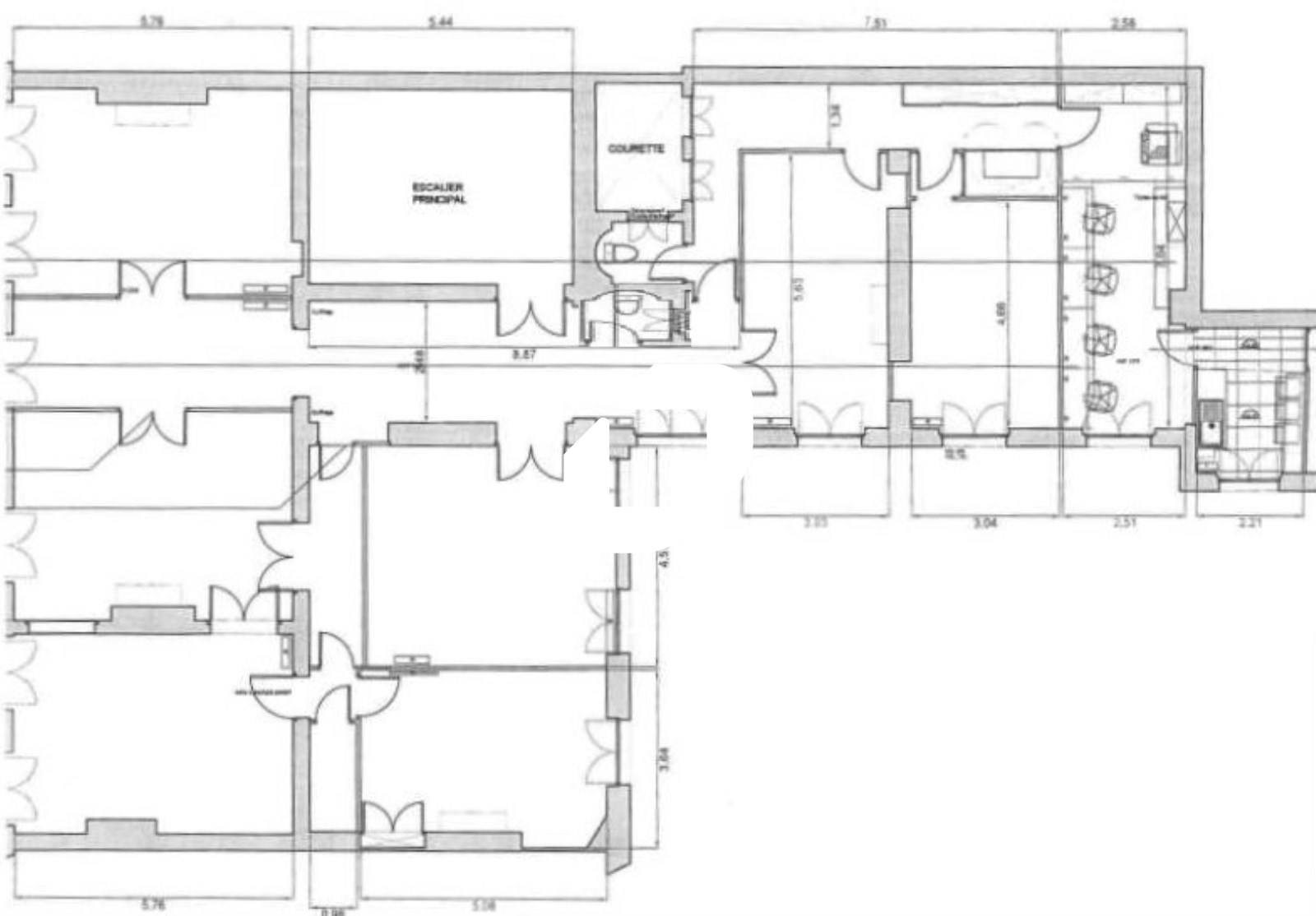
Saint-Philippe-du-Roule, rue d’Artois, Immprove vous propose à la location de beaux bureaux de 227m² environ dans un bel immeuble pierre de taille de standing. Au premier étage avec ascenseur et seul à l’étage, cet espace se compose de sept bureaux, une salle de réunion, une cuisine équipée et un espace déjeuner. Un local technique, une grande cave saine. Parquet, moulures, cheminée, double exposition, sur rue et sur cour. A proximité immédiate de tout commerces et transports.
Surface totale
Nature
Divisibilité
Etat des locaux
227 m²
Bureaux
Non
Bon état
Prix & Conditions
Loyer :
680 € /m²/an (HT/HC)
12 863 € /mois (HT/HC)
154 360 € /an (HT/HC)
Impôt foncier :
15.24
Dépôt de garantie :
3 mois de loyer HT HC
Prestations & équipements du bien
Le bâtiment
Immeuble haussmannien
Façade en pierres de taille
Parties communes de bon standing
Les espaces de travail
Fibre optique Locaux aménagés en :
Bureaux cloisonnés
Salle de réunion
Espace détente
Local technique
Cuisine
Sanitaires privatifs
Décloisonnement possible
Le confort au quotidien
Moulures et cheminées
Double exposition
Parquet
Sécurité du site
Digicode
Interphone
Visiophone
Accessibilité
Ascenseur
Prestations spécifiques
Chauffage immeuble gaz
Chauffage central
Chauffage électrique
Répartition & surfaces des espaces
Tableau des divisibilités
| Type | Étage | Surface | Loyer (€/m²/an HT HC) |
Charges (€/m²/an HT HC) |
|---|---|---|---|---|
| Bureaux | 1er étage | 227 m² | 680.00 | 24.12 |
Performance énergétique du bien (DPE)


Informations non contractuelles
Localisation & accès
Transports en commun à proximité
28
32
52
80
83
93
22
43
73
42
Accès routier
Haussmann – Courcelles (N53)
La Boétie – Champs-Élysées (N11,N24)
Rond-Point des Champs-Élysées – Franklin D. Roosevelt (N02)
Rond-Point des Champs-Élysées – Matignon (N01)
Adresses
approximatives
Adresses
précises
Nos nouveaux biens qui pourraient vous intéresser
Bureaux - 253m²
PARIS (75008)
PARIS (75008)
15 812.50€/mois HT HC
Disponibilité : 1er juillet 2026
Surface : 253 m²
Les entrepreneurs ayant consulté cette offre ont aussi consulté celles ci
Bureaux - 348.02m²
BIEVRES (91570)
BIEVRES (91570)
3 480.00€/mois HT HC
Disponibilité : 1er juillet 2026
Surface : 348.02 m²
Bureaux - 288.28m²
BIEVRES (91570)
BIEVRES (91570)
2 880.00€/mois HT HC
Disponibilité : 1er juillet 2026
Surface : 288.28 m²
Bureaux et Activités - 4 645.22m² Divisibles à partir de 249.90 m²
VILLIERS SUR MARNE (94350)
VILLIERS SUR MARNE (94350)
54 180.00€/mois HT HC
Disponibilité : Immédiate
Surface : divisibles à partir de 249.90 m²
Bureaux - 447m²
MOUSSY LE NEUF (77230)
MOUSSY LE NEUF (77230)
4 097.50€/mois HT HC
Disponibilité : Immédiate
Surface : 447 m²