Retour
Disponibilité Immédiate
À Louer Bureaux privatifs 287 m² | 33 postes divisibles à partir d'1 poste BOULEVARD HAUSSMANN PARIS (75008)
Ajouter au comparateur
Vous souhaitez faciliter votre recherche ?
Créez un compte
Présentation du bien
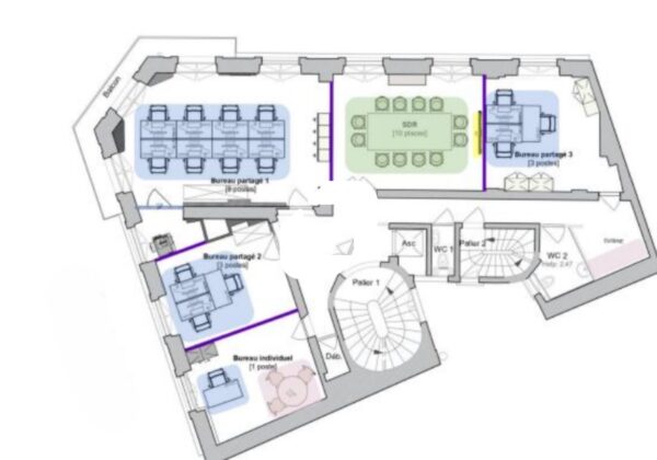
Immprove vous propose à la location une surface en prestation de services solution Deskeo. Plateaux privatifs entièrement rénovés au 2ème et 3ème étage pouvant accueillir jusqu’à 17 postes de travail chacun tout équipés, profités d’un environnement prime à proximité de la place de la madeleine.
Surface totale
Nature
Divisibilité
Nombre de postes
Etat des locaux
287 m²
Bureaux
Oui à partir de 142 m²
33
Rénové
Prix & Conditions
Loyer :
850 € /m²/an (HT/HC)
10 058 € /mois (HT/HC)
120 699 € /an (HT/HC)
Divisibles à partir de 142 m²
Dépôt de garantie :
3 mois de loyer HT HC
Conditions location :
Le loyer est une somme forfaitaire incluant toutes les charges et la fiscalité
Prestations & équipements du bien
Le bâtiment
Immeuble haussmannien
Les espaces de travail
Bureaux cloisonnés
Salle de réunion
Espace détente
Cuisine
Sanitaires privatifs
Local technique
Fibre optique
Câblage informatique et téléphonique
Accessibilité
Ascenseur
Services & espaces partagés
Cafétéria
Autres
Locaux climatisés
Locaux modulables
Parties communes de très bon standing
Le loyer est une somme forfaitaire incluant toutes les charges et la fiscalité
Répartition & surfaces des espaces
Tableau des divisibilités
| Type | Étage | Surface | Loyer (€/m²/an HT HC) |
Charges (€/m²/an HT HC) |
|---|---|---|---|---|
| Bureaux | 2ème étage | 142 m² | 850.00 | Prix sur demande |
| Bureaux | 3ème étage | 145 m² | 800.00 | Prix sur demande |
Performance énergétique du bien (DPE)


Informations non contractuelles
Localisation & accès
Transports en commun à proximité
Adresses
approximatives
Adresses
précises
Nos nouveaux biens qui pourraient vous intéresser
Bureaux - 761m² Divisibles à partir de 165 m²
PARIS (75010)
PARIS (75010)
8 338.00€/mois HT HC
Disponibilité : Après accord
Surface : divisibles à partir de 165 m²
Les entrepreneurs ayant consulté cette offre ont aussi consulté celles ci
Bureaux - 348.02m²
BIEVRES (91570)
BIEVRES (91570)
3 480.00€/mois HT HC
Disponibilité : 1er juillet 2026
Surface : 348.02 m²
Bureaux - 288.28m²
BIEVRES (91570)
BIEVRES (91570)
2 880.00€/mois HT HC
Disponibilité : 1er juillet 2026
Surface : 288.28 m²
Bureaux et Activités - 4 645.22m² Divisibles à partir de 249.90 m²
VILLIERS SUR MARNE (94350)
VILLIERS SUR MARNE (94350)
54 180.00€/mois HT HC
Disponibilité : Immédiate
Surface : divisibles à partir de 249.90 m²
Bureaux - 447m²
MOUSSY LE NEUF (77230)
MOUSSY LE NEUF (77230)
4 097.50€/mois HT HC
Disponibilité : Immédiate
Surface : 447 m²