Retour
Disponibilité Après accord
À Louer Bureaux privatifs 301 m² | 44 postes divisibles à partir d'1 poste RUE DE SURENE PARIS (75008)
Ajouter au comparateur
Vous souhaitez faciliter votre recherche ?
Créez un compte
Prix & Conditions
Loyer :
717 € /m²/an (HT/HC)
8 962 € /mois (HT/HC)
107 550 € /an (HT/HC)
Divisibles à partir de 150 m²
Dépôt de garantie :
3 mois de loyer HT HC
Conditions location :
Le loyer est une somme forfaitaire incluant toutes les charges et la fiscalité
Prestations & équipements du bien
Les espaces de travail
Bureaux cloisonnés
Espace détente
Cuisine et sanitaires privatifs
Le confort au quotidien
Ascenseur Locaux lumineux aménagés en:
Sécurité du site
Contrôle d'accès
Autres
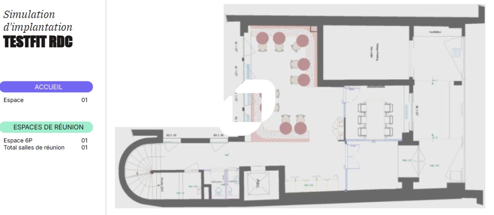
Acceuil
Espaces ouverts
Salles de réunions
Phonebooth
Le loyer inclue la connexion Wifi, le ménage, une fontaine à eau..;.
Le loyer est une somme forfaitaire incluant toutes les charges et la fiscalité
Répartition & surfaces des espaces
Tableau des divisibilités
| Type | Étage | Surface | Loyer (€/m²/an HT HC) |
Charges (€/m²/an HT HC) |
|---|---|---|---|---|
| Bureaux | 1er étage | 150 m² | 717.00 | Prix sur demande |
| Bureaux | 3ème étage | 151 m² | 865.00 | Prix sur demande |
Performance énergétique du bien (DPE)


Informations non contractuelles
Localisation & accès
Transports en commun à proximité
Auber, Haussmann Saint-Lazare, Gare Saint-Lazare (TRAIN-L, TRAIN-SNCF, TRAIN-J)
80
32
28
20
93
N02
21
26
27
66
29
95
N16
N15
N153
N52
N51
22
43
N53
45
42
94
72
73
N11
N24
68
52
84
N151
N150
N152
N154
87
Adresses
approximatives
Adresses
précises
Nos nouveaux biens qui pourraient vous intéresser
Bureaux - 761m² Divisibles à partir de 165 m²
PARIS (75010)
PARIS (75010)
8 338.00€/mois HT HC
Disponibilité : Après accord
Surface : divisibles à partir de 165 m²
Les entrepreneurs ayant consulté cette offre ont aussi consulté celles ci
Bureaux - 348.02m²
BIEVRES (91570)
BIEVRES (91570)
3 480.00€/mois HT HC
Disponibilité : 1er juillet 2026
Surface : 348.02 m²
Bureaux - 288.28m²
BIEVRES (91570)
BIEVRES (91570)
2 880.00€/mois HT HC
Disponibilité : 1er juillet 2026
Surface : 288.28 m²
Bureaux et Activités - 4 645.22m² Divisibles à partir de 249.90 m²
VILLIERS SUR MARNE (94350)
VILLIERS SUR MARNE (94350)
54 180.00€/mois HT HC
Disponibilité : Immédiate
Surface : divisibles à partir de 249.90 m²
Bureaux - 447m²
MOUSSY LE NEUF (77230)
MOUSSY LE NEUF (77230)
4 097.50€/mois HT HC
Disponibilité : Immédiate
Surface : 447 m²