Retour
Disponibilité Décembre 2026
À Louer Bureaux 3 070 m² PARIS (75008)
Ajouter au comparateur
Vous souhaitez faciliter votre recherche ?
Créez un compte
Présentation du bien
Proche du Parc monceau, Immprove vous propose des bureaux à louer en dérogatoire. Ces espaces offrent une solution idéale pour les entreprises recherchant une flexibilité maximale dans un cadre prestigieux.
Surface totale
Nature
Divisibilité
Etat des locaux
3 070 m²
Bureaux
Non
Bon état
Prix & Conditions
Loyer :
550 € /m²/an (HT/HC)
26 445 € /mois (HT/HC)
317 350 € /an (HT/HC)
Impôt foncier :
28.80
Taxe bureaux :
22.27
TEOM :
12
Dépôt de garantie :
3 mois de loyer HT HC
Conditions location :
Bail dérogatoire maximum 30 mois
Prestations & équipements du bien
Le bâtiment
Immeuble récent
Façade mur rideau
Parties communes de qualité
Les espaces de travail
Climatisation . Travaux à prévoir
Bureaux cloisonnés
Faux plafonds
Cloisonnement amovible
Le confort au quotidien
Moquette
Les accès
Accès véhicules légers
Accès privatif sur rue
Sécurité du site
Contrôle d'accès
Gardiennage
Digicode
Interphone
Système de télésurveillance
Accessibilité
Ascenseur
Extérieur
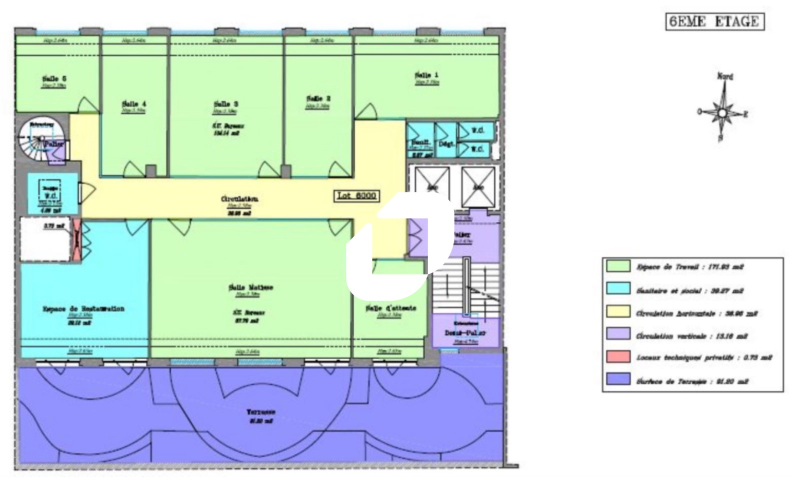
Une terrasse arborée privative au 5ème étage
Terrasse plantée au 6eme étage de 91m²
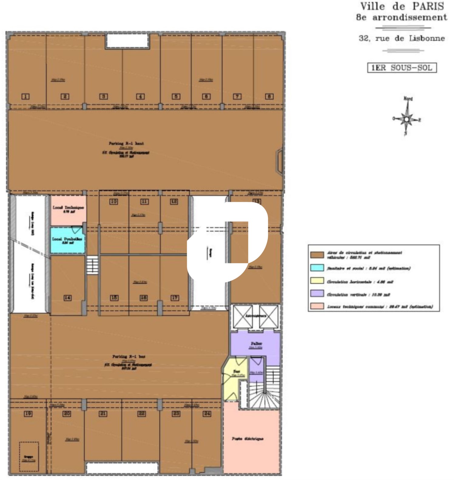
Parking 32 U
Loyer Parking : 2 00€/U/an HT HC
Autres
Alarme
Un patio au rdc privatif
Une partie activité/ stockage léger au RDC
Hall double hauteur
Bail dérogatoire maximum 30 mois
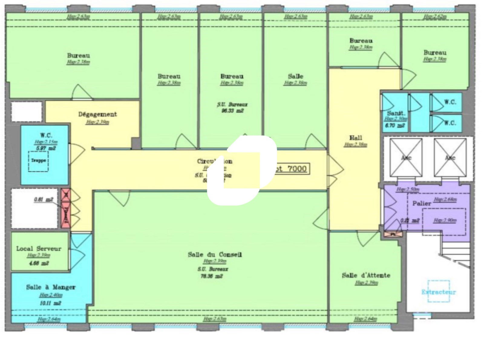
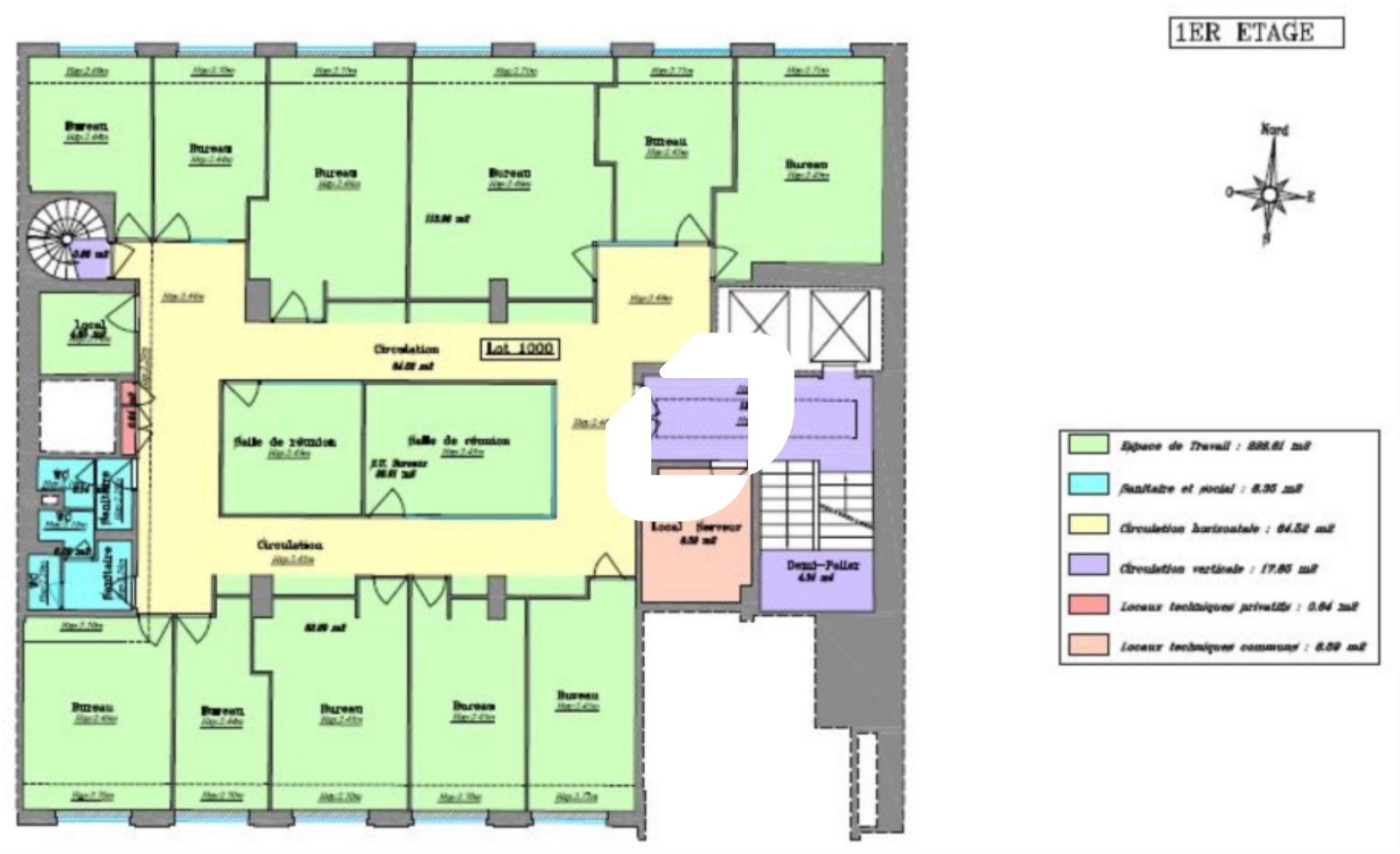
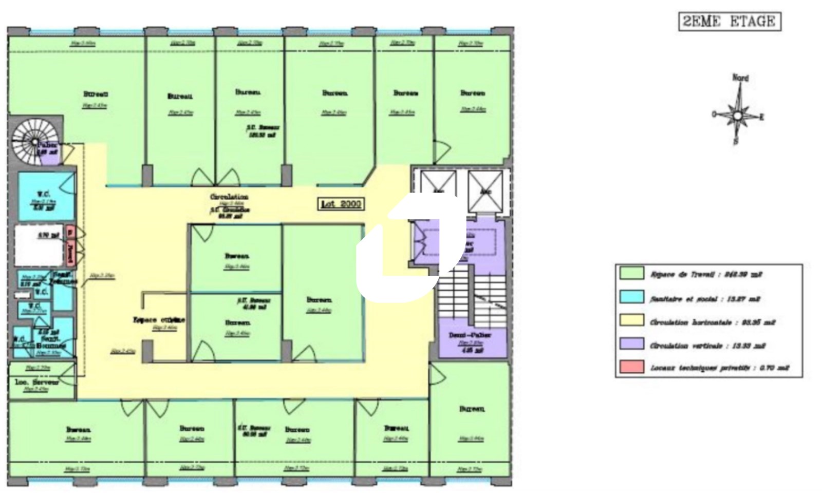
Répartition & surfaces des espaces
Tableau des divisibilités
| Type | Étage | Surface | Loyer (€/m²/an HT HC) |
Charges (€/m²/an HT HC) |
|---|---|---|---|---|
| Bureaux | Rez-de-Chaussée | 577 m² | 550.00 | 55.65 |
| Bureaux | 4ème et 5ème étages | 397 m² | 630.00 | Prix sur demande |
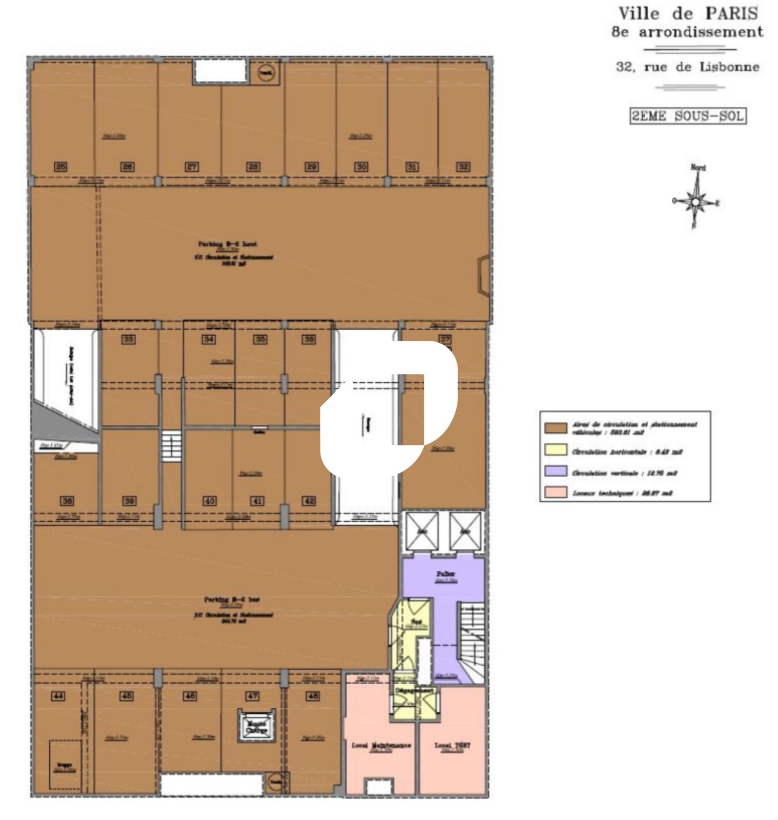
| Archives | R - 3 | 165 m² | 300.00 | 55.65 |
| Bureaux | 1er étage | 341 m² | 341.00 | 55.65 |
| Bureaux | 2ème étage | 395 m² | 610.00 | 55.65 |
| Bureaux | 3ème étage | 396 m² | 620.00 | 55.65 |
| Bureaux | 5ème étage | 395 m² | 650.00 | 55.65 |
| Bureaux | 6ème étage | 283 m² | 700.00 | 55.65 |
| Bureaux | 7ème étage | 286 m² | 650.00 | 55.65 |
Performance énergétique du bien (DPE)


Informations non contractuelles
Localisation & accès
Transports en commun à proximité
Adresses
approximatives
Adresses
précises
Nos nouveaux biens qui pourraient vous intéresser
Bureaux - 3 124.43m²
PARIS (75009)
PARIS (75009)
240 715.00€/mois HT HC
Disponibilité : 30 septembre 2026
Surface : 3 124.43 m²
Bureaux - 2 373.10m²
PARIS (75009)
PARIS (75009)
129 640.00€/mois HT HC
Disponibilité : Immédiate
Surface : 2 373.10 m²
Bureaux - 3 424.97m²
PARIS (75002)
PARIS (75002)
Prix sur demande
Disponibilité : 1er juillet 2026
Surface : 3 424.97 m²
Les entrepreneurs ayant consulté cette offre ont aussi consulté celles ci
Bureaux - 330.50m²
PARIS (75013)
PARIS (75013)
10 642.50€/mois HT HC
Disponibilité : Immédiate
Surface : 330.50 m²