Retour
Bureaux - 1 277m² à Louer
. Immeuble classé Code du travail à l’exception des espaces du RdC et du RdP classés en E.R.P
. Conservation des façades sur rues de 1928 pour le respect de son identité architecturale
. Double adresse / entrée :
39-41 rue Washington
3-5 avenue de Friedland
. Accès indépendant
. Accès sécurisé
. Accès PMR
. PC sécurité 7j / 7 - 24h / 24
. Local vélos en sous sol . Surface lumineuse et rationnelle
. Surface entièrement rénovée
. Climatisation réversible
. Configuration efficace : Open space / salles de réunions / bureaux fermés / cuisine
. Les charges inclus : sécurité, maintenance, nettoyage des parties communes, déchets, climatisation, fluide hors électricité et coûts de gestion
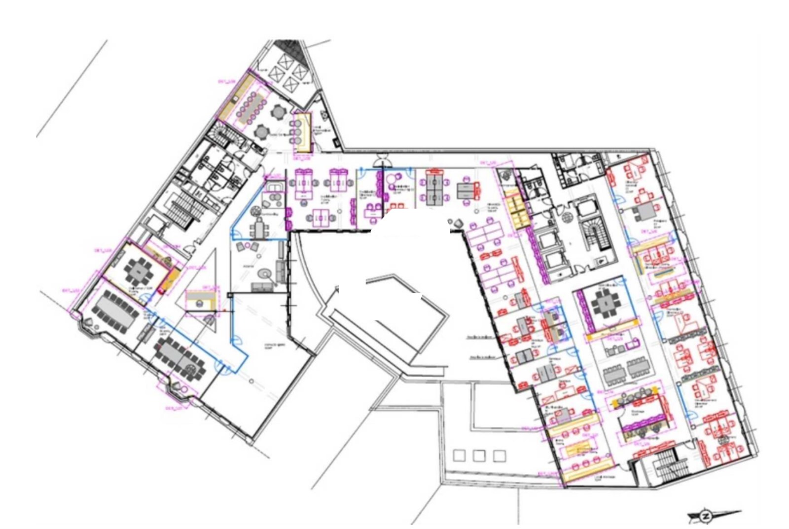
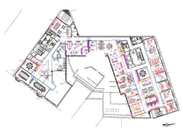
. Capacitaire : 117 collaborateurs
. Archives (100 m²) : 400 €/m²/an HT HC
. Parkings (20U) : 3 500 €/U/an HT HC
Bureaux - 1 277m² à Louer
3-5 AVENUE DE FRIEDLAND PARIS (75008)
DESCRIPTION
IMMPROVE vous propose à la location, un plateau lumineux et rationnel, d'un seul tenant et entièrement aménagé, au sein d'un immeuble de standing situé en plein cœur du Quartier Central des Affaires.
En savoir plus
. Immeuble lourdement restructuré et livré en 2015. Immeuble classé Code du travail à l’exception des espaces du RdC et du RdP classés en E.R.P
. Conservation des façades sur rues de 1928 pour le respect de son identité architecturale
. Double adresse / entrée :
39-41 rue Washington
3-5 avenue de Friedland
. Accès indépendant
. Accès sécurisé
. Accès PMR
. PC sécurité 7j / 7 - 24h / 24
. Local vélos en sous sol . Surface lumineuse et rationnelle
. Surface entièrement rénovée
. Climatisation réversible
. Configuration efficace : Open space / salles de réunions / bureaux fermés / cuisine
. Les charges inclus : sécurité, maintenance, nettoyage des parties communes, déchets, climatisation, fluide hors électricité et coûts de gestion
. Capacitaire : 117 collaborateurs
. Archives (100 m²) : 400 €/m²/an HT HC
. Parkings (20U) : 3 500 €/U/an HT HC
Consommations énergétiques


Informations non contractuelles
Tableau des divisibilités
| Type | Étage | Surface | Loyer (€/m²/an HT HC) |
Charges (€/m²/an HT HC) |
|---|---|---|---|---|
| Bureaux | 1er étage | 1 277 m² | 850.00 | 81.00 |
Caractéristiques
- Surface 1 277 m²
- Etat des locaux Rénové
Adresses
approximatives
Adresses
précises
Nos nouveaux biens qui pourraient vous intéresser
Bureaux - 3 170m² Divisibles à partir de 1 500 m²
à Louer
PARIS (75009)
Voir le bien
Prix sur demande
Bureaux - 2 517m² Divisibles à partir de 1 088 m²
à Louer
PARIS (75009)
Voir le bien
113 129.17€/mois HT HC
Les entrepreneurs ayant consulté cette offre ont aussi consulté celles ci
Les services Immprove
Une gamme complète de services qui facilitent vos démarches et destinée à satisfaire vos attentes