Retour
Disponibilité 1er février 2026
À Louer Bureaux 794 m² 12 RUE DE FLORENCE PARIS (75008)
Ajouter au comparateur
Vous souhaitez faciliter votre recherche ?
Créez un compte
Présentation du bien
Immprove vous propose à la location un hôtel particulier de 795 m², situé à proximité de la gare Saint-Lazare. Il sera livré rénové en février 2026 .
Le bâtiment offre une bonne luminosité, de belles hauteurs sous plafond et une climatisation réversible.
Au rez-de-chaussée, une cafétéria ouvrira sur une cour intérieure privative.
Surface totale
Nature
Divisibilité
Etat des locaux
794 m²
Bureaux
Non
Rénové
Prix & Conditions
Loyer :
800 € /m²/an (HT/HC)
47 133 € /mois (HT/HC)
565 600 € /an (HT/HC)
Taxe bureaux :
26.11
Dépôt de garantie :
3 mois de loyer HT HC
Conditions location :
. Loyer Plug&Play (€/an): 735 000 euros
Prestations & équipements du bien
Le bâtiment
Hôtel particulier restructuré en R+5
Les espaces de travail
Accueil avec accès PMR
Bureaux cloisonnés
Câblage informatique et téléphonique
Sanitaires privatifs
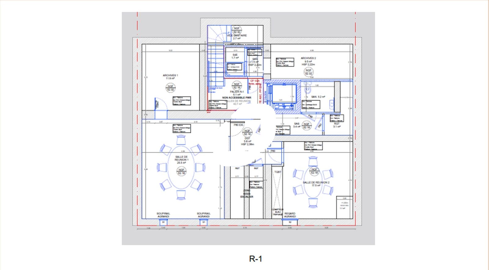
Salle de réunion, archives et douche au R-1
Le confort au quotidien
Cour privative
Belle hauteur sous plafond
Locaux traversants et lumineux
Lino type Parquet
Parquet ancien à certains endroits
Climatisation réversible
Les accès
Accès PMR
Accessibilité
Ascenseur privatif et PMR
Services & espaces partagés
Cafétéria
Autres
Locaux aménagés en :
Espaces ouverts
Salles de réunion
. Loyer Plug&Play (€/an): 735 000 euros
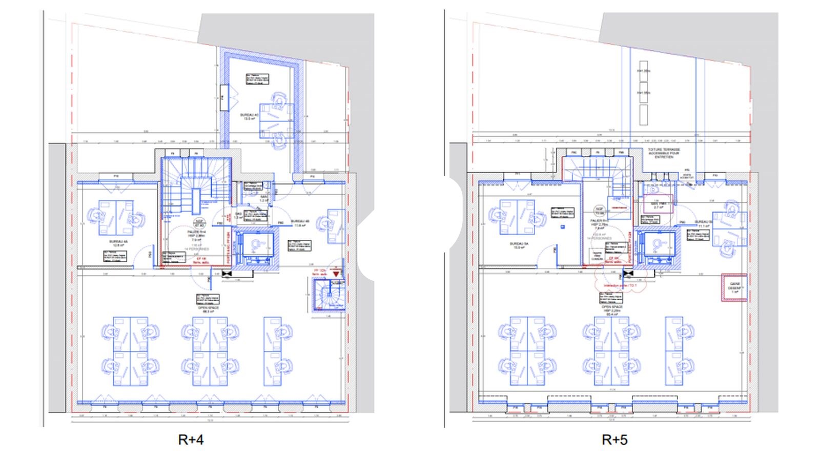
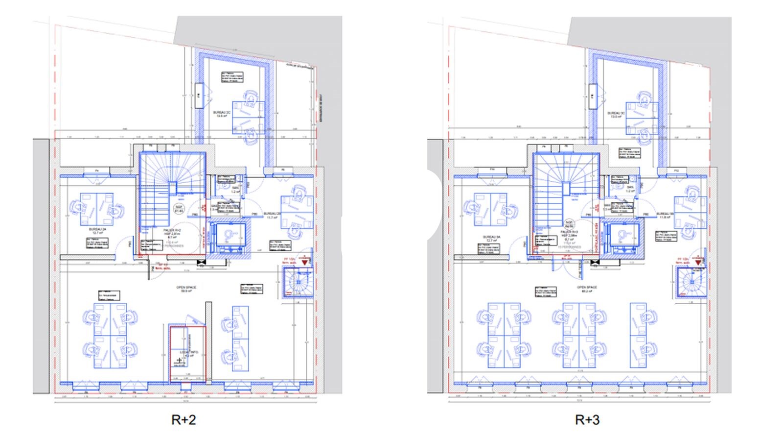
Répartition & surfaces des espaces
Tableau des divisibilités
| Type | Étage | Surface | Loyer (€/m²/an HT HC) |
Charges (€/m²/an HT HC) |
|---|---|---|---|---|
| Autres | 1er Sous-Sol | 87 m² | Prix sur demande | Prix sur demande |
| Bureaux | Rez-de-Chaussée | 150 m² | 800.00 | Prix sur demande |
| Bureaux | 1er étage | 112 m² | 800.00 | Prix sur demande |
| Bureaux | 2ème étage | 114 m² | 800.00 | Prix sur demande |
| Bureaux | 3ème étage | 115 m² | 800.00 | Prix sur demande |
| Bureaux | 4ème étage | 115 m² | 800.00 | Prix sur demande |
| Bureaux | 5ème étage | 101 m² | 800.00 | Prix sur demande |
Performance énergétique du bien (DPE)


Informations non contractuelles
Localisation & accès
Transports en commun à proximité
Paris-St-Lazare (Gare SNCF)
SNCF gare de Paris Saint-Lazare (TER)
Gare Saint-Lazare (J, L)
31
163
52
84
28
94
43
93
40
30
66
BATIGNO
Accès routier
A 86 (Entrée), A 86 (Sortie)
Adresses
approximatives
Adresses
précises
Nos nouveaux biens qui pourraient vous intéresser
Bureaux - 630m²
PARIS (75002)
PARIS (75002)
39 375.00€/mois HT HC
Disponibilité : 1er septembre 2026
Surface : 630 m²
Bureaux - 4 316m² Divisibles à partir de 709 m²
PARIS (75019)
PARIS (75019)
61 666.67€/mois HT HC
Disponibilité : 1er septembre 2026
Surface : divisibles à partir de 709 m²
Les entrepreneurs ayant consulté cette offre ont aussi consulté celles ci
Bureaux - 348.02m²
BIEVRES (91570)
BIEVRES (91570)
3 480.00€/mois HT HC
Disponibilité : 1er juillet 2026
Surface : 348.02 m²
Bureaux - 288.28m²
BIEVRES (91570)
BIEVRES (91570)
2 880.00€/mois HT HC
Disponibilité : 1er juillet 2026
Surface : 288.28 m²
Bureaux et Activités - 4 645.22m² Divisibles à partir de 249.90 m²
VILLIERS SUR MARNE (94350)
VILLIERS SUR MARNE (94350)
54 180.00€/mois HT HC
Disponibilité : Immédiate
Surface : divisibles à partir de 249.90 m²
Bureaux - 447m²
MOUSSY LE NEUF (77230)
MOUSSY LE NEUF (77230)
4 097.50€/mois HT HC
Disponibilité : Immédiate
Surface : 447 m²