Retour
Disponibilité Immédiate
À Louer Bureaux 247 m² MONCEY 3 RUE MONCEY PARIS (75009)
Ajouter au comparateur
Vous souhaitez faciliter votre recherche ?
Créez un compte
Présentation du bien
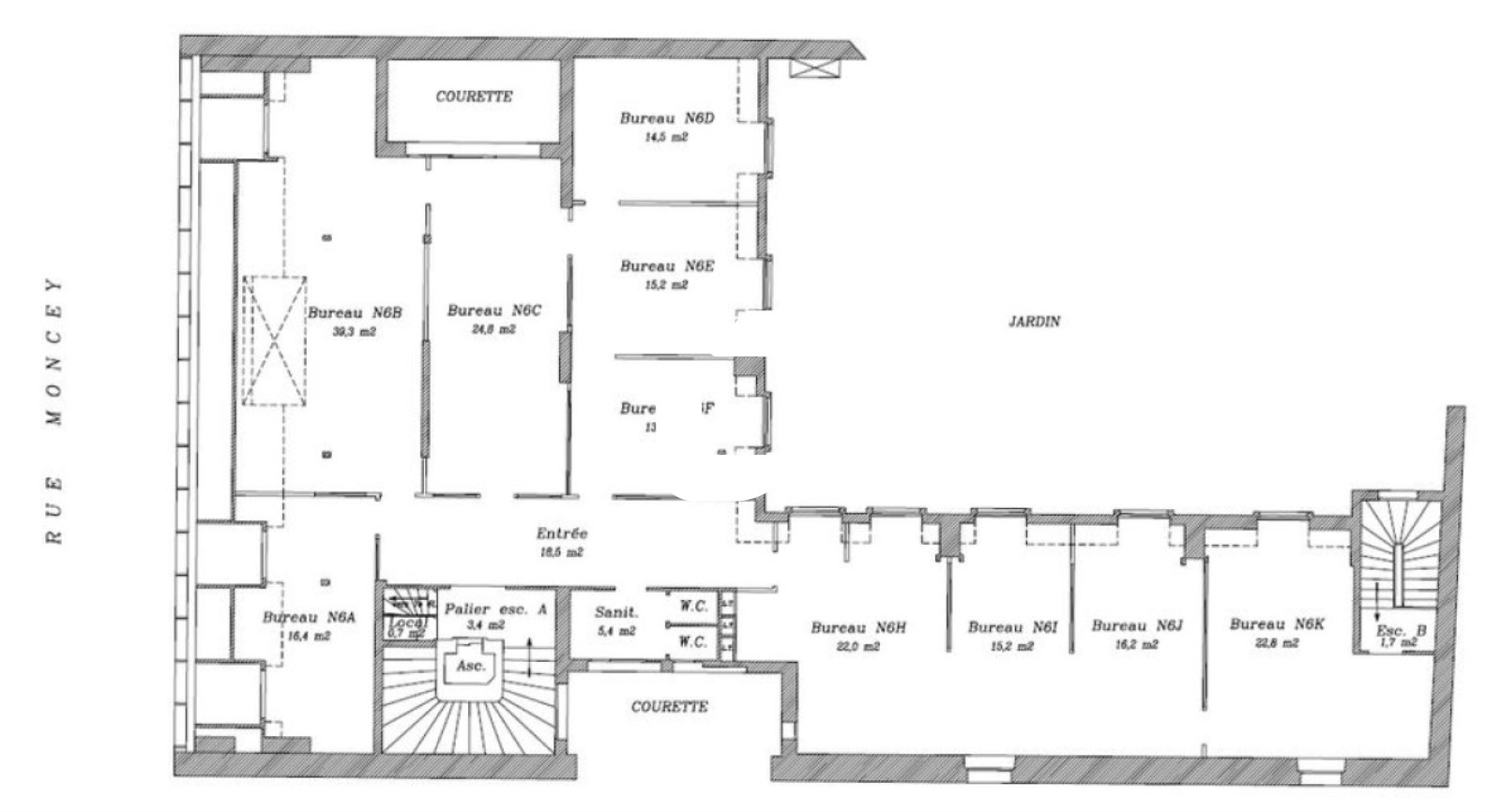
Dans le quartier Saint-Georges du 9ème arrondissement, Immprove vous propose une surface de bureaux d'environ 247 m² à la location, climatisée et rénovée au 1er février 2025, en étage élevé sans vis-à-vis et avec une vue dégagée comptant 7 bureaux, un espace ouvert et une cafétaria. Cloisonnement de qualité. Possibilité d’aménagement. Parking disponible dans l’immeuble en sus.
Surface totale
Nature
Divisibilité
Etat des locaux
247 m²
Bureaux
Non
Rénové
Prix & Conditions
Loyer :
600 € /m²/an (HT/HC)
12 350 € /mois (HT/HC)
148 200 € /an (HT/HC)
Impôt foncier :
13.00
Taxe bureaux :
26.11
Dépôt de garantie :
3 mois de loyer HT HC
Conditions location :
Sous-location de longue durée (30 juin 2030)
Prestations & équipements du bien
Les espaces de travail
Fibre optique
Locaux lumineux livrés rénovés (peinture, moquette)
Un espace ouvert
Faux plafonds
Câblage informatique et téléphonique
Le confort au quotidien
Climatisation réversible
Climatisation
Belle hauteur sous plafond
Moquette
Sécurité du site
Digicode
Interphone
Accès sécurisé par badge
Accessibilité
2 places de parking accessible par l’ascenseur en sus
Prestations spécifiques
Chauffage collectif
Autres
Immeuble de bon standing
7 bureaux
Une belle et grande cafétaria centrale équipée
Cloisonnement de qualité
2 sanitaires
Sous-location de longue durée (30 juin 2030)
Répartition & surfaces des espaces
Tableau des divisibilités
| Type | Étage | Surface | Loyer (€/m²/an HT HC) |
Charges (€/m²/an HT HC) |
|---|---|---|---|---|
| Bureaux | 6ème étage | 247 m² | 600.00 | 48.00 |
Performance énergétique du bien (DPE)


Informations non contractuelles
Localisation & accès
Transports en commun à proximité
Gare Saint-Lazare
74
95
21
N02
68
Adresses
approximatives
Adresses
précises
Nos nouveaux biens qui pourraient vous intéresser
Bureaux - 253m²
PARIS (75008)
PARIS (75008)
15 812.50€/mois HT HC
Disponibilité : 1er juillet 2026
Surface : 253 m²
Les entrepreneurs ayant consulté cette offre ont aussi consulté celles ci
Bureaux - 348.02m²
BIEVRES (91570)
BIEVRES (91570)
3 480.00€/mois HT HC
Disponibilité : 1er juillet 2026
Surface : 348.02 m²
Bureaux - 288.28m²
BIEVRES (91570)
BIEVRES (91570)
2 880.00€/mois HT HC
Disponibilité : 1er juillet 2026
Surface : 288.28 m²
Bureaux et Activités - 4 645.22m² Divisibles à partir de 249.90 m²
VILLIERS SUR MARNE (94350)
VILLIERS SUR MARNE (94350)
54 180.00€/mois HT HC
Disponibilité : Immédiate
Surface : divisibles à partir de 249.90 m²
Bureaux - 447m²
MOUSSY LE NEUF (77230)
MOUSSY LE NEUF (77230)
4 097.50€/mois HT HC
Disponibilité : Immédiate
Surface : 447 m²