Retour
Disponibilité Immédiate
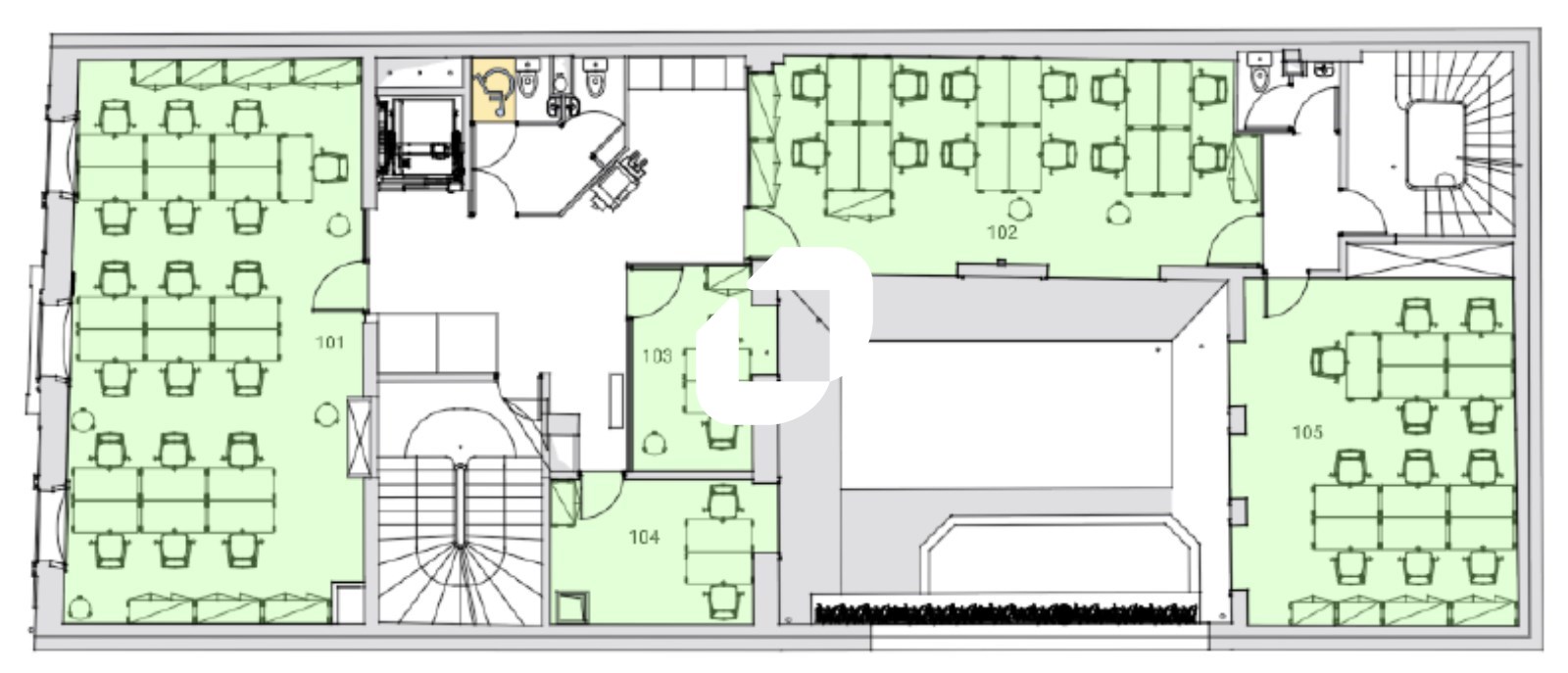
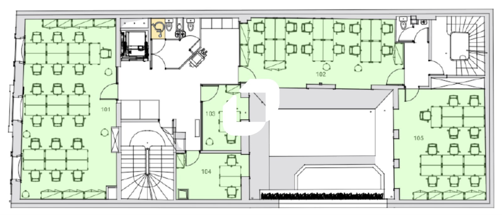
À Louer Bureaux privatifs 242 m² | 44 postes 18 RUE DE CALAIS PARIS (75009)
Ajouter au comparateur
Vous souhaitez faciliter votre recherche ?
Créez un compte
Présentation du bien
Dans un très bel hôtel particulier rénové inspiré des théâtres emblématiques du 9ème, Immprove vous propose un plateau de bureaux privatif avec une terrasse privative arborée bien exposée. L’immeuble vous propose de belles prestations telles qu’une restauration sous une magnifique verrière, des tisaneries équipées, une autre terrasse accessible, une salle de repos, des douches, des phone box et espaces reproduction ainsi qu’un parking voitures & local vélos.
Surface totale
Nature
Divisibilité
Nombre de postes
Etat des locaux
242 m²
Bureaux
Non
44
Rénové
Prix & Conditions
Loyer :
668 € /m²/an (HT/HC)
13 471 € /mois (HT/HC)
161 656 € /an (HT/HC)
Dépôt de garantie :
3 mois de loyer HT HC
Conditions location :
Le loyer comprend charges, foncier, taxe, bureaux, mobilier, équipements, électricité, climatisation, chauffage, ménage et services.
Prestations & équipements du bien
Le bâtiment
Hôtel particulier
Les espaces de travail
Parties communes rénovées
Fibre optique
Locaux rationnels et modulables aménagés en :
Accueil
Espace ouvert
Bureaux cloisonnés
Espace détente
Cuisine
Sanitaires privatifs
Le confort au quotidien
Belle hauteur sous plafond
Sécurité du site
Site sécurisé 24h/24h
Digicode
Accès sécurisé par badge
Sas d'entrée
Accessibilité
Ascenseur desservant directement les locaux
Extérieur
2 terrasses
Autres
Cafétaria
Salles de réunions
Le loyer comprend charges, foncier, taxe, bureaux, mobilier, équipements, électricité, climatisation, chauffage, ménage et services.
Répartition & surfaces des espaces
Tableau des divisibilités
| Type | Étage | Surface | Loyer (€/m²/an HT HC) |
Charges (€/m²/an HT HC) |
|---|---|---|---|---|
| Bureaux | 2ème étage | 242 m² | 668.00 | Prix sur demande |
Performance énergétique du bien (DPE)


Informations non contractuelles
Localisation & accès
Transports en commun à proximité
SNCF gare de Paris Saint-Lazare (L, P), Haussmann Saint-Lazare (J)
30
54
80
95
68
74
81
Adresses
approximatives
Adresses
précises
Nos nouveaux biens qui pourraient vous intéresser
Bureaux - 253m²
PARIS (75008)
PARIS (75008)
15 812.50€/mois HT HC
Disponibilité : 1er juillet 2026
Surface : 253 m²
Les entrepreneurs ayant consulté cette offre ont aussi consulté celles ci
Bureaux - 348.02m²
BIEVRES (91570)
BIEVRES (91570)
3 480.00€/mois HT HC
Disponibilité : 1er juillet 2026
Surface : 348.02 m²
Bureaux - 288.28m²
BIEVRES (91570)
BIEVRES (91570)
2 880.00€/mois HT HC
Disponibilité : 1er juillet 2026
Surface : 288.28 m²
Bureaux et Activités - 4 645.22m² Divisibles à partir de 249.90 m²
VILLIERS SUR MARNE (94350)
VILLIERS SUR MARNE (94350)
54 180.00€/mois HT HC
Disponibilité : Immédiate
Surface : divisibles à partir de 249.90 m²
Bureaux - 447m²
MOUSSY LE NEUF (77230)
MOUSSY LE NEUF (77230)
4 097.50€/mois HT HC
Disponibilité : Immédiate
Surface : 447 m²