Retour
Disponibilité Immédiate
À Louer Bureaux 774 m² divisibles à partir de 191 m² 13 PLACE KOSSUTH PARIS (75009)
Ajouter au comparateur
Vous souhaitez faciliter votre recherche ?
Créez un compte
Présentation du bien
Idéalement situés au cœur du 9ème arrondissement de Paris, au 13 place Kossuth, IMMPROVE vous propose à la location plusieurs plateaux de bureaux rénovés pour une surface totale d’environ 774 m² divisibles à partir de 191 m². Implantés dans un immeuble ancien de bon standing, les plateaux sont livrés en espaces ouverts, climatisés et bénéficient d’une grande flexibilité d’aménagement. L’immeuble est également équipé de deux ascenseurs, d’un visiophone, d’un chauffage central et de balcons à plusieurs niveaux.
Surface totale
Nature
Divisibilité
Etat des locaux
774 m²
Bureaux
Oui à partir de 191 m²
Rénové
Prix & Conditions
Loyer :
660 € /m²/an (HT/HC)
10 505 € /mois (HT/HC)
126 060 € /an (HT/HC)
Divisibles à partir de 191 m²
Impôt foncier :
26.00
Taxe bureaux :
26.11
Dépôt de garantie :
3 mois de loyer HT HC
Conditions location :
Les charges comprennent : l'eau froide, le gaz et l'électricité des parties communes
Prestations & équipements du bien
Le bâtiment
Façade en pierres de taille
Parties communes de bon standing
Les espaces de travail
Fibre optique Locaux lumineux et modulables aménagés en :
Espace ouvert
Le confort au quotidien
Belle hauteur sous plafond
Balcon
Moquette
Climatisation
Sécurité du site
Visiophone
Accessibilité
Immeuble équipé de deux ascenseurs
Prestations spécifiques
Chauffage immeuble gaz
Les charges comprennent : l'eau froide, le gaz et l'électricité des parties communes
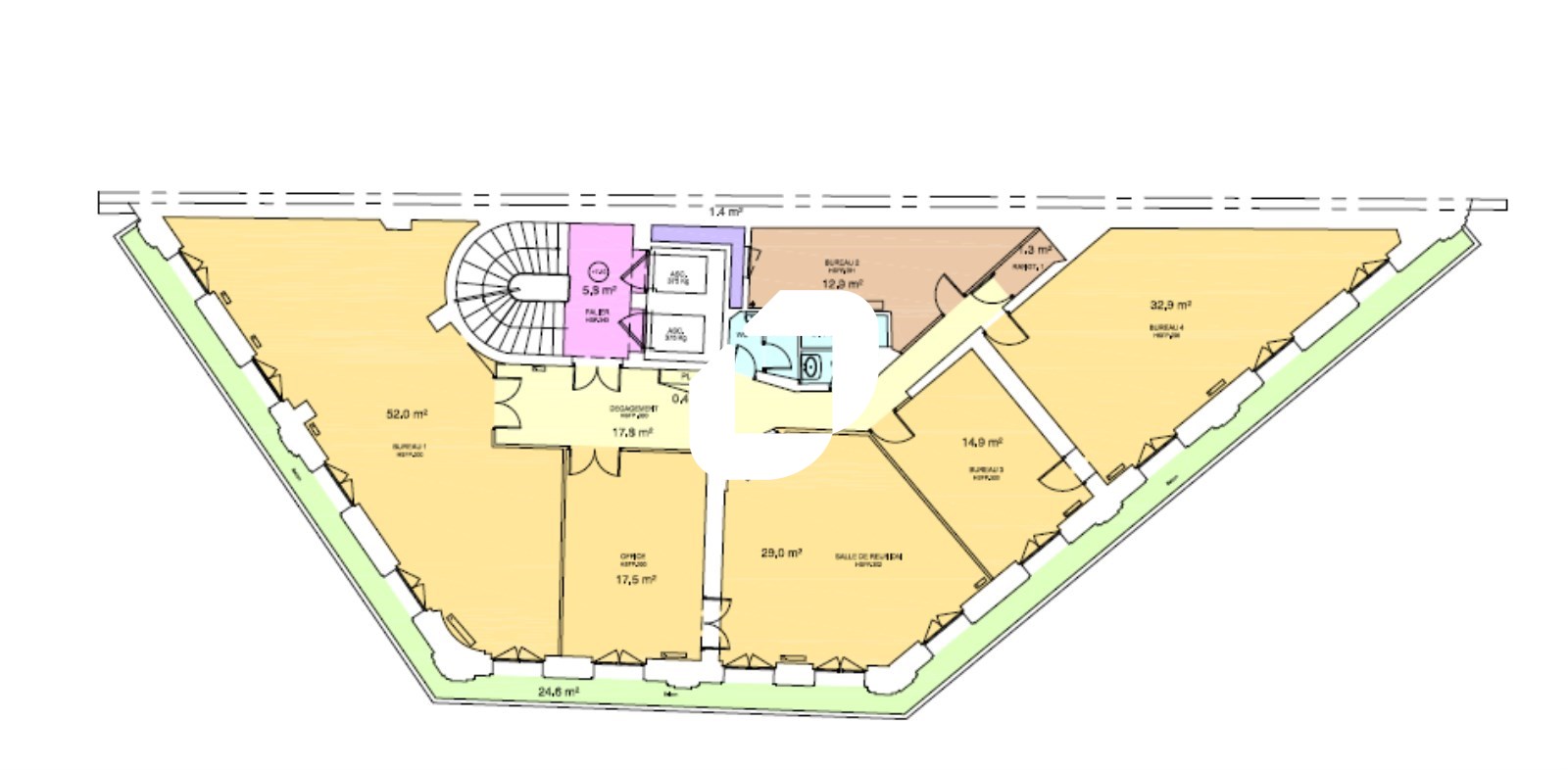
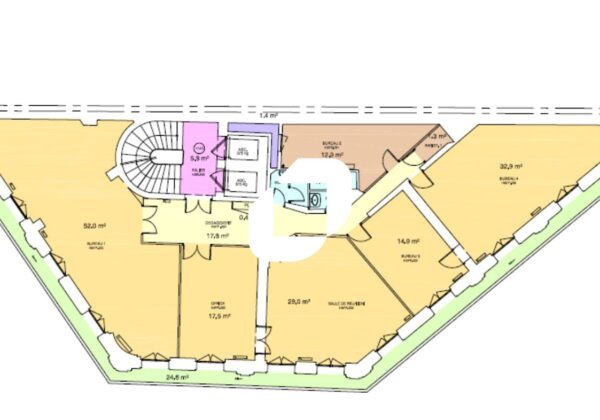
Répartition & surfaces des espaces
Tableau des divisibilités
| Type | Étage | Surface | Loyer (€/m²/an HT HC) |
Charges (€/m²/an HT HC) |
|---|---|---|---|---|
| Bureaux | 2ème étage | 193 m² | 660.00 | 57.55 |
| Bureaux | 3ème étage | 194 m² | 660.00 | 57.55 |
| Bureaux | 4ème étage | 196 m² | 660.00 | 57.55 |
| Bureaux | 5ème étage | 191 m² | 660.00 | 57.55 |
Performance énergétique du bien (DPE)


Informations non contractuelles
Localisation & accès
Transports en commun à proximité
SNCF gare de Haussmann Saint-Lazare (Ligne RER E), Auber (Ligne RER A)
Auber, Haussmann-Saint-Lazare
85
Adresses
approximatives
Adresses
précises
Nos nouveaux biens qui pourraient vous intéresser
Bureaux - 761m² Divisibles à partir de 165 m²
PARIS (75010)
PARIS (75010)
8 338.00€/mois HT HC
Disponibilité : Après accord
Surface : divisibles à partir de 165 m²
Les entrepreneurs ayant consulté cette offre ont aussi consulté celles ci
Bureaux - 348.02m²
BIEVRES (91570)
BIEVRES (91570)
3 480.00€/mois HT HC
Disponibilité : 1er juillet 2026
Surface : 348.02 m²
Bureaux - 288.28m²
BIEVRES (91570)
BIEVRES (91570)
2 880.00€/mois HT HC
Disponibilité : 1er juillet 2026
Surface : 288.28 m²
Bureaux et Activités - 4 645.22m² Divisibles à partir de 249.90 m²
VILLIERS SUR MARNE (94350)
VILLIERS SUR MARNE (94350)
54 180.00€/mois HT HC
Disponibilité : Immédiate
Surface : divisibles à partir de 249.90 m²
Bureaux - 447m²
MOUSSY LE NEUF (77230)
MOUSSY LE NEUF (77230)
4 097.50€/mois HT HC
Disponibilité : Immédiate
Surface : 447 m²