Retour
Disponibilité Immédiate
Bureaux

À Louer Bureaux privatifs 145 m² | 19 postes 11 RUE DE MOGADOR PARIS (75009)

Location : 789€ /Poste/mois (HT/CC)

Ajouter au comparateur
AGENCE PARIS (75)
Référence : 1367258 Votre agence AGENCE PARIS (75)
Une question sur ce bien ?
Contactez-nous !

Je suis intéressé.e par ce bien et souhaiterai obtenir plus d'information sur ce bien.

Sélectionnez une date et une heure
LUNMARMERJEUVENSAMDIM
Sélectionnez une heure

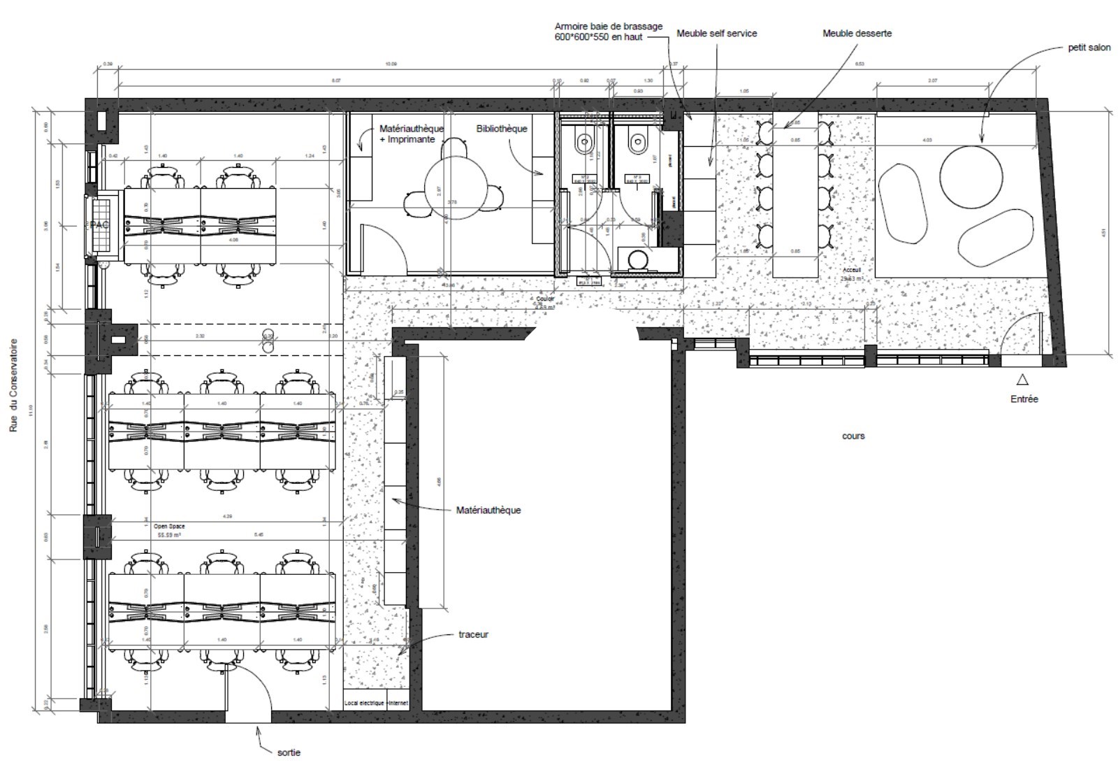
Présentation du bien

Situé dans le 9ème arrondissement de Paris au sein du quartier central des affaires, Immprove vous propose dans un immeuble standing, cette surface Plug & Play de 110 m² pouvant accueillir 16 postes. Les locaux sont livrés rénovés, décorés et meublés. Contrats flexibles de 12/24/36 mois.
Surface totale
Nature
Divisibilité
Nombre de postes
Etat des locaux
145 m²
Bureaux
Non
19
Rénové

Prix & Conditions

Coworking (19 postes) 789 € /Poste/mois (HT/CC)
Dépôt de garantie : 3 mois de loyer HT HC
Conditions location : Le loyer est une somme forfaitaire incluant toutes les charges et la fiscalité.

Prestations & équipements du bien

Le bâtiment

Parties communes de qualité

Les espaces de travail

Accueil

Espace ouvert

1 Salle de réunions

Espace détente

Local technique

Cuisine

Sanitaires privatifs

Faux plafonds

Prises RJ45

Le confort au quotidien

Belle hauteur sous plafond

Sol PVC

Sécurité du site

Contrôle d'accès par visiophone

Accessibilité

Ascenseur desservant directement les plateaux Locaux aménagés en :

Autres

Immeuble en pierre de taille de standing

Alarme

Le loyer est une somme forfaitaire incluant toutes les charges et la fiscalité.

Répartition & surfaces des espaces

Type Étage Surface Nb postes Prix
(€/poste HT HC)
Bureaux 4ème étage 145 m² 19 789.47

Localisation & accès

Transports en commun à proximité

Auber (Ligne RER A), Haussmann Saint-Lazare (Ligne RER E), Gare Saint-Lazare (Ligne J, Ligne L, Ligne SNCF)

Métro Métro
metro 12 metro 14 metro 13 metro 8 metro 3
RER RER
Auber, Haussmann-Saint-Lazare

Adresses
approximatives

 

Adresses
précises

CoWorking
à Louer 9
Bureaux privatifs en centre de CoWorking - 18 postes
PARIS (75009)
39.17€/poste/mois HT HC
Disponibilité : Immédiate
Surface : 119 m²
CoWorking
à Louer 11
Bureaux privatifs en centre de CoWorking - 22 postes
PARIS (75009)
41.67€/poste/mois HT HC
Disponibilité : 30 avril 2026
Surface : 150 m²
CoWorking
à Louer 4
Bureaux privatifs en centre de CoWorking - 21 postes
PARIS (75009)
Prix sur demande
Disponibilité : 30 septembre 2026
Surface : 120 m²
CoWorking
à Louer 18
Bureaux privatifs en centre de CoWorking - 24 postes
PARIS (75002)
45.83€/poste/mois HT HC
Disponibilité : Après accord
Surface : 155 m²
Bureaux
à Louer 5
Bureaux - 348.02m²
BIEVRES (91570)
3 480.00€/mois HT HC
Disponibilité : 1er juillet 2026
Surface : 348.02 m²
Bureaux
à Louer 5
Bureaux - 288.28m²
BIEVRES (91570)
2 880.00€/mois HT HC
Disponibilité : 1er juillet 2026
Surface : 288.28 m²
Bureaux et Activités
à Louer
Bureaux et Activités - 4 645.22m² Divisibles à partir de 249.90 m²
VILLIERS SUR MARNE (94350)
9 870.00€/mois HT HC
Disponibilité : Immédiate
Surface : divisibles à partir de 249.90 m²
Bureaux
à Louer 12
Bureaux - 447m²
MOUSSY LE NEUF (77230)
4 097.50€/mois HT HC
Disponibilité : Immédiate
Surface : 447 m²