Retour
Bureaux - 610.25m² à Louer
. Sur cour privative
. Accès sécurisé par badge
. Superbes volumes aux accents de loft industriel
. Locaux en excellent état
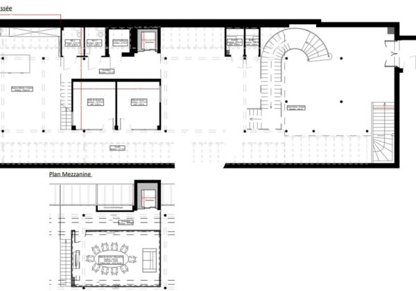
. Grand open space sous verrière avec belle mezzanine
. 5m de HSP au RDC
. Peu de contraintes porteuses
. Espace détente avec cuisine aménagé
. Escalier intérieur
. Ascenseur privatif
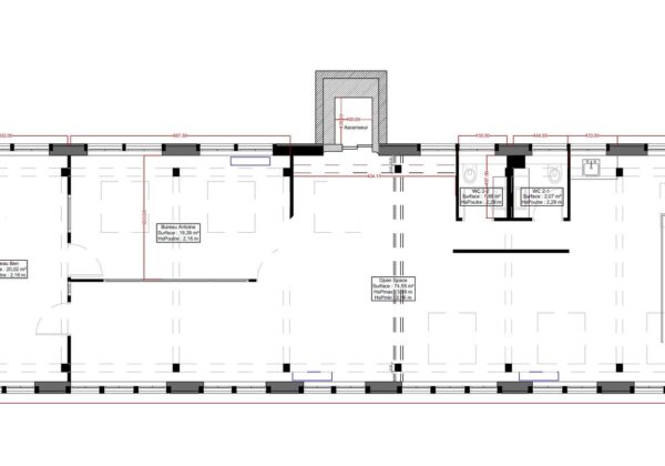
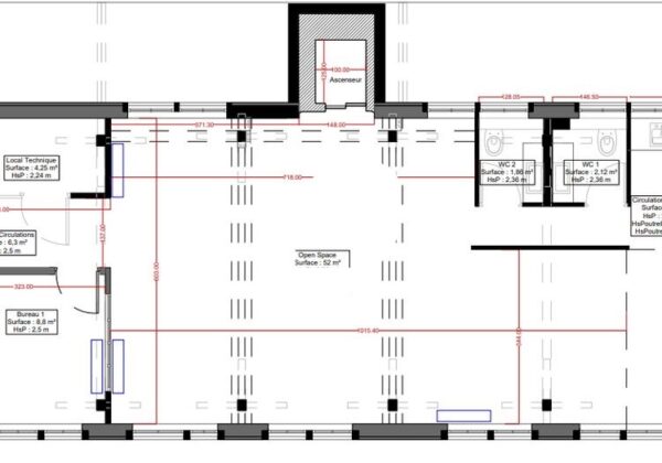
. 1er et 2ème étage aménagé en bureau ouvert et cloisonné
. Climatisation double-flux
. Câblage informatique et fibre optique
. Une kitchenette d’appoint par étage
. Sept sanitaires réparties sur l'immeuble
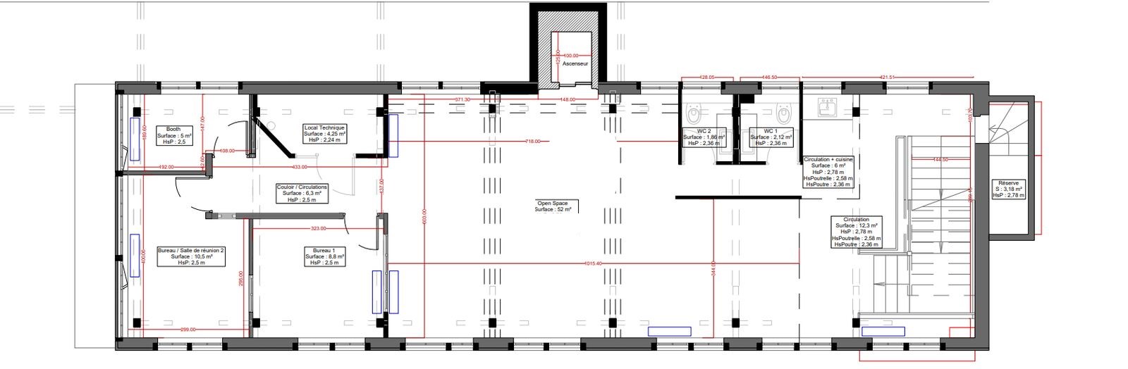
. Sous-sol structuré en plusieurs espaces :
- Zone d’archives organisée
- Baie de brassage technique
- Espace douche fonctionnel
- Pièce acoustique isolée et optimisée
Bureaux - 610.25m² à Louer
65 RUE DE REUILLY PARIS (75012)
DESCRIPTION
Bureaux à Louer - Paris 12e
IMMPROVE, votre conseil en immobilier d’entreprise, vous propose un bien d’exception en fond de cour, calme et lumineux. Bureaux style loft avec verrière et 5 m de hauteur sous plafond, alliant patrimoine et modernité. Idéal pour start-up, studio créatif ou entreprise en quête d’un espace inspirant.
En savoir plus
. Immeuble indépendant entièrement restructuré. Sur cour privative
. Accès sécurisé par badge
. Superbes volumes aux accents de loft industriel
. Locaux en excellent état
. Grand open space sous verrière avec belle mezzanine
. 5m de HSP au RDC
. Peu de contraintes porteuses
. Espace détente avec cuisine aménagé
. Escalier intérieur
. Ascenseur privatif
. 1er et 2ème étage aménagé en bureau ouvert et cloisonné
. Climatisation double-flux
. Câblage informatique et fibre optique
. Une kitchenette d’appoint par étage
. Sept sanitaires réparties sur l'immeuble
. Sous-sol structuré en plusieurs espaces :
- Zone d’archives organisée
- Baie de brassage technique
- Espace douche fonctionnel
- Pièce acoustique isolée et optimisée
Consommations énergétiques


Informations non contractuelles
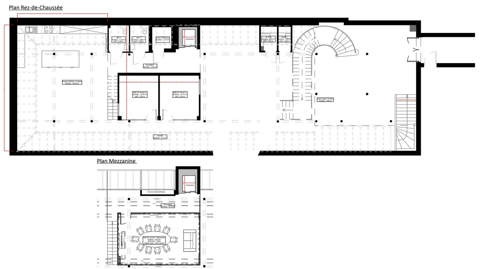
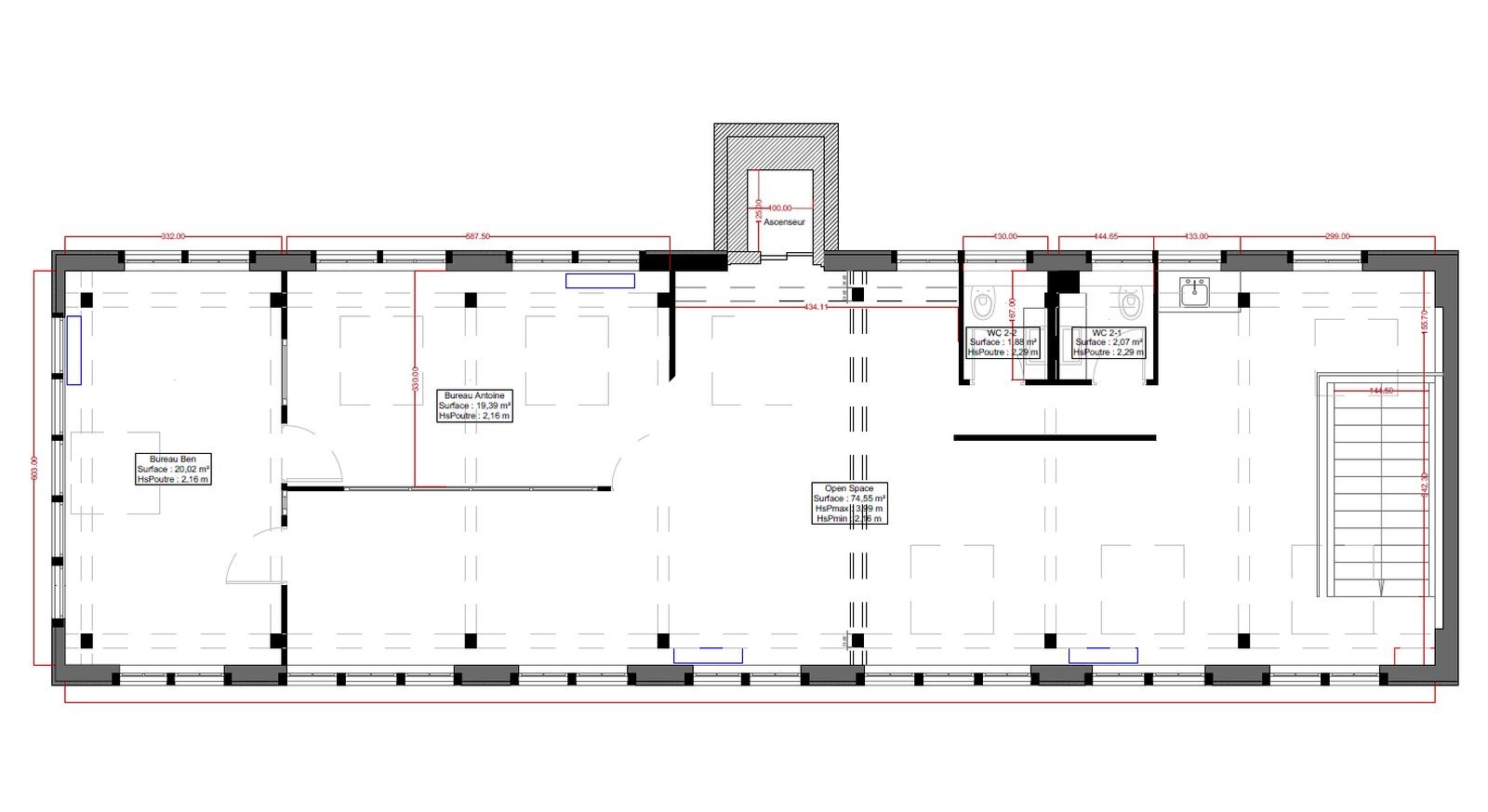
Tableau des divisibilités
| Type | Étage | Surface | Loyer (€/m²/an HT HC) |
Charges (€/m²/an HT HC) |
|---|---|---|---|---|
| Bureaux | 1er Sous-Sol | 62 m² | 237.00 | 14.60 |
| Bureaux | Rez-de-Chaussée | 280 m² | 475.00 | 14.60 |
| Bureaux | Mezzanine | 37 m² | 475.00 | 14.60 |
| Bureaux | 1er étage | 113 m² | 475.00 | 14.60 |
| Bureaux | 2ème étage | 119 m² | 475.00 | 14.60 |
Caractéristiques
- Surface 610.25 m²
- Etat des locaux Etat d’usage
Adresses
approximatives
Adresses
précises
Nos nouveaux biens qui pourraient vous intéresser
Les entrepreneurs ayant consulté cette offre ont aussi consulté celles ci
Les services Immprove
Une gamme complète de services qui facilitent vos démarches et destinée à satisfaire vos attentes