Retour
Disponibilité Immédiate
À Louer Bureaux 87.80 m² PARIS (75014)
Ajouter au comparateur
Vous souhaitez faciliter votre recherche ?
Créez un compte
Présentation du bien
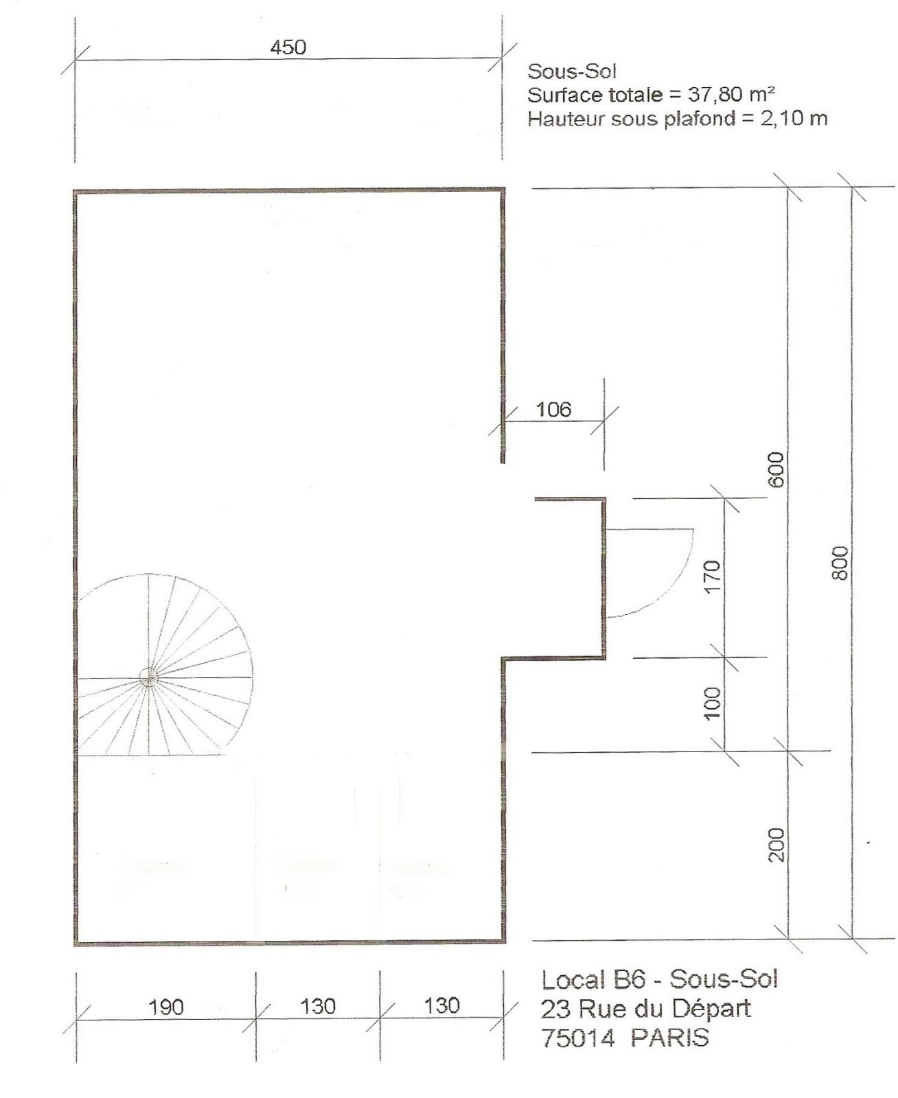
Immprove vous propose des bureaux refaits à neuf, idéalement situés à deux pas de la gare Montparnasse. Les locaux sont en bon état et sont composés de 50 m² en rez-de-chaussée ainsi que d’un sous-sol de 38,8 m² lié par un escalier en colimaçon. Bail 3-6-9, disponibilité immédiate !
Surface totale
Nature
Divisibilité
Etat des locaux
87.80 m²
Bureaux
Non
Bon état
Prix & Conditions
Loyer :
300 € /m²/an (HT/HC)
950 € /mois (HT/HC)
11 400 € /an (HT/HC)
Impôt foncier :
200.00
Dépôt de garantie :
3 mois de loyer HT HC
Prestations & équipements du bien
Le bâtiment
Immeuble récent
Les espaces de travail
Fibre optique . Décloisonnement possible
Locaux rationnels et modulables
Cloisons sèches
Câblage informatique et téléphonique
Pré-câblage informatique et téléphonique
Le confort au quotidien
Sol PVC
Les accès
Accès PMR
Double accès
Sécurité du site
Site sécurisé 24h/24h
Prestations spécifiques
Chauffage électrique
Extérieur
Parking en sous -sol
Autres
Sanitaires
Répartition & surfaces des espaces
Tableau des divisibilités
| Type | Étage | Surface | Loyer (€/m²/an HT HC) |
Charges (€/m²/an HT HC) |
|---|---|---|---|---|
| Parkings | 1 800.00 | Prix sur demande | ||
| Bureaux | Sous-Sol | 38 m² | 300.00 | 34.28 |
| Bureaux | RDC | 50 m² | 355.00 | 34.28 |
Performance énergétique du bien (DPE)


Informations non contractuelles
Localisation & accès
Transports en commun à proximité
Gare Montparnasse (N)
28
58
91
82
89
92
94
95
96
68
Accès routier
Place du 18 Juin 1940 (N01,N02,N12,N13)
Gare Montparnasse (N61,N62,N63,N66)
Adresses
approximatives
Adresses
précises
Nos nouveaux biens qui pourraient vous intéresser
Les entrepreneurs ayant consulté cette offre ont aussi consulté celles ci
Bureaux - 83.60m²
BUSSY SAINT GEORGES (77600)
BUSSY SAINT GEORGES (77600)
1 288.00€/mois HT HC
Disponibilité : Immédiate
Surface : 83.60 m²
Bureaux - 6 934m² Divisibles à partir de 173 m²
LYON (69009)
LYON (69009)
Prix sur demande
Disponibilité : Selon les lots – nous consulter
Surface : divisibles à partir de 173 m²