Retour
Disponibilité Immédiate
À Louer Bureaux 807.15 m² PARIS (75015)
Ajouter au comparateur
Vous souhaitez faciliter votre recherche ?
Créez un compte
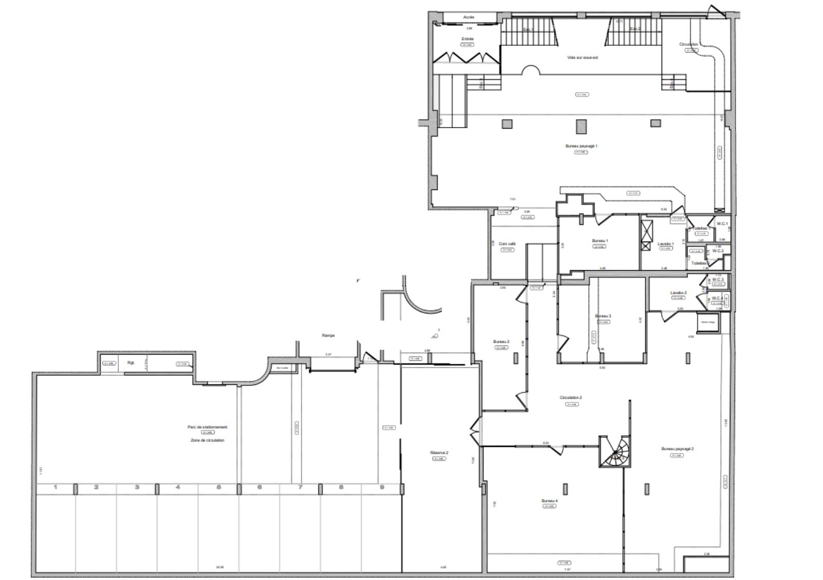
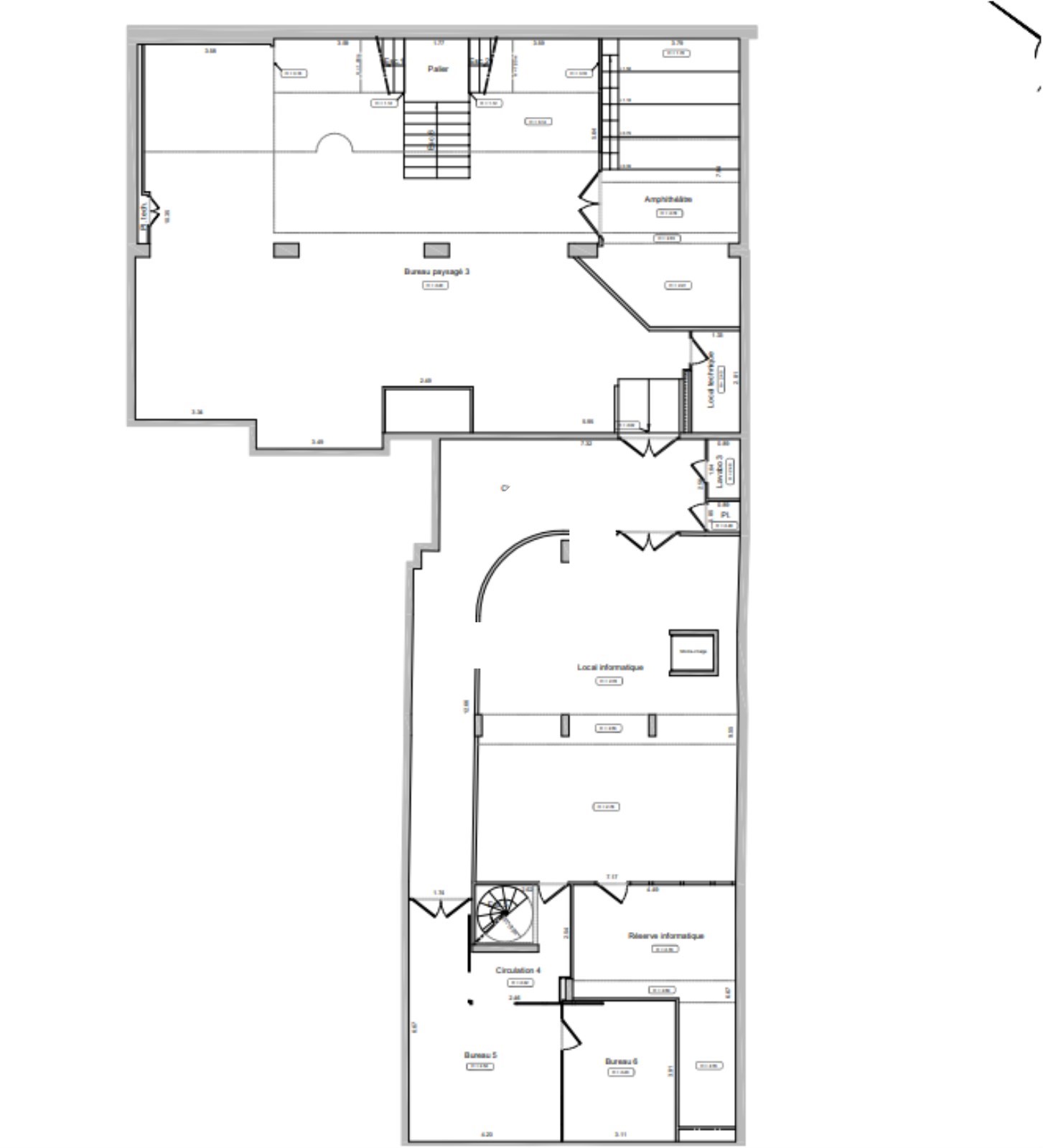
Présentation du bien
Exclusivité quartier Beaugrenelle, Immprove vous propose en location une surface de bureaux de 807m² ventilée comme suit (possibilité ERP) :
Un rez-de-chaussée de 475m² avec double accès privatif sur rue. Un sous-sol relié par escalier intérieur d’une surface de 332m². Ces plateaux climatisés, rationnels et modulables, sauront s’adapter à un large panel d’activités. Un lot de 9 places de parking couvertes accompagne ce bien (espace privatif), ainsi qu’un espace d’archive de 125m².
Surface totale
Nature
Divisibilité
Etat des locaux
807.15 m²
Bureaux
Non
Bon état
Prix & Conditions
Loyer :
143 € /m²/an (HT/HC)
3 956 € /mois (HT/HC)
47 476 € /an (HT/HC)
Impôt foncier :
13.50
Taxe bureaux :
26.11
Dépôt de garantie :
3 mois de loyer HT HC
Prestations & équipements du bien
Le bâtiment
Immeuble mixte
Les espaces de travail
Fibre optique
Accueil
Espace ouvert
Local technique
Cuisine et sanitaires privatifs
Faux plafonds
Câblage informatique et téléphonique
Prises RJ45
Le confort au quotidien
Moquette
Climatisation réversible (partie arrière)
Les accès
Accès PMR
Accès privatif sur rue
Double accès
Sécurité du site
Contrôle d'accès
Interphone
Sas d'entrée
Accessibilité
Monte-charge
Prestations spécifiques
Chauffage immeuble gaz
Autres
Salles de réunion
Possibilité de normes E.R.P.
Répartition & surfaces des espaces
Tableau des divisibilités
| Type | Étage | Surface | Loyer (€/m²/an HT HC) |
Charges (€/m²/an HT HC) |
|---|---|---|---|---|
| Bureaux | Sous-Sol | 332 m² | 143.37 | 18.41 |
| Archives | Rez-de-Chaussée | 124 m² | Prix sur demande | 18.41 |
| Bureaux | Rez-de-Chaussée | 475 m² | 300.00 | 18.41 |
| Parkings | RDC | Prix sur demande | Prix sur demande |
Performance énergétique du bien (DPE)


Informations non contractuelles
Localisation & accès
Transports en commun à proximité
88
42
70
62
Adresses
approximatives
Adresses
précises
Nos nouveaux biens qui pourraient vous intéresser
Bureaux - 630m²
PARIS (75002)
PARIS (75002)
39 375.00€/mois HT HC
Disponibilité : 1er septembre 2026
Surface : 630 m²
Bureaux - 4 316m² Divisibles à partir de 709 m²
PARIS (75019)
PARIS (75019)
61 666.67€/mois HT HC
Disponibilité : 1er septembre 2026
Surface : divisibles à partir de 709 m²
Les entrepreneurs ayant consulté cette offre ont aussi consulté celles ci
Bureaux - 348.02m²
BIEVRES (91570)
BIEVRES (91570)
3 480.00€/mois HT HC
Disponibilité : 1er juillet 2026
Surface : 348.02 m²
Bureaux - 288.28m²
BIEVRES (91570)
BIEVRES (91570)
2 880.00€/mois HT HC
Disponibilité : 1er juillet 2026
Surface : 288.28 m²
Bureaux et Activités - 4 645.22m² Divisibles à partir de 249.90 m²
VILLIERS SUR MARNE (94350)
VILLIERS SUR MARNE (94350)
54 180.00€/mois HT HC
Disponibilité : Immédiate
Surface : divisibles à partir de 249.90 m²
Bureaux - 447m²
MOUSSY LE NEUF (77230)
MOUSSY LE NEUF (77230)
4 097.50€/mois HT HC
Disponibilité : Immédiate
Surface : 447 m²