Retour
Disponibilité Immédiate
À Louer Bureaux 1 380 m² divisibles à partir de 230 m² PARIS (75016)
Ajouter au comparateur
Vous souhaitez faciliter votre recherche ?
Créez un compte
Présentation du bien
À proximité de la Maison de la Radio, IMMPROVE vous propose à la location deux plateaux d’environ 575 m² aux 2ème et 4ème étages, ainsi que des bureaux d’environ 230 m² au 1er étage. Les locaux, accessibles PMR, sont traversants et climatisés, avec possibilité de décloisonnement. Les charges incluent les coûts de fonctionnement de l’immeuble, impôts, taxes et assurance. Un grand rooftop avec vue sur la Tour Eiffel est accessible à tous les locataires, offrant un espace convivial et prestigieux.
Surface totale
Nature
Divisibilité
Etat des locaux
1 380 m²
Bureaux
Oui à partir de 230 m²
Bon état
Prix & Conditions
Loyer :
480 € /m²/an (HT/HC)
9 200 € /mois (HT/HC)
110 400 € /an (HT/HC)
Divisibles à partir de 230 m²
Impôt foncier :
25.00
Taxe bureaux :
26.11
Dépôt de garantie :
3 mois de loyer HT HC
Prestations & équipements du bien
Le bâtiment
Immeuble de bureaux moderne
Les espaces de travail
Hôtesse d'accueil
Fibre optique
Climatisation . Bureaux cloisonnés
Décloisonnement possible
Locaux rationnels et modulables
Salle de réunion
Faux plafonds
Cuisine
Sanitaires privatifs
Le confort au quotidien
Locaux traversants
Moquette
Sécurité du site
Contrôle d'accès
Accessibilité
2 Ascenseurs
Prestations spécifiques
Chauffage immeuble
Extérieur
Terrasse commune
Autres
Accès P.M.R.
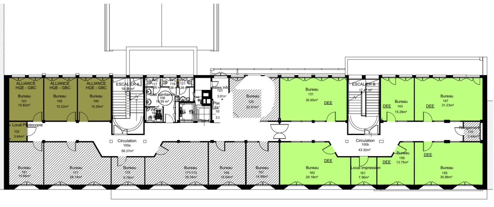
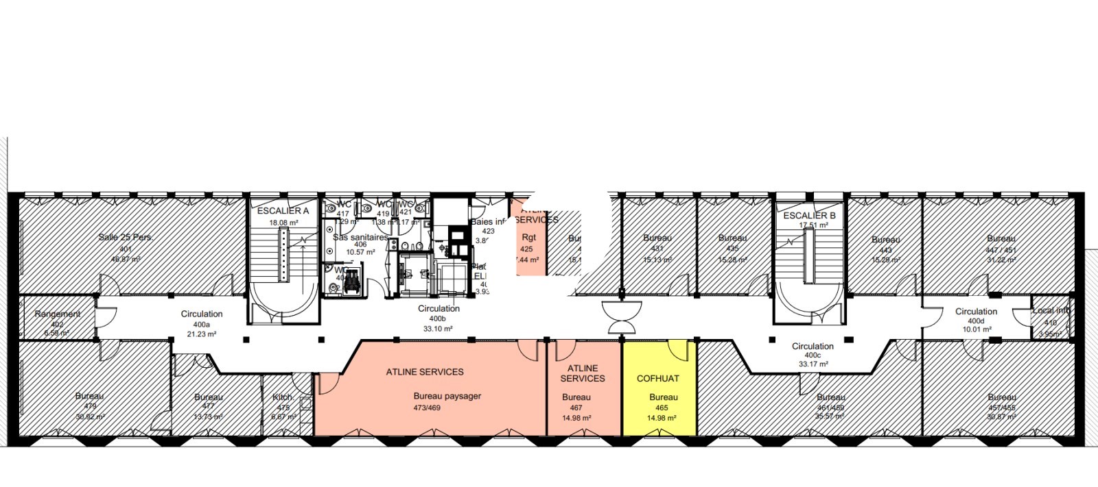
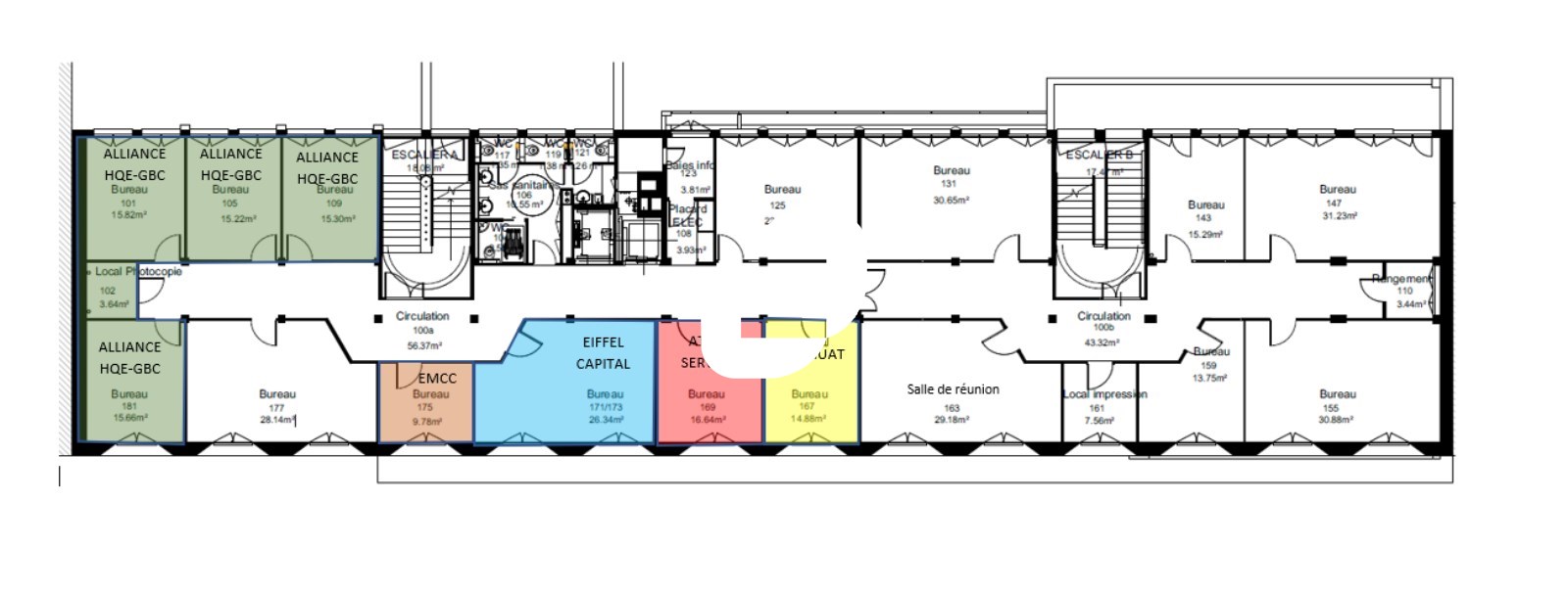
Répartition & surfaces des espaces
Tableau des divisibilités
| Type | Étage | Surface | Loyer (€/m²/an HT HC) |
Charges (€/m²/an HT HC) |
|---|---|---|---|---|
| Parkings | 1 815.00 | Prix sur demande | ||
| Bureaux | 1er étage | 230 m² | 480.00 | 81.33 |
| Bureaux | 2ème étage | 575 m² | 480.00 | 81.33 |
| Bureaux | 4ème étage | 575 m² | 480.00 | 81.33 |
Performance énergétique du bien (DPE)


Informations non contractuelles
Localisation & accès
Transports en commun à proximité
Adresses
approximatives
Adresses
précises
Nos nouveaux biens qui pourraient vous intéresser
Les entrepreneurs ayant consulté cette offre ont aussi consulté celles ci
Bureaux - 83.60m²
BUSSY SAINT GEORGES (77600)
BUSSY SAINT GEORGES (77600)
1 288.00€/mois HT HC
Disponibilité : Immédiate
Surface : 83.60 m²
Bureaux - 6 934m² Divisibles à partir de 173 m²
LYON (69009)
LYON (69009)
Prix sur demande
Disponibilité : Selon les lots – nous consulter
Surface : divisibles à partir de 173 m²