Retour
PORTE MAILLOT LIGNE 1
Disponibilité Immédiate
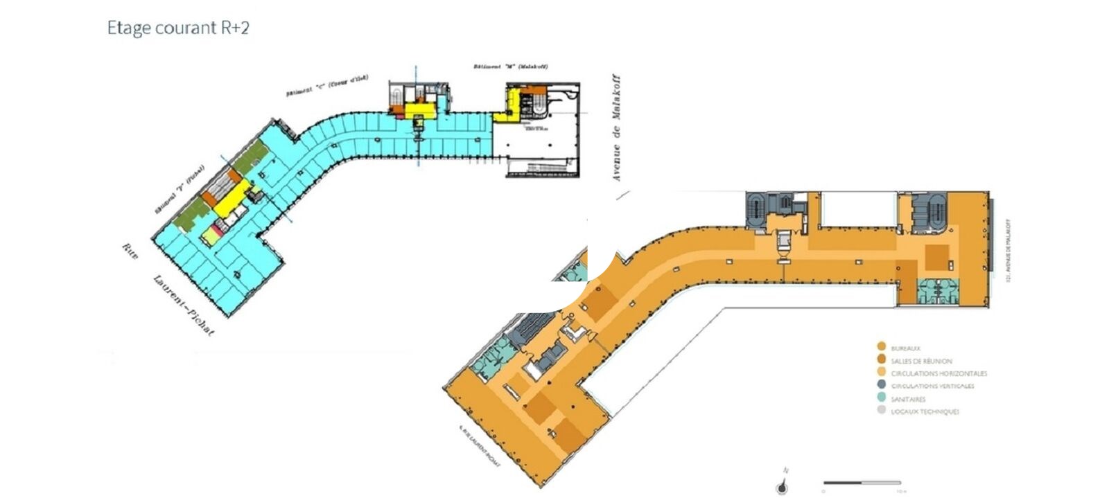
À Louer Bureaux 1 444.21 m² divisibles à partir de 443.84 m² SEIZAME 121 AVENUE DE MALAKOFF PARIS (75016)
Ajouter au comparateur
Vous souhaitez faciliter votre recherche ?
Créez un compte
Présentation du bien
Au pieds de la ligne 1 et à deux pas de la porte maillot, Immprove vous propose à la location un plateau de bureau ouvert et modulable de 1444m².
Surface totale
Nature
Divisibilité
Etat des locaux
1 444.21 m²
Bureaux
Oui à partir de 443.84 m²
Bon état
Prix & Conditions
Loyer :
790 € /m²/an (HT/HC)
29 219 € /mois (HT/HC)
350 633 € /an (HT/HC)
Divisibles à partir de 443.84 m²
Impôt foncier :
40.00
Taxe bureaux :
25.31
Frais de gestion :
4.9€ /m²
Dépôt de garantie :
3 mois de loyer HT HC
Conditions location :
. Loyer parking : 2500€/U/an
. Fluides et consommations des parties communes : 35.8 € / m²
. Assurances : 1.5€ / m²
. Fluides et consommations des parties communes : 35.8 € / m²
. Assurances : 1.5€ / m²
Prestations & équipements du bien
Le bâtiment
Parties communes de qualité
Les espaces de travail
Hôtesse d'accueil
Fibre optique
Les accès
Accès PMR
Sécurité du site
Sas d'entrée
Gardienne
Interphone
Accessibilité
Ascenseur
Monte-charge
Services & espaces partagés
R.I.E. de 180 places assises
Extérieur
Nombreuses terrasses
Parking int. (12)
Parkings motos (5) et vélos (65)
Autres
Restructuration lourde réalisée par l'architecte Franck Hammoutène en 2017
Capacitaire immeuble : 944 personnes
Deux hall double hauteur
Auditorium de 90 places - ERP 5 État des locaux : état d'usage
Capacitaire : 130 personnes
Grand plateau ouvert et modulable
. Loyer parking : 2500€/U/an
. Fluides et consommations des parties communes : 35.8 € / m²
. Assurances : 1.5€ / m²
Répartition & surfaces des espaces
Tableau des divisibilités
| Type | Étage | Surface | Loyer (€/m²/an HT HC) |
Charges (€/m²/an HT HC) |
|---|---|---|---|---|
| Bureaux | 2ème étage | 444 m² | 790.00 | 80.00 |
| Bureaux | 2ème étage | 1 000 m² | 790.00 | 80.00 |
Performance énergétique du bien (DPE)


Informations non contractuelles
Localisation & accès
Transports en commun à proximité
82
Adresses
approximatives
Adresses
précises
Nos nouveaux biens qui pourraient vous intéresser
Bureaux - 362.35m²
PARIS (75016)
PARIS (75016)
Prix sur demande
Disponibilité : 1 mois après accord
Surface : 362.35 m²
Bureaux - 5 412m² Divisibles à partir de 500 m²
PARIS (75020)
PARIS (75020)
9 583.33€/mois HT HC
Disponibilité : Immédiate
Surface : divisibles à partir de 500 m²
Bureaux - 412m²
PARIS (75002)
PARIS (75002)
18 196.67€/mois HT HC
Disponibilité : 1er septembre 2026
Surface : 412 m²
Les entrepreneurs ayant consulté cette offre ont aussi consulté celles ci
Bureaux - 348.02m²
BIEVRES (91570)
BIEVRES (91570)
3 480.00€/mois HT HC
Disponibilité : 1er juillet 2026
Surface : 348.02 m²
Bureaux - 288.28m²
BIEVRES (91570)
BIEVRES (91570)
2 880.00€/mois HT HC
Disponibilité : 1er juillet 2026
Surface : 288.28 m²
Bureaux et Activités - 4 645.22m² Divisibles à partir de 249.90 m²
VILLIERS SUR MARNE (94350)
VILLIERS SUR MARNE (94350)
54 180.00€/mois HT HC
Disponibilité : Immédiate
Surface : divisibles à partir de 249.90 m²
Bureaux - 447m²
MOUSSY LE NEUF (77230)
MOUSSY LE NEUF (77230)
4 097.50€/mois HT HC
Disponibilité : Immédiate
Surface : 447 m²