Retour
Disponibilité Immédiate
À Louer Bureaux 355 m² divisibles à partir de 131 m² RUE PETIGNY VERSAILLES (78000)
Ajouter au comparateur
Vous souhaitez faciliter votre recherche ?
Créez un compte
Présentation du bien
IMMPROVE vous propose à la location plusieurs surfaces de bureaux dans un bel immeuble tertiaire situé au cœur de VERSAILLES.
Les surfaces sont en bon état et disposent d’une belle luminosité et vue. Elles sont réparties de la manière suivante : espaces, bureaux cloisonnés, open space, cuisine, sanitaires privatifs.
Surface totale
Nature
Divisibilité
Etat des locaux
355 m²
Bureaux
Oui à partir de 131 m²
Bon état
Prix & Conditions
Loyer :
293 € /m²/an (HT/HC)
3 198 € /mois (HT/HC)
38 383 € /an (HT/HC)
Divisibles à partir de 131 m²
Dépôt de garantie :
3 mois de loyer HT HC
Conditions location :
Lot 3AB : Charges + TB + TF + TOM : 18,67% du loyer annuel HT HC
Lot 14 : Charges + TB + TF + TOM : 15.09% du loyer annuel HT HC
Lot 14 : Charges + TB + TF + TOM : 15.09% du loyer annuel HT HC
Prestations & équipements du bien
Le bâtiment
Immeuble ancien de bon standing
Parties communes de qualité
Les espaces de travail
Fibre optique . Locaux en bon état et lumineux
Accueil
Espace ouvert
Bureaux cloisonnés
Décloisonnement possible
Salle de réunion
Espace détente
Local technique
Cuisine
Sanitaires privatifs
Faux plafonds
Câblage informatique et téléphonique
Sécurité du site
Digicode
Accessibilité
Ascenseur
Prestations spécifiques
Chauffage électrique
Autres
Alarme
Lot 3AB : Charges + TB + TF + TOM : 18,67% du loyer annuel HT HC
Lot 14 : Charges + TB + TF + TOM : 15.09% du loyer annuel HT HC
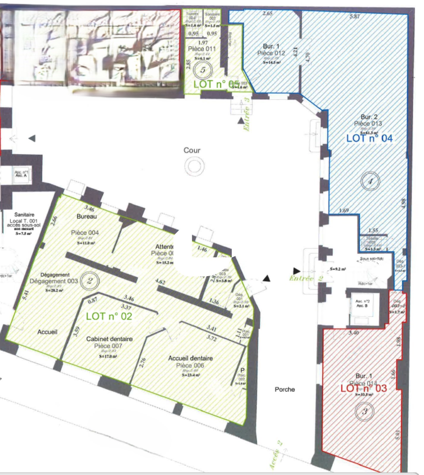
Répartition & surfaces des espaces
Tableau des divisibilités
| Type | Étage | Surface | Loyer (€/m²/an HT HC) |
Charges (€/m²/an HT HC) |
|---|---|---|---|---|
| Bureaux | Rez-de-Chaussée | 224 m² | 293.00 | Prix sur demande |
| Bureaux | 3ème étage | 131 m² | 311.00 | Prix sur demande |
Performance énergétique du bien (DPE)


Informations non contractuelles
Localisation & accès
Transports en commun à proximité
Gare Versailles Rive Droite
Théâtre Montansier
Accès routier
Autoroutes A12, A13 et A86/Duplex
Adresses
approximatives
Adresses
précises
Nos nouveaux biens qui pourraient vous intéresser
Bureaux - 239m² Divisibles à partir de 112 m²
VERSAILLES (78000)
VERSAILLES (78000)
3 175.00€/mois HT HC
Disponibilité : Immédiate
Surface : divisibles à partir de 112 m²
Les entrepreneurs ayant consulté cette offre ont aussi consulté celles ci
Bureaux - 105m²
SAINT JEAN DE VEDAS (34430)
SAINT JEAN DE VEDAS (34430)
1 458.36€/mois HT HC
Disponibilité : Immédiate
Surface : 105 m²
Bureaux - 330.50m²
PARIS (75013)
PARIS (75013)
10 642.50€/mois HT HC
Disponibilité : Immédiate
Surface : 330.50 m²