Retour
Bureaux - 1 960m² à Louer
. Accès véhicules légers
. Accès PMR
. Ascenseur PMR
. Contrôle d'accès
. Climatisation réversible
. Fibre optique . Locaux neufs
. Travaux à prévoir
. Brut de béton
. Locaux traversants lumineux
. Locaux rationnels et modulables
. Accueil
. Salle de réunion
. Sanitaires privatifs
. Belle hauteur sous plafond
. Double exposition
. Climatisation réversible
. Locaux E.R.P.
Bureaux - 1 960m² à Louer
VERSAILLES (78000)
DESCRIPTION
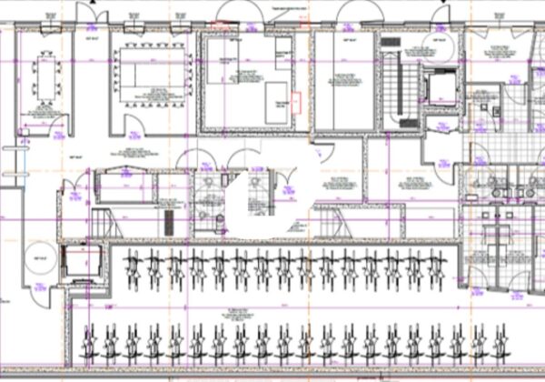
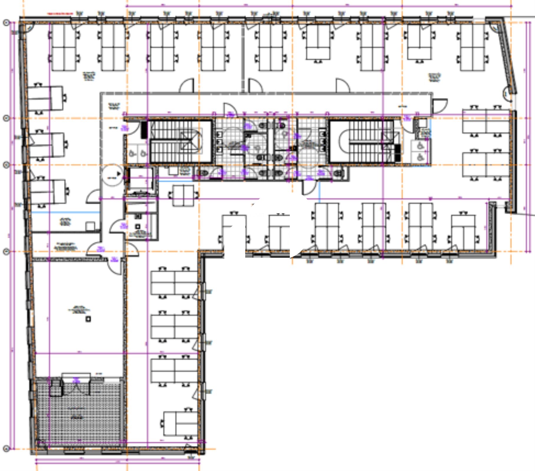
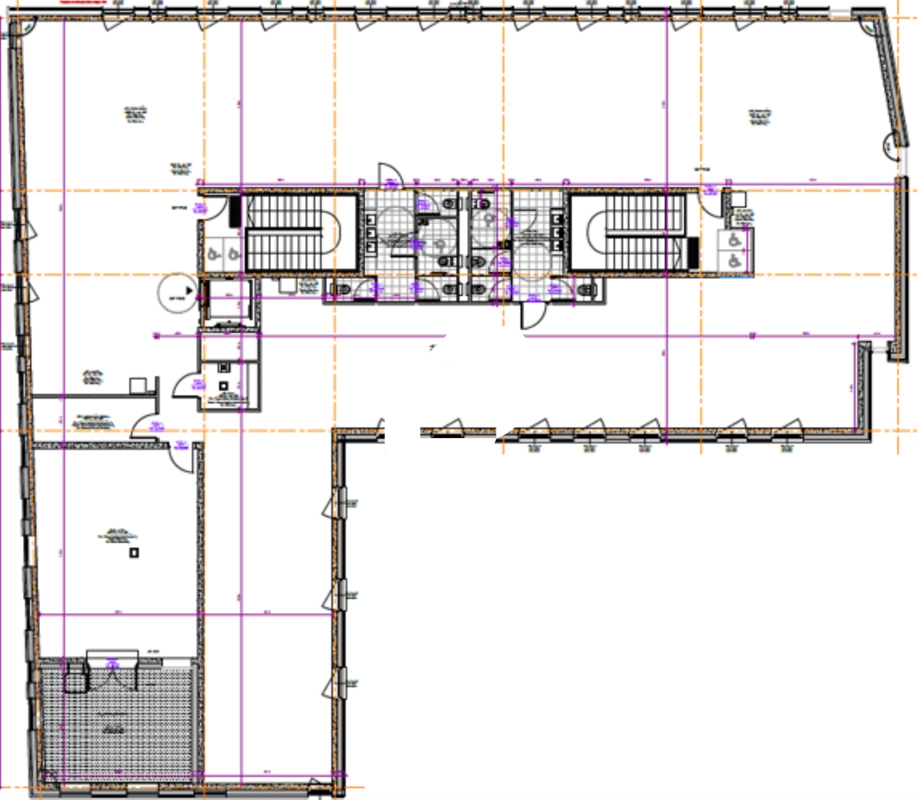
Immprove vous propose à la location environ 1 960 m² de bureaux indépendants répartis sur 4 niveaux. L’immeuble se situe à Versailles-Satory avec une liaison bus vers la gare de Versailles Chantiers (liaison en 10 minutes).Le bâtiment à été conçu pour fonctionner indépendamment avec notamment une entrée distincte et directe sur rue.
En savoir plus
. Immeuble de standing. Accès véhicules légers
. Accès PMR
. Ascenseur PMR
. Contrôle d'accès
. Climatisation réversible
. Fibre optique . Locaux neufs
. Travaux à prévoir
. Brut de béton
. Locaux traversants lumineux
. Locaux rationnels et modulables
. Accueil
. Salle de réunion
. Sanitaires privatifs
. Belle hauteur sous plafond
. Double exposition
. Climatisation réversible
. Locaux E.R.P.
Consommations énergétiques


Informations non contractuelles
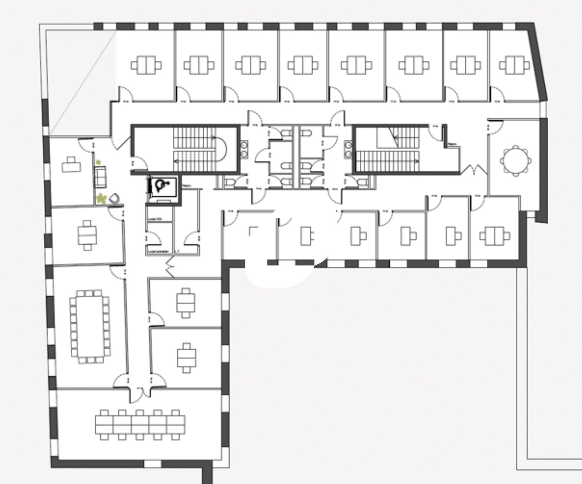
Tableau des divisibilités
| Type | Étage | Surface | Loyer (€/m²/an HT HC) |
Charges (€/m²/an HT HC) |
|---|---|---|---|---|
| Parkings | 1 000.00 | Prix sur demande | ||
| Bureaux | Rez-de-Chaussée | 127 m² | 240.00 | 110.00 |
| Bureaux | 1er étage | 641 m² | 240.00 | 110.00 |
| Bureaux | 2ème étage | 641 m² | 240.00 | 110.00 |
| Bureaux | 3ème étage | 551 m² | 240.00 | 110.00 |
Caractéristiques
- Surface 1 960 m²
- Etat des locaux Neuf
- Nbre Parking 40
- Ascenseur oui
Adresses
approximatives
Adresses
précises
Nos nouveaux biens qui pourraient vous intéresser
Les entrepreneurs ayant consulté cette offre ont aussi consulté celles ci
Les services Immprove
Une gamme complète de services qui facilitent vos démarches et destinée à satisfaire vos attentes