Retour
Disponibilité Selon les lots
À Louer Bureaux 636 m² divisibles à partir de 80 m² IMMEUBLE JEAN MERMOZ 7 RUE JEAN MERMOZ VERSAILLES (78000)
Ajouter au comparateur
Vous souhaitez faciliter votre recherche ?
Créez un compte
Présentation du bien
Dans un immeuble de bon standing, à proximité de la gare Versailles Chantiers, Immprove vous propose des bureaux en bon état, cloisonnés et lumineux.
Surface totale
Nature
Divisibilité
Etat des locaux
636 m²
Bureaux
Oui à partir de 80 m²
Bon état
Prix & Conditions
Loyer :
170 € /m²/an (HT/HC)
1 133 € /mois (HT/HC)
13 600 € /an (HT/HC)
Divisibles à partir de 80 m²
Impôt foncier :
21.74
Taxe bureaux :
11.66
Dépôt de garantie :
3 mois de loyer HT HC
Conditions location :
Electricité et chauffage : Inclus dans les charges.
Parking intérieur : 700€/unité/an HT HC
Parking extérieurs : 400€/unité/an HT HC
Assurance Bailleur et honoraires de gestion : A la charge du Preneur
Parking intérieur : 700€/unité/an HT HC
Parking extérieurs : 400€/unité/an HT HC
Assurance Bailleur et honoraires de gestion : A la charge du Preneur
Prestations & équipements du bien
Le bâtiment
Immeuble moderne
Parties communes de qualité
Les espaces de travail
Bureaux cloisonnés
Décloisonnement possible
Le confort au quotidien
Locaux lumineux
Les accès
Accès PMR
Sécurité du site
Digicode
Interphone
Accessibilité
Ascenseur
Services & espaces partagés
Crèche
Prestations spécifiques
Chauffage électrique
Electricité et chauffage : Inclus dans les charges.
Parking intérieur : 700€/unité/an HT HC
Parking extérieurs : 400€/unité/an HT HC
Assurance Bailleur et honoraires de gestion : A la charge du Preneur
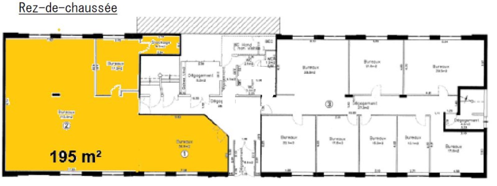
Répartition & surfaces des espaces
Tableau des divisibilités
| Type | Étage | Surface | Loyer (€/m²/an HT HC) |
Charges (€/m²/an HT HC) |
|---|---|---|---|---|
| Parkings | 700.00 | Prix sur demande | ||
| Bureaux | 1er étage | 80 m² | 170.00 | 116.00 |
| Bureaux | 1er étage | 145 m² | 170.00 | 116.00 |
| Bureaux | 1er étage | 195 m² | 170.00 | 116.00 |
| Bureaux | 3ème étage | 216 m² | 170.00 | 116.00 |
Performance énergétique du bien (DPE)


Informations non contractuelles
Localisation & accès
Transports en commun à proximité
SNCF Gares des Chantiers à 1km / Rive Gauche à 1,5km / Rive Droite à 2km
Nombreuses lignes de bus depuis la gare des Chantiers / Rive Droite
Accès routier
Autoroute A86 / Duplex
Nationale N12
Adresses
approximatives
Adresses
précises
Nos nouveaux biens qui pourraient vous intéresser
Bureaux - 62.30m²
VERSAILLES (78000)
VERSAILLES (78000)
1 409.83€/mois HT HC
Disponibilité : Immédiate
Surface : 62.30 m²
Bureaux - 171.69m² Divisibles à partir de 71.79 m²
VERSAILLES (78000)
VERSAILLES (78000)
1 671.54€/mois HT HC
Disponibilité : Selon les lots
Surface : divisibles à partir de 71.79 m²
Les entrepreneurs ayant consulté cette offre ont aussi consulté celles ci
Bureaux - 105m²
SAINT JEAN DE VEDAS (34430)
SAINT JEAN DE VEDAS (34430)
1 458.36€/mois HT HC
Disponibilité : Immédiate
Surface : 105 m²
Bureaux - 330.50m²
PARIS (75013)
PARIS (75013)
10 642.50€/mois HT HC
Disponibilité : Immédiate
Surface : 330.50 m²