Retour
Disponibilité Selon les lots
À Louer Bureaux 78 m² divisibles à partir de 39 m² 6 AVENUE CHARLES DE GAULLE LE CHESNAY (78150)
Ajouter au comparateur
Vous souhaitez faciliter votre recherche ?
Créez un compte
Présentation du bien
Immprove vous propose, face au centre commercial PARLY 2 et proche de l’A13, un immeuble de bureaux composé de multiples et différentes surfaces. Les lots sont fibrés. Places de parking en option.
Surface totale
Nature
Divisibilité
Etat des locaux
78 m²
Bureaux
Oui à partir de 39 m²
Bon état
Prix & Conditions
Loyer :
230 € /m²/an (HT/HC)
747 € /mois (HT/HC)
8 970 € /an (HT/HC)
Divisibles à partir de 39 m²
Dépôt de garantie :
3 mois de loyer HT HC
Conditions location :
Inclus dans les charges : Taxes foncières et bureaux, chauffage, vidéosurveillance, ascenseur PMR et charges générales d'entretien.
Prestations & équipements du bien
Le bâtiment
Immeuble moderne
Façade en pierres agrafées
Parties communes de qualité
Les espaces de travail
Fibre optique Lot 69 m² :
Local d'archives
Entrée - salle d'accueil
2 sanitaires privatifs dont un PMR
Accessibilité
Ascenseur PMR
Autres
Entrée
Bureau
Open-space (36 m²)
Sanitaire privatif
Coin-repas séparé
Lot 245 m² :
9 bureaux de différentes tailles
Open-space de 65 m²
Vestiaire et douche
Inclus dans les charges : Taxes foncières et bureaux, chauffage, vidéosurveillance, ascenseur PMR et charges générales d'entretien.
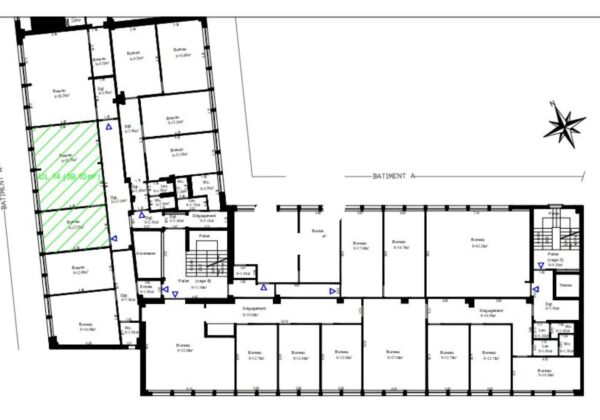
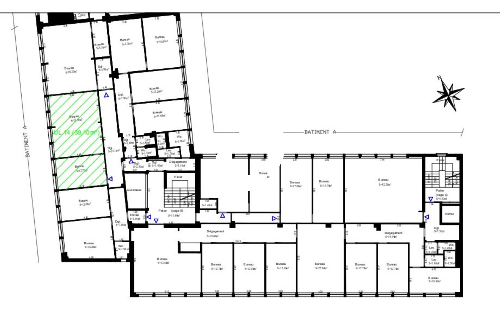
Répartition & surfaces des espaces
Tableau des divisibilités
| Type | Étage | Surface | Loyer (€/m²/an HT HC) |
Charges (€/m²/an HT HC) |
|---|---|---|---|---|
| Bureaux | 1er étage | 39 m² | 230.00 | 69.23 |
| Bureaux | 1er étage | 39 m² | 230.00 | 69.23 |
Performance énergétique du bien (DPE)


Informations non contractuelles
Localisation & accès
Transports en commun à proximité
Nombreuses lignes de bus face à l'immeuble
Accès routier
Autoroutes A12, A13 et A86/Duplex
Adresses
approximatives
Adresses
précises
Nos nouveaux biens qui pourraient vous intéresser
Bureaux - 81.27m²
LE CHESNAY (78150)
LE CHESNAY (78150)
1 451.25€/mois HT HC
Disponibilité : Immédiate
Surface : 81.27 m²
Bureaux - 1 019m² Divisibles à partir de 70 m²
LE CHESNAY (78150)
LE CHESNAY (78150)
2 620.83€/mois HT HC
Disponibilité : Immédiate
Surface : divisibles à partir de 70 m²
Les entrepreneurs ayant consulté cette offre ont aussi consulté celles ci
Bureaux - 105m²
SAINT JEAN DE VEDAS (34430)
SAINT JEAN DE VEDAS (34430)
1 458.36€/mois HT HC
Disponibilité : Immédiate
Surface : 105 m²
Bureaux - 330.50m²
PARIS (75013)
PARIS (75013)
10 642.50€/mois HT HC
Disponibilité : Immédiate
Surface : 330.50 m²