Retour
Disponibilité Immédiate
À Louer Bureaux et Activités 1 976 m² divisibles à partir de 233 m² BUSINESS PARK 39 AVENUE DES 3 PEUPLES MONTIGNY LE BRETONNEUX (78180)
Ajouter au comparateur
Vous souhaitez faciliter votre recherche ?
Créez un compte
Présentation du bien
ZA de l’Observatoire - Immprove vous propose à la location des surfaces de bureaux et d’activité au sein du Business Park à Montigny le Bretonneux. Bénéficiez de place de parking sur le site. Pour de plus amples informations ou demande de visite, contactez-nous.
Surface totale
Nature
Divisibilité
Etat des locaux
1 976 m²
Bureaux et Activités
Oui à partir de 233 m²
Rénové
Prix & Conditions
Loyer :
115 € /m²/an (HT/HC)
2 232 € /mois (HT/HC)
26 795 € /an (HT/HC)
Divisibles à partir de 233 m²
Impôt foncier :
10.38
Taxe bureaux :
14.47
Dépôt de garantie :
3 mois de loyer HT HC
Conditions location :
Charges parking (Taxe foncière + TEOM parking + Charges entretien/assurance) au montant de : 166,27 €/U/an HT
Les charges bureaux comprennent : entretien des parties communes, assurance, chauffage/climatisation.
Les charges bureaux comprennent : entretien des parties communes, assurance, chauffage/climatisation.
Prestations & équipements du bien
Le bâtiment
Immeuble moderne
Les espaces de travail
Espace ouvert
Faux plafonds
Plinthes périphériques
Le confort au quotidien
Climatisation réversible Bureaux :
Locaux lumineux
Moquette
Climatisation réversible
Locaux lumineux
Les accès
Porte sectionnelle 3(H) x 3,2(L)
Sécurité du site
Digicode
Extérieur
41 places de parkings sur site
Autres
Activité :
HSP 4m
Sanitaires en parties communes
Charges parking (Taxe foncière + TEOM parking + Charges entretien/assurance) au montant de : 166,27 €/U/an HT
Les charges bureaux comprennent : entretien des parties communes, assurance, chauffage/climatisation.
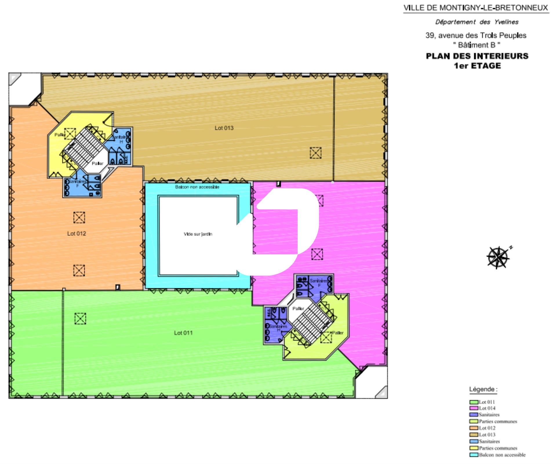
Répartition & surfaces des espaces
Tableau des divisibilités
| Type | Étage | Surface | Loyer (€/m²/an HT HC) |
Charges (€/m²/an HT HC) |
|---|---|---|---|---|
| Parkings | 300.00 | Prix sur demande | ||
| Activités | Rez-de-Chaussée | 336 m² | 115.00 | 31.19 |
| Bureaux | 1er étage | 413 m² | 110.00 | 35.52 |
| Bureaux | 1er étage | 233 m² | 110.00 | 35.52 |
| Bureaux | 1er étage | 413 m² | 110.00 | 35.52 |
| Bureaux | 1er étage | 234 m² | 110.00 | 35.52 |
| Activités | Rez-de-Chaussée | 347 m² | 115.00 | 31.19 |
Performance énergétique du bien (DPE)


Informations non contractuelles
Localisation & accès
Transports en commun à proximité
SNCF gare de Trappes
St Quentin en Yvelines ligne C
12
415
Accès routier
Autoroutes A12 et A86
Nationales N10 et N12
Adresses
approximatives
Adresses
précises
Nos nouveaux biens qui pourraient vous intéresser
Bureaux et Activités - 328m²
MONTIGNY LE BRETONNEUX (78180)
MONTIGNY LE BRETONNEUX (78180)
2 733.33€/mois HT HC
Disponibilité : Immédiate
Surface : 328 m²
Bureaux et Activités - 807.90m²
MONTIGNY LE BRETONNEUX (78180)
MONTIGNY LE BRETONNEUX (78180)
7 406.67€/mois HT HC
Disponibilité : Immédiate
Surface : 807.90 m²
Les entrepreneurs ayant consulté cette offre ont aussi consulté celles ci
Bureaux et Activités - 1 592m²
OSTWALD (67540)
OSTWALD (67540)
8 332.79€/mois HT HC
Disponibilité : 1er juillet 2026
Surface : 1 592 m²
Bureaux et Activités - 128m²
VOISINS LE BRETONNEUX (78960)
VOISINS LE BRETONNEUX (78960)
Prix sur demande
Disponibilité : Immédiate
Surface : 128 m²
Bureaux et Activités - 1 490m² Divisibles à partir de 347 m²
MORET LOING ET ORVANNE (77250)
MORET LOING ET ORVANNE (77250)
Prix sur demande
Disponibilité : 1er mars 2027
Surface : divisibles à partir de 347 m²